Get the free Including suburb and 7/6 MCKAY PLACE MELTON SOUTH VIC 3338
Show details
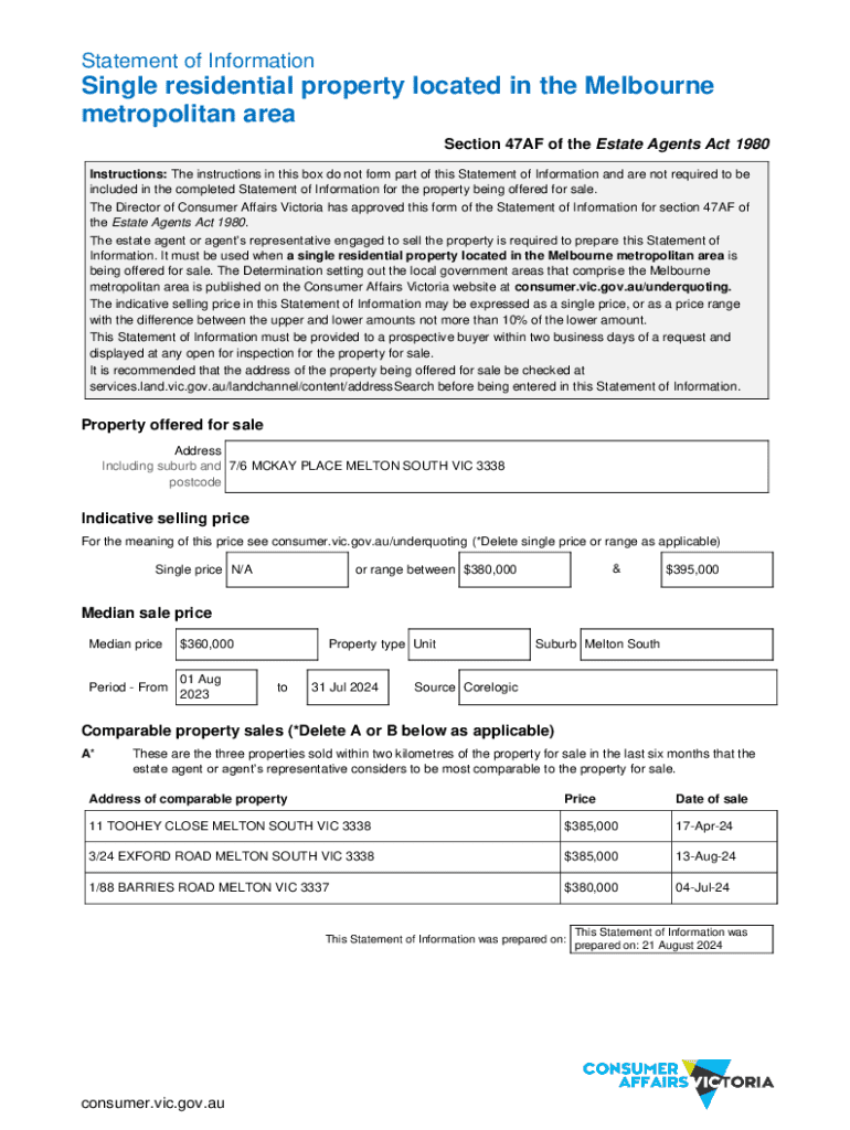
Statement of InformationSingle residential property located in the Melbourne metropolitan area Section 47AF of the Estate Agents Act 1980 Instructions: The instructions in this box do not form part
We are not affiliated with any brand or entity on this form
Get, Create, Make and Sign including suburb and 76
Edit your including suburb and 76 form online
Type text, complete fillable fields, insert images, highlight or blackout data for discretion, add comments, and more.
Add your legally-binding signature
Draw or type your signature, upload a signature image, or capture it with your digital camera.
Share your form instantly
Email, fax, or share your including suburb and 76 form via URL. You can also download, print, or export forms to your preferred cloud storage service.
Editing including suburb and 76 online
Follow the guidelines below to benefit from a competent PDF editor:
1
Create an account. Begin by choosing Start Free Trial and, if you are a new user, establish a profile.
2
Upload a document. Select Add New on your Dashboard and transfer a file into the system in one of the following ways: by uploading it from your device or importing from the cloud, web, or internal mail. Then, click Start editing.
3
Edit including suburb and 76. Rearrange and rotate pages, add and edit text, and use additional tools. To save changes and return to your Dashboard, click Done. The Documents tab allows you to merge, divide, lock, or unlock files.
4
Save your file. Choose it from the list of records. Then, shift the pointer to the right toolbar and select one of the several exporting methods: save it in multiple formats, download it as a PDF, email it, or save it to the cloud.
With pdfFiller, it's always easy to deal with documents.
Uncompromising security for your PDF editing and eSignature needs
Your private information is safe with pdfFiller. We employ end-to-end encryption, secure cloud storage, and advanced access control to protect your documents and maintain regulatory compliance.
Fill
form
: Try Risk Free
For pdfFiller’s FAQs
Below is a list of the most common customer questions. If you can’t find an answer to your question, please don’t hesitate to reach out to us.
How do I edit including suburb and 76 in Chrome?
Add pdfFiller Google Chrome Extension to your web browser to start editing including suburb and 76 and other documents directly from a Google search page. The service allows you to make changes in your documents when viewing them in Chrome. Create fillable documents and edit existing PDFs from any internet-connected device with pdfFiller.
Can I create an electronic signature for the including suburb and 76 in Chrome?
Yes. You can use pdfFiller to sign documents and use all of the features of the PDF editor in one place if you add this solution to Chrome. In order to use the extension, you can draw or write an electronic signature. You can also upload a picture of your handwritten signature. There is no need to worry about how long it takes to sign your including suburb and 76.
How do I edit including suburb and 76 on an Android device?
The pdfFiller app for Android allows you to edit PDF files like including suburb and 76. Mobile document editing, signing, and sending. Install the app to ease document management anywhere.
What is including suburb and 76?
Including suburb and 76 refers to specific forms or regulations within a governing tax or financial system that may require the inclusion of certain data from a suburb and scheduled time frames.
Who is required to file including suburb and 76?
Individuals or entities that meet the criteria outlined in the regulations or tax codes that mandate the reporting of information regarding suburban activities or financials need to file including suburb and 76.
How to fill out including suburb and 76?
To fill out including suburb and 76, you should carefully follow the provided guidelines, ensuring that all required information is accurately reported based on the instructions specified for the specific form.
What is the purpose of including suburb and 76?
The purpose of including suburb and 76 is to ensure compliance with local financial regulations and to accurately report relevant information that may affect taxes or local governance.
What information must be reported on including suburb and 76?
The information that must be reported on including suburb and 76 may include financial data, personal identification, demographic information, and any other relevant details as required by the local governing body.
Fill out your including suburb and 76 online with pdfFiller!
pdfFiller is an end-to-end solution for managing, creating, and editing documents and forms in the cloud. Save time and hassle by preparing your tax forms online.
Including Suburb And 76 is not the form you're looking for?Search for another form here.
Relevant keywords
Related Forms
If you believe that this page should be taken down, please follow our DMCA take down process
here
.
This form may include fields for payment information. Data entered in these fields is not covered by PCI DSS compliance.