Get the free RegisterInverwood Condominium Association Inc.
Show details
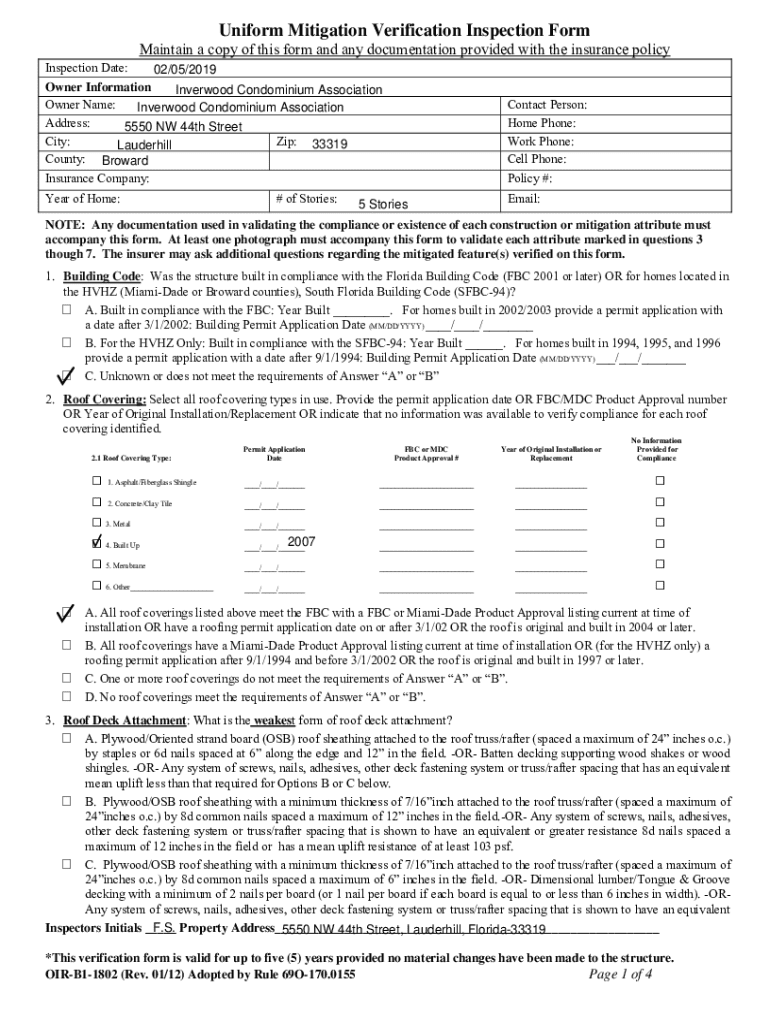
Uniform Mitigation Verification Inspection Form
Maintain a copy of this form and any documentation provided with the insurance policy
Inspection Date:02/05/2019
Owner Information
Underwood Condominium
We are not affiliated with any brand or entity on this form
Get, Create, Make and Sign registerinverwood condominium association inc
Edit your registerinverwood condominium association inc form online
Type text, complete fillable fields, insert images, highlight or blackout data for discretion, add comments, and more.
Add your legally-binding signature
Draw or type your signature, upload a signature image, or capture it with your digital camera.
Share your form instantly
Email, fax, or share your registerinverwood condominium association inc form via URL. You can also download, print, or export forms to your preferred cloud storage service.
Editing registerinverwood condominium association inc online
In order to make advantage of the professional PDF editor, follow these steps:
1
Create an account. Begin by choosing Start Free Trial and, if you are a new user, establish a profile.
2
Prepare a file. Use the Add New button to start a new project. Then, using your device, upload your file to the system by importing it from internal mail, the cloud, or adding its URL.
3
Edit registerinverwood condominium association inc. Rearrange and rotate pages, add new and changed texts, add new objects, and use other useful tools. When you're done, click Done. You can use the Documents tab to merge, split, lock, or unlock your files.
4
Save your file. Choose it from the list of records. Then, shift the pointer to the right toolbar and select one of the several exporting methods: save it in multiple formats, download it as a PDF, email it, or save it to the cloud.
The use of pdfFiller makes dealing with documents straightforward. Try it right now!
Uncompromising security for your PDF editing and eSignature needs
Your private information is safe with pdfFiller. We employ end-to-end encryption, secure cloud storage, and advanced access control to protect your documents and maintain regulatory compliance.
Fill
form
: Try Risk Free
For pdfFiller’s FAQs
Below is a list of the most common customer questions. If you can’t find an answer to your question, please don’t hesitate to reach out to us.
How do I modify my registerinverwood condominium association inc in Gmail?
The pdfFiller Gmail add-on lets you create, modify, fill out, and sign registerinverwood condominium association inc and other documents directly in your email. Click here to get pdfFiller for Gmail. Eliminate tedious procedures and handle papers and eSignatures easily.
Can I create an electronic signature for the registerinverwood condominium association inc in Chrome?
Yes. You can use pdfFiller to sign documents and use all of the features of the PDF editor in one place if you add this solution to Chrome. In order to use the extension, you can draw or write an electronic signature. You can also upload a picture of your handwritten signature. There is no need to worry about how long it takes to sign your registerinverwood condominium association inc.
How do I fill out registerinverwood condominium association inc using my mobile device?
Use the pdfFiller mobile app to complete and sign registerinverwood condominium association inc on your mobile device. Visit our web page (https://edit-pdf-ios-android.pdffiller.com/) to learn more about our mobile applications, the capabilities you’ll have access to, and the steps to take to get up and running.
What is registerinverwood condominium association inc?
Registerinverwood Condominium Association Inc is a legal entity formed to manage and oversee the activities and governance of the Inverwood condominium community, ensuring proper maintenance and operation of the property.
Who is required to file registerinverwood condominium association inc?
The board of directors or designated representatives of the Registerinverwood Condominium Association Inc are typically required to file necessary documents and reports as mandated by state or local regulations.
How to fill out registerinverwood condominium association inc?
To fill out the forms for Registerinverwood Condominium Association Inc, one must gather the required information about the association, such as its address, management details, and financial statements, and then complete the prescribed forms provided by the relevant governing body.
What is the purpose of registerinverwood condominium association inc?
The purpose of Registerinverwood Condominium Association Inc is to manage the common areas and amenities of the condominium, enforce rules and regulations, and ensure the well-being and satisfaction of the residents.
What information must be reported on registerinverwood condominium association inc?
Information that must be reported includes the association's governing documents, financial statements, a list of board members, and details regarding any changes in management or operational procedures.
Fill out your registerinverwood condominium association inc online with pdfFiller!
pdfFiller is an end-to-end solution for managing, creating, and editing documents and forms in the cloud. Save time and hassle by preparing your tax forms online.
Registerinverwood Condominium Association Inc is not the form you're looking for?Search for another form here.
Relevant keywords
Related Forms
If you believe that this page should be taken down, please follow our DMCA take down process
here
.
This form may include fields for payment information. Data entered in these fields is not covered by PCI DSS compliance.