Get the free Pittsford Assessment Review Worksheet
Show details
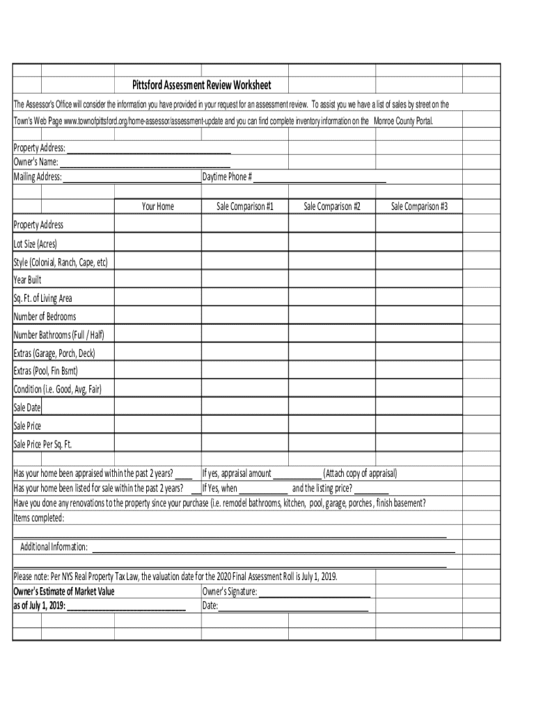
A worksheet for homeowners to request an assessment review for their property by providing necessary details including comparisons with similar sales and any relevant updates or renovations made to the property. It includes sections for property information, previous sales comparisons, and acknowledgment of valuation dates according to NYS Real Property Tax Law.
We are not affiliated with any brand or entity on this form
Get, Create, Make and Sign pittsford assessment review worksheet
Edit your pittsford assessment review worksheet form online
Type text, complete fillable fields, insert images, highlight or blackout data for discretion, add comments, and more.
Add your legally-binding signature
Draw or type your signature, upload a signature image, or capture it with your digital camera.
Share your form instantly
Email, fax, or share your pittsford assessment review worksheet form via URL. You can also download, print, or export forms to your preferred cloud storage service.
Editing pittsford assessment review worksheet online
Here are the steps you need to follow to get started with our professional PDF editor:
1
Create an account. Begin by choosing Start Free Trial and, if you are a new user, establish a profile.
2
Upload a file. Select Add New on your Dashboard and upload a file from your device or import it from the cloud, online, or internal mail. Then click Edit.
3
Edit pittsford assessment review worksheet. Text may be added and replaced, new objects can be included, pages can be rearranged, watermarks and page numbers can be added, and so on. When you're done editing, click Done and then go to the Documents tab to combine, divide, lock, or unlock the file.
4
Get your file. Select the name of your file in the docs list and choose your preferred exporting method. You can download it as a PDF, save it in another format, send it by email, or transfer it to the cloud.
pdfFiller makes working with documents easier than you could ever imagine. Register for an account and see for yourself!
Uncompromising security for your PDF editing and eSignature needs
Your private information is safe with pdfFiller. We employ end-to-end encryption, secure cloud storage, and advanced access control to protect your documents and maintain regulatory compliance.
How to fill out pittsford assessment review worksheet
How to fill out pittsford assessment review worksheet
01
Obtain a copy of the Pittsford Assessment Review Worksheet.
02
Review the instructions provided on the worksheet.
03
Gather relevant data and documentation that supports your assessment.
04
Begin filling out the personal information section, including name, date, and contact details.
05
Move to the assessment criteria section and provide accurate evaluations for each criterion based on your findings.
06
Use clear and concise language to describe your assessments.
07
Double-check for any errors or omissions in your responses.
08
Submit the completed worksheet by the designated deadline.
Who needs pittsford assessment review worksheet?
01
Individuals undergoing an assessment process in Pittsford.
02
Professionals conducting evaluations for clients or students.
03
Educators assessing student performance or program effectiveness.
04
Administrators needing to review policies or contribute to planning initiatives.
Fill
form
: Try Risk Free
For pdfFiller’s FAQs
Below is a list of the most common customer questions. If you can’t find an answer to your question, please don’t hesitate to reach out to us.
How can I modify pittsford assessment review worksheet without leaving Google Drive?
It is possible to significantly enhance your document management and form preparation by combining pdfFiller with Google Docs. This will allow you to generate papers, amend them, and sign them straight from your Google Drive. Use the add-on to convert your pittsford assessment review worksheet into a dynamic fillable form that can be managed and signed using any internet-connected device.
How can I send pittsford assessment review worksheet for eSignature?
Once you are ready to share your pittsford assessment review worksheet, you can easily send it to others and get the eSigned document back just as quickly. Share your PDF by email, fax, text message, or USPS mail, or notarize it online. You can do all of this without ever leaving your account.
How do I fill out pittsford assessment review worksheet on an Android device?
Use the pdfFiller app for Android to finish your pittsford assessment review worksheet. The application lets you do all the things you need to do with documents, like add, edit, and remove text, sign, annotate, and more. There is nothing else you need except your smartphone and an internet connection to do this.
What is pittsford assessment review worksheet?
The Pittsford Assessment Review Worksheet is a document used by property owners in Pittsford to formally appeal their property assessments.
Who is required to file pittsford assessment review worksheet?
Property owners who believe their property has been inaccurately assessed are required to file the Pittsford Assessment Review Worksheet.
How to fill out pittsford assessment review worksheet?
To fill out the Pittsford Assessment Review Worksheet, property owners must provide accurate property details, a description of inaccuracies, and any supporting evidence, such as comparable property assessments.
What is the purpose of pittsford assessment review worksheet?
The purpose of the Pittsford Assessment Review Worksheet is to allow property owners to contest their property assessments and seek a fair adjustment based on accurate valuation.
What information must be reported on pittsford assessment review worksheet?
The worksheet must include the property owner's name, property address, tax ID, the current assessment amount, reasons for the appeal, and any relevant supporting documentation.
Fill out your pittsford assessment review worksheet online with pdfFiller!
pdfFiller is an end-to-end solution for managing, creating, and editing documents and forms in the cloud. Save time and hassle by preparing your tax forms online.
Pittsford Assessment Review Worksheet is not the form you're looking for?Search for another form here.
Relevant keywords
Related Forms
If you believe that this page should be taken down, please follow our DMCA take down process
here
.
This form may include fields for payment information. Data entered in these fields is not covered by PCI DSS compliance.