
Get the free Short Environmental Assessment Form
Show details
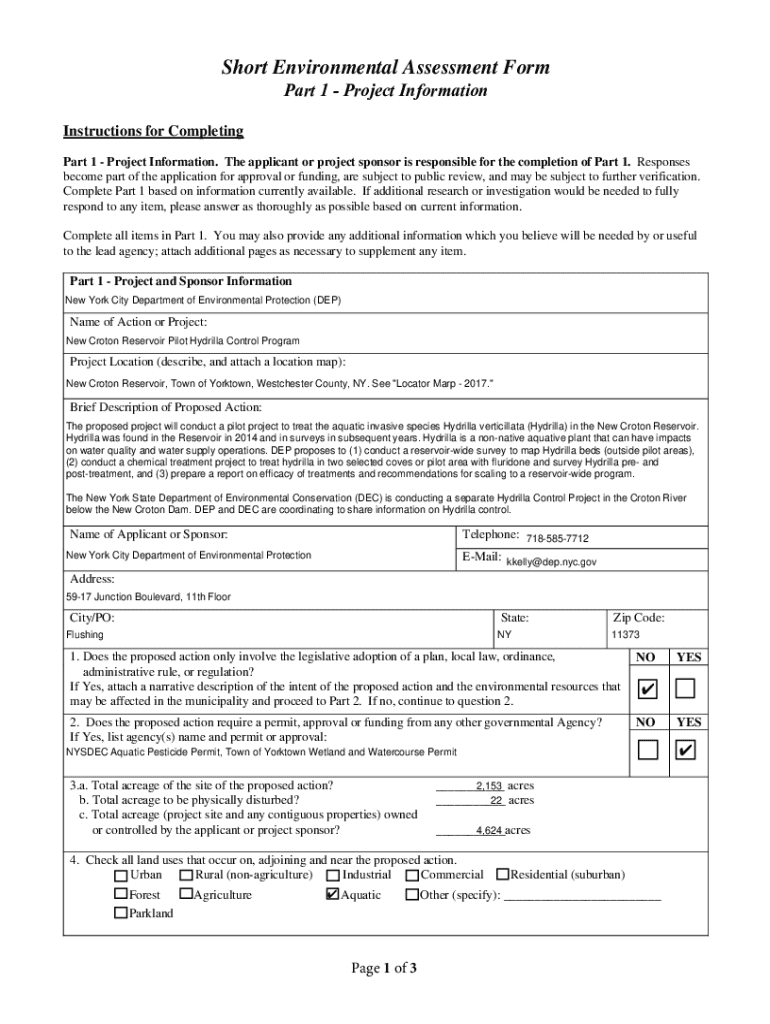
This document serves as an environmental assessment for a proposed pilot program aimed at controlling the invasive aquatic species Hydrilla in the New Croton Reservoir. The assessment outlines project details, sponsor information, and environmental considerations associated with the action.
We are not affiliated with any brand or entity on this form
Get, Create, Make and Sign short environmental assessment form

Edit your short environmental assessment form form online
Type text, complete fillable fields, insert images, highlight or blackout data for discretion, add comments, and more.

Add your legally-binding signature
Draw or type your signature, upload a signature image, or capture it with your digital camera.

Share your form instantly
Email, fax, or share your short environmental assessment form form via URL. You can also download, print, or export forms to your preferred cloud storage service.
How to edit short environmental assessment form online
To use the professional PDF editor, follow these steps below:
1
Register the account. Begin by clicking Start Free Trial and create a profile if you are a new user.
2
Prepare a file. Use the Add New button to start a new project. Then, using your device, upload your file to the system by importing it from internal mail, the cloud, or adding its URL.
3
Edit short environmental assessment form. Replace text, adding objects, rearranging pages, and more. Then select the Documents tab to combine, divide, lock or unlock the file.
4
Get your file. Select the name of your file in the docs list and choose your preferred exporting method. You can download it as a PDF, save it in another format, send it by email, or transfer it to the cloud.
With pdfFiller, dealing with documents is always straightforward. Try it now!
Uncompromising security for your PDF editing and eSignature needs
Your private information is safe with pdfFiller. We employ end-to-end encryption, secure cloud storage, and advanced access control to protect your documents and maintain regulatory compliance.
How to fill out short environmental assessment form

How to fill out short environmental assessment form
01
Start by reading the instructions provided at the top of the form.
02
Fill in your basic information: name, contact details, and organization if applicable.
03
Provide a brief description of the project or activity for which the assessment is being conducted.
04
Answer the questions regarding potential environmental impacts, including air, water, and soil.
05
Assess any relevant regulations or policies that may apply to your project.
06
Include any proposed mitigation measures to reduce negative impacts.
07
Review your responses for completeness and accuracy.
08
Submit the form to the appropriate regulatory body or organization.
Who needs short environmental assessment form?
01
Businesses planning new projects that may impact the environment.
02
Government agencies requiring assessments for permits or approvals.
03
Non-profit organizations conducting environmental initiatives.
04
Researchers assessing the environmental impact of their work.
05
Community groups concerned about local environmental issues.
Fill
form
: Try Risk Free
For pdfFiller’s FAQs
Below is a list of the most common customer questions. If you can’t find an answer to your question, please don’t hesitate to reach out to us.
How do I edit short environmental assessment form online?
The editing procedure is simple with pdfFiller. Open your short environmental assessment form in the editor, which is quite user-friendly. You may use it to blackout, redact, write, and erase text, add photos, draw arrows and lines, set sticky notes and text boxes, and much more.
Can I create an eSignature for the short environmental assessment form in Gmail?
Use pdfFiller's Gmail add-on to upload, type, or draw a signature. Your short environmental assessment form and other papers may be signed using pdfFiller. Register for a free account to preserve signed papers and signatures.
How do I fill out short environmental assessment form on an Android device?
Complete your short environmental assessment form and other papers on your Android device by using the pdfFiller mobile app. The program includes all of the necessary document management tools, such as editing content, eSigning, annotating, sharing files, and so on. You will be able to view your papers at any time as long as you have an internet connection.
What is short environmental assessment form?
The Short Environmental Assessment Form (SEAF) is a document used to assess the potential environmental impacts of a proposed project or action. It helps determine whether a more detailed environmental review is necessary.
Who is required to file short environmental assessment form?
Individuals, organizations, or entities proposing certain types of projects or actions that may have environmental impacts are required to file a Short Environmental Assessment Form.
How to fill out short environmental assessment form?
To fill out the SEAF, applicants must provide detailed information about the project, including its location, purpose, potential environmental effects, and mitigation measures. The form typically includes questions that guide the applicant to identify these aspects.
What is the purpose of short environmental assessment form?
The purpose of the Short Environmental Assessment Form is to evaluate the potential environmental effects of a proposed action and to determine if an environmental impact statement is necessary.
What information must be reported on short environmental assessment form?
The SEAF requires reporting information such as the project's location, description, type of action, potential environmental impacts, and any proposed mitigation measures.
Fill out your short environmental assessment form online with pdfFiller!
pdfFiller is an end-to-end solution for managing, creating, and editing documents and forms in the cloud. Save time and hassle by preparing your tax forms online.

Short Environmental Assessment Form is not the form you're looking for?Search for another form here.
Relevant keywords
Related Forms
If you believe that this page should be taken down, please follow our DMCA take down process
here
.
This form may include fields for payment information. Data entered in these fields is not covered by PCI DSS compliance.