Get the free TECHNICAL CODE INSPECTION APPLICATION
Show details
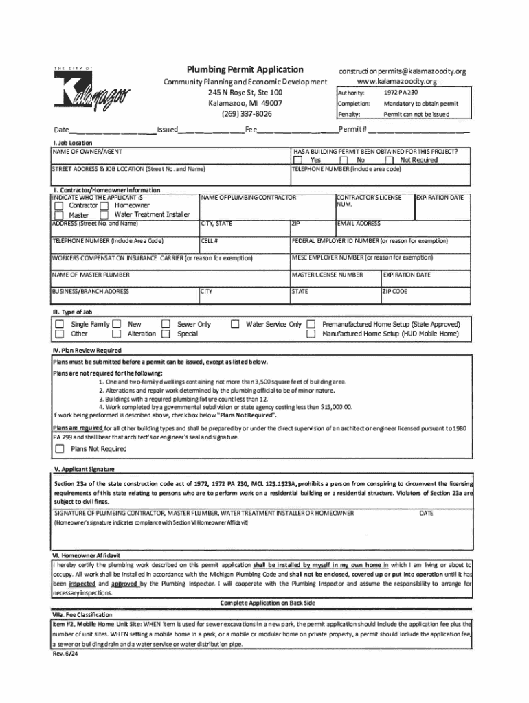
Plumbing Permit Application Community Planning and Economic Development 245 N Ro se St, Ste 100 Kal amazoo, Ml 49007 (269) 3378026constructionpermits@kalamazoodty.org www.kalamazoodty.org Authority:1972
We are not affiliated with any brand or entity on this form
Get, Create, Make and Sign technical code inspection application
Edit your technical code inspection application form online
Type text, complete fillable fields, insert images, highlight or blackout data for discretion, add comments, and more.
Add your legally-binding signature
Draw or type your signature, upload a signature image, or capture it with your digital camera.
Share your form instantly
Email, fax, or share your technical code inspection application form via URL. You can also download, print, or export forms to your preferred cloud storage service.
Editing technical code inspection application online
Here are the steps you need to follow to get started with our professional PDF editor:
1
Set up an account. If you are a new user, click Start Free Trial and establish a profile.
2
Upload a file. Select Add New on your Dashboard and upload a file from your device or import it from the cloud, online, or internal mail. Then click Edit.
3
Edit technical code inspection application. Rearrange and rotate pages, add new and changed texts, add new objects, and use other useful tools. When you're done, click Done. You can use the Documents tab to merge, split, lock, or unlock your files.
4
Save your file. Select it in the list of your records. Then, move the cursor to the right toolbar and choose one of the available exporting methods: save it in multiple formats, download it as a PDF, send it by email, or store it in the cloud.
With pdfFiller, dealing with documents is always straightforward. Try it right now!
Uncompromising security for your PDF editing and eSignature needs
Your private information is safe with pdfFiller. We employ end-to-end encryption, secure cloud storage, and advanced access control to protect your documents and maintain regulatory compliance.
How to fill out technical code inspection application
How to fill out technical code inspection application
01
Gather the necessary project documentation, including plans, specifications, and any previous inspection reports.
02
Obtain the technical code inspection application form from the relevant authority or their website.
03
Fill out the application form with accurate project details such as project name, location, and description.
04
Provide information about the contractor or builders involved, including their licenses and qualifications.
05
Attach any required supporting documents, such as engineering calculations, design drawings, and a checklist of code compliance.
06
Review the completed application for any errors or missing information.
07
Submit the application form and supporting documents to the designated authority, either online or in person.
08
Pay any applicable fees associated with the application.
09
Await confirmation and further instructions from the authority regarding the inspection appointment.
Who needs technical code inspection application?
01
Construction developers and contractors who are planning new building projects.
02
Property owners undertaking major renovations or alterations to existing structures.
03
Architects and engineers responsible for designing buildings that must comply with local codes.
04
Real estate professionals needing inspections for property transactions.
05
Local government officials and inspectors who need to ensure compliance with building codes.
Fill
form
: Try Risk Free
For pdfFiller’s FAQs
Below is a list of the most common customer questions. If you can’t find an answer to your question, please don’t hesitate to reach out to us.
How can I send technical code inspection application to be eSigned by others?
Once your technical code inspection application is ready, you can securely share it with recipients and collect eSignatures in a few clicks with pdfFiller. You can send a PDF by email, text message, fax, USPS mail, or notarize it online - right from your account. Create an account now and try it yourself.
How do I complete technical code inspection application online?
Filling out and eSigning technical code inspection application is now simple. The solution allows you to change and reorganize PDF text, add fillable fields, and eSign the document. Start a free trial of pdfFiller, the best document editing solution.
How do I edit technical code inspection application online?
With pdfFiller, it's easy to make changes. Open your technical code inspection application in the editor, which is very easy to use and understand. When you go there, you'll be able to black out and change text, write and erase, add images, draw lines, arrows, and more. You can also add sticky notes and text boxes.
What is technical code inspection application?
A technical code inspection application is a formal request submitted to relevant authorities to examine and assess compliance with established technical codes and regulations pertaining to construction, engineering, and safety standards.
Who is required to file technical code inspection application?
Typically, builders, contractors, property owners, or developers who are undertaking construction projects are required to file a technical code inspection application.
How to fill out technical code inspection application?
To fill out a technical code inspection application, one needs to provide relevant project details, including the project address, scope of work, applicable codes, and any required supporting documentation, and submit it to the appropriate regulatory agency.
What is the purpose of technical code inspection application?
The purpose of a technical code inspection application is to ensure that construction projects comply with safety, building, and engineering standards, thereby protecting public health and welfare.
What information must be reported on technical code inspection application?
Information that must be reported typically includes project location, description of work, legal property descriptions, contractor details, and applicable codes and standards.
Fill out your technical code inspection application online with pdfFiller!
pdfFiller is an end-to-end solution for managing, creating, and editing documents and forms in the cloud. Save time and hassle by preparing your tax forms online.
Technical Code Inspection Application is not the form you're looking for?Search for another form here.
Relevant keywords
Related Forms
If you believe that this page should be taken down, please follow our DMCA take down process
here
.
This form may include fields for payment information. Data entered in these fields is not covered by PCI DSS compliance.