Get the free Verizon Wireless Proposed Wireless Telecommunications Use Permit and Site Plan Review
Show details
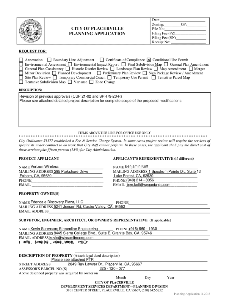
This document outlines the proposed modifications to an existing Verizon Wireless telecommunications facility located at 2849 Ray Lawyer Drive in Placerville, California. The proposed changes include raising the height of the antennas, installing new equipment cabinets, and altering the existing FRP screen enclosures to meet current technological demands without negatively impacting the surrounding environment or community.
We are not affiliated with any brand or entity on this form
Get, Create, Make and Sign verizon wireless proposed wireless
Edit your verizon wireless proposed wireless form online
Type text, complete fillable fields, insert images, highlight or blackout data for discretion, add comments, and more.
Add your legally-binding signature
Draw or type your signature, upload a signature image, or capture it with your digital camera.
Share your form instantly
Email, fax, or share your verizon wireless proposed wireless form via URL. You can also download, print, or export forms to your preferred cloud storage service.
Editing verizon wireless proposed wireless online
To use our professional PDF editor, follow these steps:
1
Log in. Click Start Free Trial and create a profile if necessary.
2
Upload a file. Select Add New on your Dashboard and upload a file from your device or import it from the cloud, online, or internal mail. Then click Edit.
3
Edit verizon wireless proposed wireless. Add and change text, add new objects, move pages, add watermarks and page numbers, and more. Then click Done when you're done editing and go to the Documents tab to merge or split the file. If you want to lock or unlock the file, click the lock or unlock button.
4
Save your file. Select it in the list of your records. Then, move the cursor to the right toolbar and choose one of the available exporting methods: save it in multiple formats, download it as a PDF, send it by email, or store it in the cloud.
With pdfFiller, it's always easy to deal with documents.
Uncompromising security for your PDF editing and eSignature needs
Your private information is safe with pdfFiller. We employ end-to-end encryption, secure cloud storage, and advanced access control to protect your documents and maintain regulatory compliance.
How to fill out verizon wireless proposed wireless
How to fill out verizon wireless proposed wireless
01
Obtain the Verizon Wireless Proposed Wireless form from the official website or your Verizon representative.
02
Read the instructions on the form carefully to understand the required information.
03
Fill out your personal details, including name, address, and contact information in the designated sections.
04
Provide information regarding your current wireless service provider, if applicable.
05
Specify the type of wireless plan you are interested in (individual or family plans).
06
Indicate the desired features you want included in your plan (e.g., data packages, international calling, etc.).
07
Attach any necessary documentation required, such as proof of identity or address.
08
Review the completed form for any errors or missing information.
09
Submit the form through the specified method (online, mail, or in-person) as instructed.
Who needs verizon wireless proposed wireless?
01
Individuals looking for reliable wireless communication services.
02
Families needing multiple lines and shared data plans.
03
Businesses that require a strong mobile network for their operations.
04
Customers looking to switch providers for better coverage or pricing.
05
New customers who are setting up wireless service for the first time.
Fill
form
: Try Risk Free
For pdfFiller’s FAQs
Below is a list of the most common customer questions. If you can’t find an answer to your question, please don’t hesitate to reach out to us.
How do I make changes in verizon wireless proposed wireless?
With pdfFiller, you may not only alter the content but also rearrange the pages. Upload your verizon wireless proposed wireless and modify it with a few clicks. The editor lets you add photos, sticky notes, text boxes, and more to PDFs.
How can I edit verizon wireless proposed wireless on a smartphone?
You may do so effortlessly with pdfFiller's iOS and Android apps, which are available in the Apple Store and Google Play Store, respectively. You may also obtain the program from our website: https://edit-pdf-ios-android.pdffiller.com/. Open the application, sign in, and begin editing verizon wireless proposed wireless right away.
How can I fill out verizon wireless proposed wireless on an iOS device?
Install the pdfFiller iOS app. Log in or create an account to access the solution's editing features. Open your verizon wireless proposed wireless by uploading it from your device or online storage. After filling in all relevant fields and eSigning if required, you may save or distribute the document.
What is verizon wireless proposed wireless?
Verizon Wireless proposed wireless refers to the plans or proposals that Verizon Wireless may present regarding their wireless services, including advancements, changes, or expansions in their wireless technology and coverage.
Who is required to file verizon wireless proposed wireless?
Entities or individuals involved in regulatory processes, including telecommunications providers and other stakeholders, may be required to file documents related to Verizon Wireless proposed wireless.
How to fill out verizon wireless proposed wireless?
Filling out the proposed wireless documents typically involves providing details about the wireless services technology, coverage areas, and any regulatory compliance necessary. Specific forms and guidelines should be referenced.
What is the purpose of verizon wireless proposed wireless?
The purpose of Verizon Wireless proposed wireless includes seeking approval for new services, ensuring compliance with regulations, and planning for future service enhancements.
What information must be reported on verizon wireless proposed wireless?
Information such as service specifications, coverage area maps, technology used, regulatory compliance details, and projected timelines for service implementation must be reported.
Fill out your verizon wireless proposed wireless online with pdfFiller!
pdfFiller is an end-to-end solution for managing, creating, and editing documents and forms in the cloud. Save time and hassle by preparing your tax forms online.
Verizon Wireless Proposed Wireless is not the form you're looking for?Search for another form here.
Relevant keywords
Related Forms
If you believe that this page should be taken down, please follow our DMCA take down process
here
.
This form may include fields for payment information. Data entered in these fields is not covered by PCI DSS compliance.