Get the free NYSDEC Chemical Bulk Storage (CBS) Inspection Form
Show details
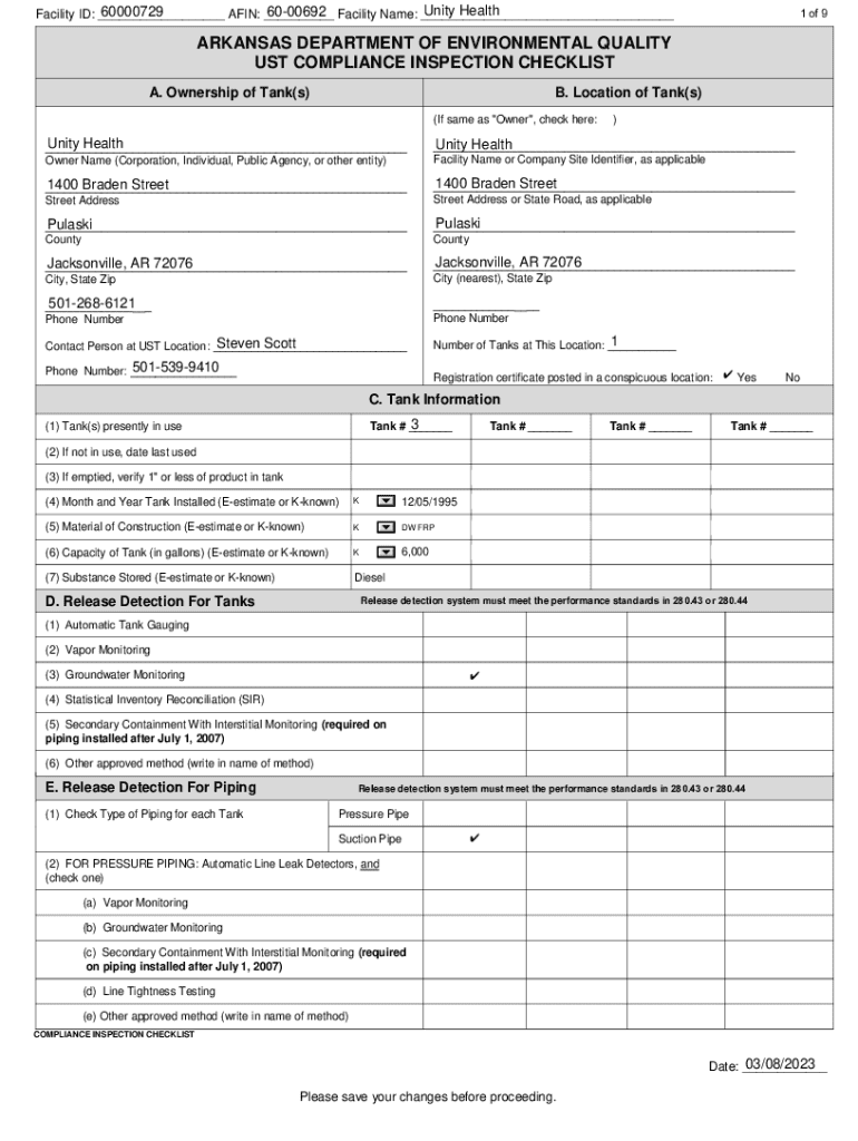
1 of 9Unity Health 6000692 Facility Name: ___ 60000729 Facility ID: ___ AFIN: ___ARKANSAS DEPARTMENT OF ENVIRONMENTAL QUALITY UST COMPLIANCE INSPECTION CHECKLIST A. Ownership of Tank(s)B. Location
We are not affiliated with any brand or entity on this form
Get, Create, Make and Sign nysdec chemical bulk storage
Edit your nysdec chemical bulk storage form online
Type text, complete fillable fields, insert images, highlight or blackout data for discretion, add comments, and more.
Add your legally-binding signature
Draw or type your signature, upload a signature image, or capture it with your digital camera.
Share your form instantly
Email, fax, or share your nysdec chemical bulk storage form via URL. You can also download, print, or export forms to your preferred cloud storage service.
Editing nysdec chemical bulk storage online
Use the instructions below to start using our professional PDF editor:
1
Set up an account. If you are a new user, click Start Free Trial and establish a profile.
2
Prepare a file. Use the Add New button to start a new project. Then, using your device, upload your file to the system by importing it from internal mail, the cloud, or adding its URL.
3
Edit nysdec chemical bulk storage. Add and replace text, insert new objects, rearrange pages, add watermarks and page numbers, and more. Click Done when you are finished editing and go to the Documents tab to merge, split, lock or unlock the file.
4
Get your file. When you find your file in the docs list, click on its name and choose how you want to save it. To get the PDF, you can save it, send an email with it, or move it to the cloud.
Uncompromising security for your PDF editing and eSignature needs
Your private information is safe with pdfFiller. We employ end-to-end encryption, secure cloud storage, and advanced access control to protect your documents and maintain regulatory compliance.
How to fill out nysdec chemical bulk storage
How to fill out nysdec chemical bulk storage
01
Gather necessary information about your facility and the chemicals being stored.
02
Obtain the NYSDEC Chemical Bulk Storage registration forms, either online or at a local office.
03
Fill out the registration form with details such as the type and quantity of chemicals, storage locations, and facility information.
04
Ensure compliance with local and state regulations regarding chemical storage.
05
Submit the completed form to NYSDEC along with any required fees.
06
Receive confirmation and await any further instructions from NYSDEC.
Who needs nysdec chemical bulk storage?
01
Businesses involved in the storage of hazardous substances.
02
Manufacturers, distributors, and retailers who store chemicals for processing or sale.
03
Any facility that meets the minimum requirements for chemical storage as defined by NYSDEC regulations.
Fill
form
: Try Risk Free
For pdfFiller’s FAQs
Below is a list of the most common customer questions. If you can’t find an answer to your question, please don’t hesitate to reach out to us.
Can I create an electronic signature for signing my nysdec chemical bulk storage in Gmail?
You may quickly make your eSignature using pdfFiller and then eSign your nysdec chemical bulk storage right from your mailbox using pdfFiller's Gmail add-on. Please keep in mind that in order to preserve your signatures and signed papers, you must first create an account.
How can I edit nysdec chemical bulk storage on a smartphone?
The pdfFiller mobile applications for iOS and Android are the easiest way to edit documents on the go. You may get them from the Apple Store and Google Play. More info about the applications here. Install and log in to edit nysdec chemical bulk storage.
Can I edit nysdec chemical bulk storage on an iOS device?
Use the pdfFiller mobile app to create, edit, and share nysdec chemical bulk storage from your iOS device. Install it from the Apple Store in seconds. You can benefit from a free trial and choose a subscription that suits your needs.
What is nysdec chemical bulk storage?
NYSDEC chemical bulk storage refers to the regulations and guidelines established by the New York State Department of Environmental Conservation for the storage of hazardous substances in bulk containers to prevent environmental contamination and ensure safety.
Who is required to file nysdec chemical bulk storage?
Any facility that stores hazardous substances in tanks with a capacity of 110 gallons or more must file for NYSDEC chemical bulk storage.
How to fill out nysdec chemical bulk storage?
To fill out the NYSDEC chemical bulk storage application, you must provide information about the facility, the types and quantities of chemicals stored, as well as safety and emergency response measures in place.
What is the purpose of nysdec chemical bulk storage?
The purpose of NYSDEC chemical bulk storage is to protect public health and the environment by regulating the safe storage of hazardous substances and minimizing the risk of spills and leaks.
What information must be reported on nysdec chemical bulk storage?
Information that must be reported includes facility details, types and volumes of chemicals stored, containment measures, emergency plans, and maintenance practices.
Fill out your nysdec chemical bulk storage online with pdfFiller!
pdfFiller is an end-to-end solution for managing, creating, and editing documents and forms in the cloud. Save time and hassle by preparing your tax forms online.
Nysdec Chemical Bulk Storage is not the form you're looking for?Search for another form here.
Relevant keywords
Related Forms
If you believe that this page should be taken down, please follow our DMCA take down process
here
.
This form may include fields for payment information. Data entered in these fields is not covered by PCI DSS compliance.