
Get the free Accessory Dwelling Unit Application
Show details
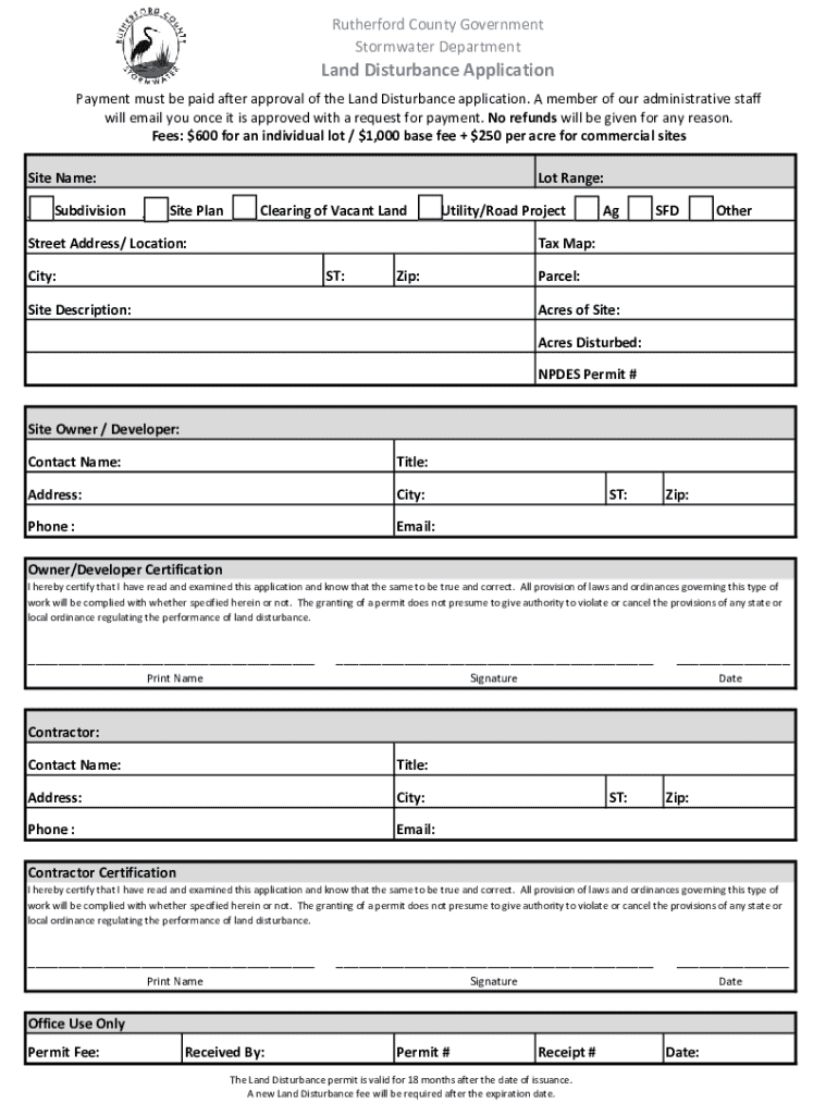
This document provides the application and instructions required for property owners in Rutherford County to establish an Accessory Dwelling Unit (ADU). It outlines the necessary steps to submit an application, required fees, and compliance with local zoning regulations, including maintaining architectural compatibility and ensuring that the property owner resides in one of the units.
We are not affiliated with any brand or entity on this form
Get, Create, Make and Sign accessory dwelling unit application

Edit your accessory dwelling unit application form online
Type text, complete fillable fields, insert images, highlight or blackout data for discretion, add comments, and more.

Add your legally-binding signature
Draw or type your signature, upload a signature image, or capture it with your digital camera.

Share your form instantly
Email, fax, or share your accessory dwelling unit application form via URL. You can also download, print, or export forms to your preferred cloud storage service.
Editing accessory dwelling unit application online
Here are the steps you need to follow to get started with our professional PDF editor:
1
Register the account. Begin by clicking Start Free Trial and create a profile if you are a new user.
2
Simply add a document. Select Add New from your Dashboard and import a file into the system by uploading it from your device or importing it via the cloud, online, or internal mail. Then click Begin editing.
3
Edit accessory dwelling unit application. Rearrange and rotate pages, add new and changed texts, add new objects, and use other useful tools. When you're done, click Done. You can use the Documents tab to merge, split, lock, or unlock your files.
4
Get your file. Select the name of your file in the docs list and choose your preferred exporting method. You can download it as a PDF, save it in another format, send it by email, or transfer it to the cloud.
pdfFiller makes dealing with documents a breeze. Create an account to find out!
Uncompromising security for your PDF editing and eSignature needs
Your private information is safe with pdfFiller. We employ end-to-end encryption, secure cloud storage, and advanced access control to protect your documents and maintain regulatory compliance.
How to fill out accessory dwelling unit application

How to fill out accessory dwelling unit application
01
Obtain the accessory dwelling unit (ADU) application form from your local planning department or website.
02
Read the instructions carefully to understand specific requirements for your area.
03
Fill out the applicant's details, including name, contact information, and property address.
04
Provide detailed information about the proposed ADU, including its size, design, and intended use.
05
Include site plans, floor plans, and any required architectural drawings that meet local zoning codes.
06
Gather any necessary documentation, such as proof of ownership and property tax information.
07
Pay the required application fee as specified by your local government.
08
Review your application for completeness and accuracy before submission.
09
Submit the application to the local planning department and keep a copy for your records.
10
Await feedback or any additional requests for information from the planning department.
Who needs accessory dwelling unit application?
01
Homeowners who are looking to create additional living space on their property.
02
Individuals interested in renting out a part of their home as a separate dwelling.
03
Property investors seeking to maximize rental income through added units.
04
Families wanting to house relatives or caregivers on their property.
Fill
form
: Try Risk Free
For pdfFiller’s FAQs
Below is a list of the most common customer questions. If you can’t find an answer to your question, please don’t hesitate to reach out to us.
Can I create an electronic signature for the accessory dwelling unit application in Chrome?
Yes. You can use pdfFiller to sign documents and use all of the features of the PDF editor in one place if you add this solution to Chrome. In order to use the extension, you can draw or write an electronic signature. You can also upload a picture of your handwritten signature. There is no need to worry about how long it takes to sign your accessory dwelling unit application.
How can I edit accessory dwelling unit application on a smartphone?
Using pdfFiller's mobile-native applications for iOS and Android is the simplest method to edit documents on a mobile device. You may get them from the Apple App Store and Google Play, respectively. More information on the apps may be found here. Install the program and log in to begin editing accessory dwelling unit application.
How do I complete accessory dwelling unit application on an Android device?
Use the pdfFiller app for Android to finish your accessory dwelling unit application. The application lets you do all the things you need to do with documents, like add, edit, and remove text, sign, annotate, and more. There is nothing else you need except your smartphone and an internet connection to do this.
What is accessory dwelling unit application?
An accessory dwelling unit application is a formal request submitted to local authorities to obtain permission to build or convert a structure into a secondary housing unit on a residential property.
Who is required to file accessory dwelling unit application?
Homeowners or property owners who wish to create or alter an accessory dwelling unit on their property are required to file an accessory dwelling unit application.
How to fill out accessory dwelling unit application?
To fill out an accessory dwelling unit application, applicants need to provide personal information, details about the property, the proposed plans for the unit, and any necessary supporting documents, such as site plans and photographs.
What is the purpose of accessory dwelling unit application?
The purpose of the accessory dwelling unit application is to ensure that any new living space meets local zoning laws, building codes, and community standards, facilitating responsible development.
What information must be reported on accessory dwelling unit application?
The application must report the property address, owner's details, dimensions of the existing structure, description of the proposed unit, intended use, and compliance with local regulations.
Fill out your accessory dwelling unit application online with pdfFiller!
pdfFiller is an end-to-end solution for managing, creating, and editing documents and forms in the cloud. Save time and hassle by preparing your tax forms online.

Accessory Dwelling Unit Application is not the form you're looking for?Search for another form here.
Relevant keywords
Related Forms
If you believe that this page should be taken down, please follow our DMCA take down process
here
.
This form may include fields for payment information. Data entered in these fields is not covered by PCI DSS compliance.