Get the free Kentucky Short Line Infrastructure Preservation Program - transportation ky
Show details
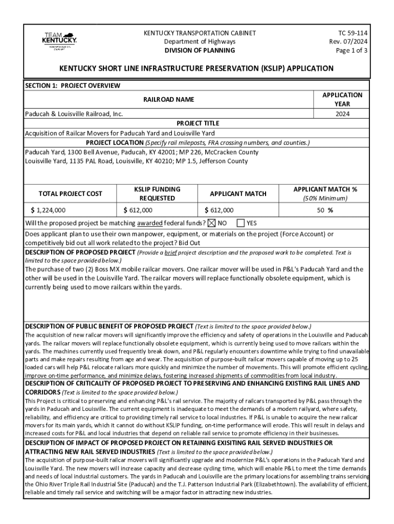
TC 59114 Rev. 07/2024 Page 1 of 3KENTUCKY TRANSPORTATION CABINET Department of Highways DIVISION OF PLANNINGKENTUCKY SHORT LINE INFRASTRUCTURE PRESERVATION (KSLIP) APPLICATION SECTION 1: PROJECT OVERVIEW
We are not affiliated with any brand or entity on this form
Get, Create, Make and Sign kentucky short line infrastructure
Edit your kentucky short line infrastructure form online
Type text, complete fillable fields, insert images, highlight or blackout data for discretion, add comments, and more.
Add your legally-binding signature
Draw or type your signature, upload a signature image, or capture it with your digital camera.
Share your form instantly
Email, fax, or share your kentucky short line infrastructure form via URL. You can also download, print, or export forms to your preferred cloud storage service.
How to edit kentucky short line infrastructure online
In order to make advantage of the professional PDF editor, follow these steps below:
1
Set up an account. If you are a new user, click Start Free Trial and establish a profile.
2
Prepare a file. Use the Add New button. Then upload your file to the system from your device, importing it from internal mail, the cloud, or by adding its URL.
3
Edit kentucky short line infrastructure. Rearrange and rotate pages, insert new and alter existing texts, add new objects, and take advantage of other helpful tools. Click Done to apply changes and return to your Dashboard. Go to the Documents tab to access merging, splitting, locking, or unlocking functions.
4
Save your file. Select it from your records list. Then, click the right toolbar and select one of the various exporting options: save in numerous formats, download as PDF, email, or cloud.
Dealing with documents is simple using pdfFiller.
Uncompromising security for your PDF editing and eSignature needs
Your private information is safe with pdfFiller. We employ end-to-end encryption, secure cloud storage, and advanced access control to protect your documents and maintain regulatory compliance.
How to fill out kentucky short line infrastructure
How to fill out kentucky short line infrastructure
01
Gather necessary documents and information about your short line railroad.
02
Review the Kentucky Short Line Infrastructure Program guidelines and requirements.
03
Obtain an application form from the appropriate Kentucky transportation department or website.
04
Fill out the application form, providing all required details such as project description, estimated costs, and funding requests.
05
Attach any supporting materials, such as maps, project plans, and financial statements.
06
Submit the completed application by the specified deadline through the designated submission method.
Who needs kentucky short line infrastructure?
01
Short line railroad owners and operators in Kentucky.
02
Local governments seeking to enhance transportation infrastructure.
03
Businesses that rely on freight transport via short line railroads.
04
Communities aiming to improve economic development through better rail access.
Fill
form
: Try Risk Free
For pdfFiller’s FAQs
Below is a list of the most common customer questions. If you can’t find an answer to your question, please don’t hesitate to reach out to us.
How do I complete kentucky short line infrastructure online?
pdfFiller has made filling out and eSigning kentucky short line infrastructure easy. The solution is equipped with a set of features that enable you to edit and rearrange PDF content, add fillable fields, and eSign the document. Start a free trial to explore all the capabilities of pdfFiller, the ultimate document editing solution.
Can I edit kentucky short line infrastructure on an Android device?
You can make any changes to PDF files, such as kentucky short line infrastructure, with the help of the pdfFiller mobile app for Android. Edit, sign, and send documents right from your mobile device. Install the app and streamline your document management wherever you are.
How do I fill out kentucky short line infrastructure on an Android device?
Use the pdfFiller mobile app to complete your kentucky short line infrastructure on an Android device. The application makes it possible to perform all needed document management manipulations, like adding, editing, and removing text, signing, annotating, and more. All you need is your smartphone and an internet connection.
What is kentucky short line infrastructure?
Kentucky short line infrastructure refers to the physical assets, facilities, and operational capabilities of short line railroads in Kentucky, which are crucial for regional transportation and economic development.
Who is required to file kentucky short line infrastructure?
Short line railroad operators and companies that own or manage short line railways in Kentucky are required to file documentation related to the short line infrastructure.
How to fill out kentucky short line infrastructure?
To fill out the Kentucky short line infrastructure documentation, operators must provide accurate and complete information regarding the infrastructure assets, operational details, and any relevant financial data.
What is the purpose of kentucky short line infrastructure?
The purpose of Kentucky short line infrastructure is to assess and improve the safety, efficiency, and reliability of the rail transport system within the state, promoting economic growth and connectivity.
What information must be reported on kentucky short line infrastructure?
Information that must be reported includes details on the physical condition of tracks, bridges, and other infrastructure components, operational data, maintenance records, and safety compliance.
Fill out your kentucky short line infrastructure online with pdfFiller!
pdfFiller is an end-to-end solution for managing, creating, and editing documents and forms in the cloud. Save time and hassle by preparing your tax forms online.
Kentucky Short Line Infrastructure is not the form you're looking for?Search for another form here.
Relevant keywords
Related Forms
If you believe that this page should be taken down, please follow our DMCA take down process
here
.
This form may include fields for payment information. Data entered in these fields is not covered by PCI DSS compliance.