Get the free Application for Construction Permit – Wastewater Treatment Facility
Show details
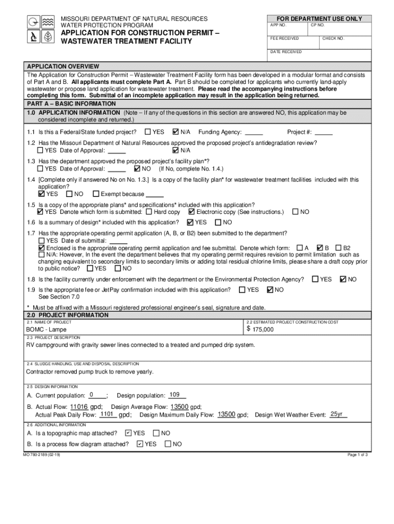
This document serves as a construction permit issued by the Missouri Department of Natural Resources for the Black Oak RV Park\'s new drip dispersal subsurface treatment system. The system is designed to provide wastewater treatment for 107 RV connections, ensuring adherence to Missouri Clean Water Law and related regulations, with specified construction conditions and compliance requirements.
We are not affiliated with any brand or entity on this form
Get, Create, Make and Sign application for construction permit
Edit your application for construction permit form online
Type text, complete fillable fields, insert images, highlight or blackout data for discretion, add comments, and more.
Add your legally-binding signature
Draw or type your signature, upload a signature image, or capture it with your digital camera.
Share your form instantly
Email, fax, or share your application for construction permit form via URL. You can also download, print, or export forms to your preferred cloud storage service.
How to edit application for construction permit online
To use the professional PDF editor, follow these steps below:
1
Register the account. Begin by clicking Start Free Trial and create a profile if you are a new user.
2
Prepare a file. Use the Add New button. Then upload your file to the system from your device, importing it from internal mail, the cloud, or by adding its URL.
3
Edit application for construction permit. Rearrange and rotate pages, add and edit text, and use additional tools. To save changes and return to your Dashboard, click Done. The Documents tab allows you to merge, divide, lock, or unlock files.
4
Get your file. Select the name of your file in the docs list and choose your preferred exporting method. You can download it as a PDF, save it in another format, send it by email, or transfer it to the cloud.
The use of pdfFiller makes dealing with documents straightforward.
Uncompromising security for your PDF editing and eSignature needs
Your private information is safe with pdfFiller. We employ end-to-end encryption, secure cloud storage, and advanced access control to protect your documents and maintain regulatory compliance.
How to fill out application for construction permit
How to fill out application for construction permit
01
Obtain the construction permit application form from your local building department or website.
02
Review the application requirements and gather necessary documents, such as site plans and building specifications.
03
Fill out your personal information, including name, address, and contact details.
04
Provide a detailed description of the construction project, including its purpose and scope.
05
Indicate the project location and include any relevant surveys or maps.
06
Attach any required documents, such as proof of ownership or contractor information.
07
Review the completed application for accuracy and completeness.
08
Submit the application, along with any required fees, to the appropriate local authorities.
09
Wait for processing and respond to any requests for additional information or clarifications.
Who needs application for construction permit?
01
Anyone looking to undertake construction work on residential, commercial, or industrial properties typically needs a construction permit.
02
Property owners planning renovations or expansions must apply for a permit.
03
Contractors and builders engaged in construction projects also require permits to ensure compliance with local regulations.
Fill
form
: Try Risk Free
For pdfFiller’s FAQs
Below is a list of the most common customer questions. If you can’t find an answer to your question, please don’t hesitate to reach out to us.
How can I modify application for construction permit without leaving Google Drive?
It is possible to significantly enhance your document management and form preparation by combining pdfFiller with Google Docs. This will allow you to generate papers, amend them, and sign them straight from your Google Drive. Use the add-on to convert your application for construction permit into a dynamic fillable form that can be managed and signed using any internet-connected device.
How do I make edits in application for construction permit without leaving Chrome?
Add pdfFiller Google Chrome Extension to your web browser to start editing application for construction permit and other documents directly from a Google search page. The service allows you to make changes in your documents when viewing them in Chrome. Create fillable documents and edit existing PDFs from any internet-connected device with pdfFiller.
How can I edit application for construction permit on a smartphone?
You can easily do so with pdfFiller's apps for iOS and Android devices, which can be found at the Apple Store and the Google Play Store, respectively. You can use them to fill out PDFs. We have a website where you can get the app, but you can also get it there. When you install the app, log in, and start editing application for construction permit, you can start right away.
What is application for construction permit?
An application for construction permit is a formal request submitted to a local government authority to obtain permission to begin construction or renovation projects.
Who is required to file application for construction permit?
Typically, property owners or their authorized agents, such as contractors or architects, are required to file an application for a construction permit.
How to fill out application for construction permit?
To fill out an application for a construction permit, one must provide details such as project location, description of work, building plans, and any required fees. It may also involve submitting additional documentation based on local regulations.
What is the purpose of application for construction permit?
The purpose of an application for construction permit is to ensure that construction projects comply with local building codes, zoning laws, and safety regulations.
What information must be reported on application for construction permit?
The application typically requires information such as the project address, scope of work, estimated cost, contractor details, and any relevant architectural or engineering plans.
Fill out your application for construction permit online with pdfFiller!
pdfFiller is an end-to-end solution for managing, creating, and editing documents and forms in the cloud. Save time and hassle by preparing your tax forms online.
Application For Construction Permit is not the form you're looking for?Search for another form here.
Relevant keywords
Related Forms
If you believe that this page should be taken down, please follow our DMCA take down process
here
.
This form may include fields for payment information. Data entered in these fields is not covered by PCI DSS compliance.