Get the free Application for Subdivision Plat Approval
Show details
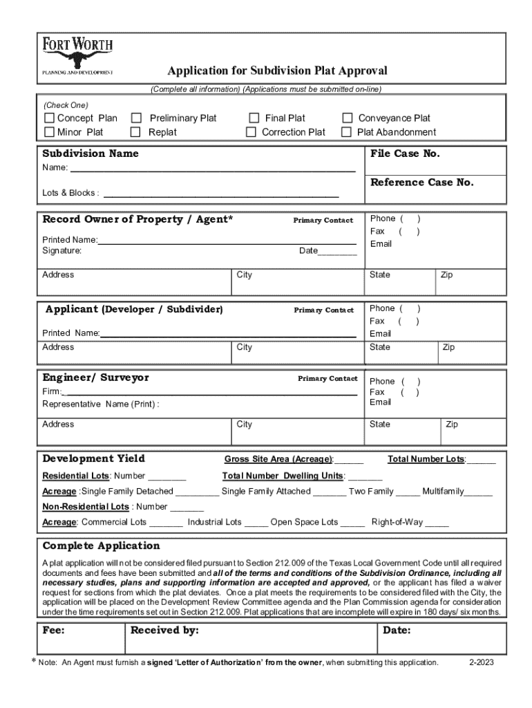
This document outlines the application process for obtaining subdivision plat approval, including necessary forms, fees, and guidelines for submitting a complete application related to various types of plats. It is intended for developers and subdividers to facilitate the approval of land subdivision projects in accordance with local regulations.
We are not affiliated with any brand or entity on this form
Get, Create, Make and Sign application for subdivision plat
Edit your application for subdivision plat form online
Type text, complete fillable fields, insert images, highlight or blackout data for discretion, add comments, and more.
Add your legally-binding signature
Draw or type your signature, upload a signature image, or capture it with your digital camera.
Share your form instantly
Email, fax, or share your application for subdivision plat form via URL. You can also download, print, or export forms to your preferred cloud storage service.
How to edit application for subdivision plat online
Here are the steps you need to follow to get started with our professional PDF editor:
1
Sign into your account. It's time to start your free trial.
2
Upload a document. Select Add New on your Dashboard and transfer a file into the system in one of the following ways: by uploading it from your device or importing from the cloud, web, or internal mail. Then, click Start editing.
3
Edit application for subdivision plat. Rearrange and rotate pages, add new and changed texts, add new objects, and use other useful tools. When you're done, click Done. You can use the Documents tab to merge, split, lock, or unlock your files.
4
Get your file. Select the name of your file in the docs list and choose your preferred exporting method. You can download it as a PDF, save it in another format, send it by email, or transfer it to the cloud.
pdfFiller makes working with documents easier than you could ever imagine. Try it for yourself by creating an account!
Uncompromising security for your PDF editing and eSignature needs
Your private information is safe with pdfFiller. We employ end-to-end encryption, secure cloud storage, and advanced access control to protect your documents and maintain regulatory compliance.
How to fill out application for subdivision plat
How to fill out application for subdivision plat
01
Start by obtaining the subdivision plat application form from your local planning or zoning office.
02
Fill in the property owner's information, including name, address, and contact details.
03
Provide detailed information about the proposed subdivision, including the number of lots, lot sizes, and any proposed utilities.
04
Include a location map that clearly shows the boundaries of the property and adjacent roadways.
05
Prepare and attach a site plan showing existing conditions and the layout of the proposed subdivision.
06
Collect any required documents, such as title reports or environmental impact assessments, as specified by local regulations.
07
Pay any applicable application fees as instructed by your local zoning office.
08
Submit the completed application alongside all required documents to the appropriate planning or zoning board.
Who needs application for subdivision plat?
01
Developers looking to create new residential or commercial lots.
02
Property owners intending to divide their land into multiple parcels.
03
Investors planning to undertake a subdivision for resale or development purposes.
04
Municipalities or organizations needing to adhere to local zoning regulations.
Fill
form
: Try Risk Free
For pdfFiller’s FAQs
Below is a list of the most common customer questions. If you can’t find an answer to your question, please don’t hesitate to reach out to us.
How can I send application for subdivision plat for eSignature?
Once your application for subdivision plat is complete, you can securely share it with recipients and gather eSignatures with pdfFiller in just a few clicks. You may transmit a PDF by email, text message, fax, USPS mail, or online notarization directly from your account. Make an account right now and give it a go.
How do I execute application for subdivision plat online?
pdfFiller has made it simple to fill out and eSign application for subdivision plat. The application has capabilities that allow you to modify and rearrange PDF content, add fillable fields, and eSign the document. Begin a free trial to discover all of the features of pdfFiller, the best document editing solution.
How do I fill out application for subdivision plat using my mobile device?
The pdfFiller mobile app makes it simple to design and fill out legal paperwork. Complete and sign application for subdivision plat and other papers using the app. Visit pdfFiller's website to learn more about the PDF editor's features.
What is application for subdivision plat?
An application for subdivision plat is a formal request submitted to local authorities to divide a parcel of land into smaller lots. This process is typically required before the development or sale of those lots.
Who is required to file application for subdivision plat?
The property owner or a designated representative, such as a developer or surveyor, is required to file the application for subdivision plat.
How to fill out application for subdivision plat?
To fill out the application for subdivision plat, you must provide information including the property description, proposed lot layout, zoning information, and any required surveys or maps, as per local guidelines.
What is the purpose of application for subdivision plat?
The purpose of the application for subdivision plat is to ensure that land development adheres to local zoning laws and regulations, to facilitate infrastructure planning, and to ensure public safety and community standards.
What information must be reported on application for subdivision plat?
The application must typically report information such as the owner's name, property location, existing zoning, proposed lot sizes, street designs, utilities, and any environmental impacts.
Fill out your application for subdivision plat online with pdfFiller!
pdfFiller is an end-to-end solution for managing, creating, and editing documents and forms in the cloud. Save time and hassle by preparing your tax forms online.
Application For Subdivision Plat is not the form you're looking for?Search for another form here.
Relevant keywords
Related Forms
If you believe that this page should be taken down, please follow our DMCA take down process
here
.
This form may include fields for payment information. Data entered in these fields is not covered by PCI DSS compliance.