
Get the free Kitchen Floor Renovation Bid Invitation
Show details
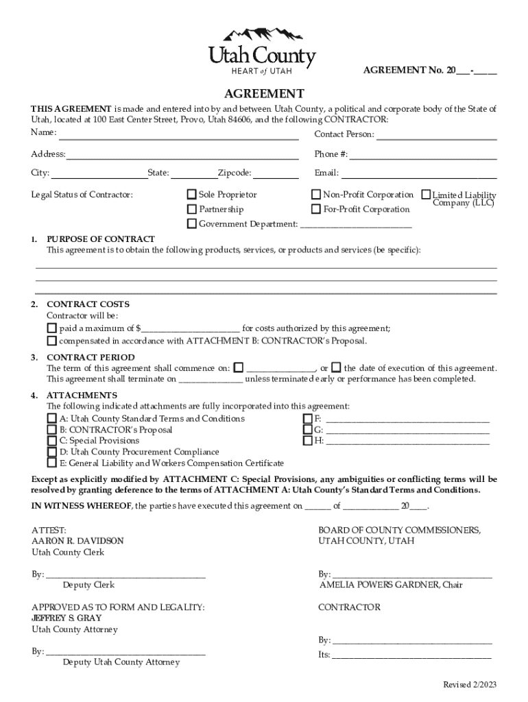
This document is an official invitation to bid issued by the Utah County Public Works Department for the renovation of approximately 5,800 square feet of commercial kitchen floor at the Utah County Security Center. The document outlines the bidding process, requirements, specifications, and criteria for selection. Bids must be submitted by a specified deadline, and the project includes detailed requirements for surface preparation, installation of flooring systems, and compliance with safety...
We are not affiliated with any brand or entity on this form
Get, Create, Make and Sign kitchen floor renovation bid

Edit your kitchen floor renovation bid form online
Type text, complete fillable fields, insert images, highlight or blackout data for discretion, add comments, and more.

Add your legally-binding signature
Draw or type your signature, upload a signature image, or capture it with your digital camera.

Share your form instantly
Email, fax, or share your kitchen floor renovation bid form via URL. You can also download, print, or export forms to your preferred cloud storage service.
Editing kitchen floor renovation bid online
Use the instructions below to start using our professional PDF editor:
1
Log in. Click Start Free Trial and create a profile if necessary.
2
Upload a document. Select Add New on your Dashboard and transfer a file into the system in one of the following ways: by uploading it from your device or importing from the cloud, web, or internal mail. Then, click Start editing.
3
Edit kitchen floor renovation bid. Rearrange and rotate pages, add and edit text, and use additional tools. To save changes and return to your Dashboard, click Done. The Documents tab allows you to merge, divide, lock, or unlock files.
4
Get your file. When you find your file in the docs list, click on its name and choose how you want to save it. To get the PDF, you can save it, send an email with it, or move it to the cloud.
pdfFiller makes dealing with documents a breeze. Create an account to find out!
Uncompromising security for your PDF editing and eSignature needs
Your private information is safe with pdfFiller. We employ end-to-end encryption, secure cloud storage, and advanced access control to protect your documents and maintain regulatory compliance.
Fill
form
: Try Risk Free
For pdfFiller’s FAQs
Below is a list of the most common customer questions. If you can’t find an answer to your question, please don’t hesitate to reach out to us.
How can I manage my kitchen floor renovation bid directly from Gmail?
It's easy to use pdfFiller's Gmail add-on to make and edit your kitchen floor renovation bid and any other documents you get right in your email. You can also eSign them. Take a look at the Google Workspace Marketplace and get pdfFiller for Gmail. Get rid of the time-consuming steps and easily manage your documents and eSignatures with the help of an app.
Can I sign the kitchen floor renovation bid electronically in Chrome?
You can. With pdfFiller, you get a strong e-signature solution built right into your Chrome browser. Using our addon, you may produce a legally enforceable eSignature by typing, sketching, or photographing it. Choose your preferred method and eSign in minutes.
How can I edit kitchen floor renovation bid on a smartphone?
The easiest way to edit documents on a mobile device is using pdfFiller’s mobile-native apps for iOS and Android. You can download those from the Apple Store and Google Play, respectively. You can learn more about the apps here. Install and log in to the application to start editing kitchen floor renovation bid.
What is kitchen floor renovation bid?
A kitchen floor renovation bid is a formal proposal submitted to outline the costs and scope of work for renovating the flooring in a kitchen.
Who is required to file kitchen floor renovation bid?
Typically, contractors and businesses seeking to perform kitchen floor renovations are required to file a kitchen floor renovation bid.
How to fill out kitchen floor renovation bid?
To fill out a kitchen floor renovation bid, one must detail the materials needed, labor costs, timelines, and any additional services involved in the renovation process.
What is the purpose of kitchen floor renovation bid?
The purpose of a kitchen floor renovation bid is to provide clients with a detailed estimation of costs and to ensure transparency in the renovation process.
What information must be reported on kitchen floor renovation bid?
The information that must be reported includes the estimated costs, materials to be used, timelines for completion, and any terms and conditions related to the renovation.
Fill out your kitchen floor renovation bid online with pdfFiller!
pdfFiller is an end-to-end solution for managing, creating, and editing documents and forms in the cloud. Save time and hassle by preparing your tax forms online.

Kitchen Floor Renovation Bid is not the form you're looking for?Search for another form here.
Relevant keywords
Related Forms
If you believe that this page should be taken down, please follow our DMCA take down process
here
.
This form may include fields for payment information. Data entered in these fields is not covered by PCI DSS compliance.