Get the free Democratic Party - Vote for not more than 1 Representative ...
Show details
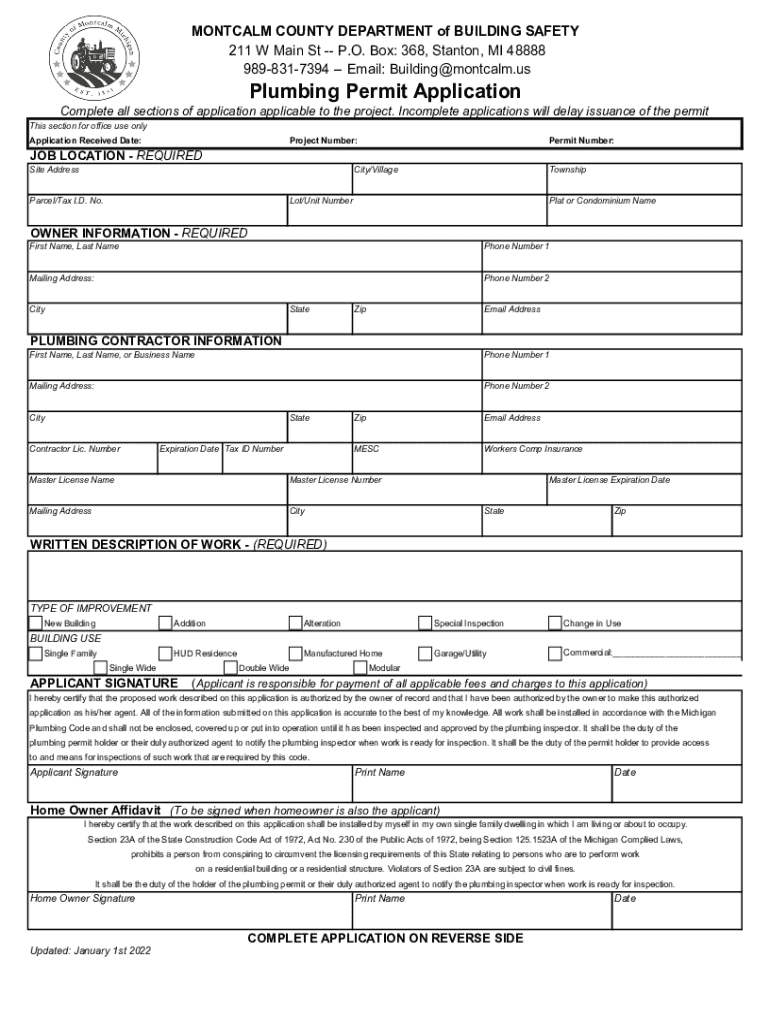
MONTCALM COUNTY DEPARTMENT of BUILDING SAFETY 211 W Main St P.O. Box: 368, Stanton, MI 48888 9898317394 Email: Building@montcalm.usPlumbing Permit ApplicationComplete all sections of application applicable
We are not affiliated with any brand or entity on this form
Get, Create, Make and Sign democratic party - vote
Edit your democratic party - vote form online
Type text, complete fillable fields, insert images, highlight or blackout data for discretion, add comments, and more.
Add your legally-binding signature
Draw or type your signature, upload a signature image, or capture it with your digital camera.
Share your form instantly
Email, fax, or share your democratic party - vote form via URL. You can also download, print, or export forms to your preferred cloud storage service.
How to edit democratic party - vote online
Here are the steps you need to follow to get started with our professional PDF editor:
1
Sign into your account. In case you're new, it's time to start your free trial.
2
Upload a file. Select Add New on your Dashboard and upload a file from your device or import it from the cloud, online, or internal mail. Then click Edit.
3
Edit democratic party - vote. Add and replace text, insert new objects, rearrange pages, add watermarks and page numbers, and more. Click Done when you are finished editing and go to the Documents tab to merge, split, lock or unlock the file.
4
Save your file. Choose it from the list of records. Then, shift the pointer to the right toolbar and select one of the several exporting methods: save it in multiple formats, download it as a PDF, email it, or save it to the cloud.
With pdfFiller, it's always easy to deal with documents. Try it right now
Uncompromising security for your PDF editing and eSignature needs
Your private information is safe with pdfFiller. We employ end-to-end encryption, secure cloud storage, and advanced access control to protect your documents and maintain regulatory compliance.
Fill
form
: Try Risk Free
For pdfFiller’s FAQs
Below is a list of the most common customer questions. If you can’t find an answer to your question, please don’t hesitate to reach out to us.
How do I fill out democratic party - vote using my mobile device?
The pdfFiller mobile app makes it simple to design and fill out legal paperwork. Complete and sign democratic party - vote and other papers using the app. Visit pdfFiller's website to learn more about the PDF editor's features.
Can I edit democratic party - vote on an iOS device?
Create, modify, and share democratic party - vote using the pdfFiller iOS app. Easy to install from the Apple Store. You may sign up for a free trial and then purchase a membership.
Can I edit democratic party - vote on an Android device?
The pdfFiller app for Android allows you to edit PDF files like democratic party - vote. Mobile document editing, signing, and sending. Install the app to ease document management anywhere.
What is democratic party - vote?
The Democratic Party vote refers to the process by which members of the Democratic Party cast their votes in primaries, caucuses, and elections to select candidates and influence party platforms.
Who is required to file democratic party - vote?
Individuals or organizations involved in the Democratic Party's electoral processes, such as candidates, campaign committees, and political action committees (PACs), are required to file necessary documentation regarding their votes and fundraising activities.
How to fill out democratic party - vote?
To fill out the Democratic Party vote, follow the specified format provided by the party, include required personal information, select candidates, and submit it through the designated method, whether by mail, online, or in-person.
What is the purpose of democratic party - vote?
The purpose of the Democratic Party vote is to allow party members to express their preferences for candidates, shape party policies, and determine the party's direction in elections.
What information must be reported on democratic party - vote?
Information that must be reported includes voter identification details, candidate selections, party affiliation, and any relevant campaign financing information.
Fill out your democratic party - vote online with pdfFiller!
pdfFiller is an end-to-end solution for managing, creating, and editing documents and forms in the cloud. Save time and hassle by preparing your tax forms online.
Democratic Party - Vote is not the form you're looking for?Search for another form here.
Relevant keywords
Related Forms
If you believe that this page should be taken down, please follow our DMCA take down process
here
.
This form may include fields for payment information. Data entered in these fields is not covered by PCI DSS compliance.