Get the free Oregon Health Authority : Advance Directive Forms
Show details
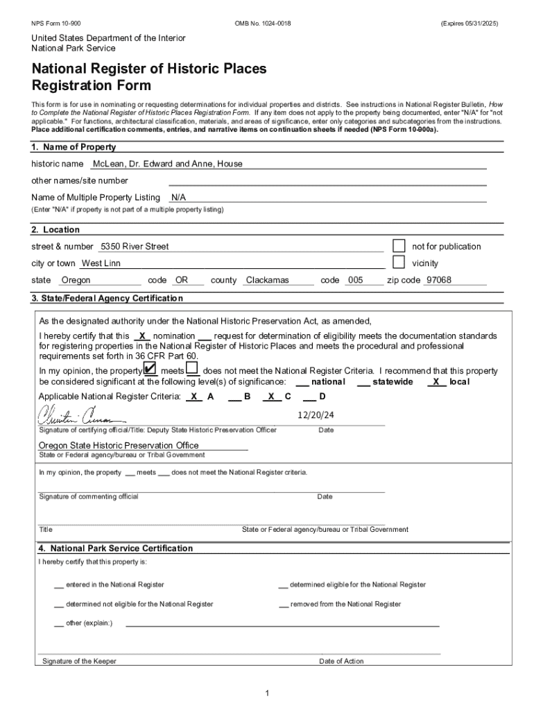
NPS Form 10900OMB No. 10240018(Expires 05/31/2025)United States Department of the Interior National Park ServiceNational Register of Historic Places Registration Form This form is for use in nominating
We are not affiliated with any brand or entity on this form
Get, Create, Make and Sign oregon health authority advance
Edit your oregon health authority advance form online
Type text, complete fillable fields, insert images, highlight or blackout data for discretion, add comments, and more.
Add your legally-binding signature
Draw or type your signature, upload a signature image, or capture it with your digital camera.
Share your form instantly
Email, fax, or share your oregon health authority advance form via URL. You can also download, print, or export forms to your preferred cloud storage service.
How to edit oregon health authority advance online
Use the instructions below to start using our professional PDF editor:
1
Sign into your account. If you don't have a profile yet, click Start Free Trial and sign up for one.
2
Upload a file. Select Add New on your Dashboard and upload a file from your device or import it from the cloud, online, or internal mail. Then click Edit.
3
Edit oregon health authority advance. Replace text, adding objects, rearranging pages, and more. Then select the Documents tab to combine, divide, lock or unlock the file.
4
Get your file. Select the name of your file in the docs list and choose your preferred exporting method. You can download it as a PDF, save it in another format, send it by email, or transfer it to the cloud.
pdfFiller makes working with documents easier than you could ever imagine. Create an account to find out for yourself how it works!
Uncompromising security for your PDF editing and eSignature needs
Your private information is safe with pdfFiller. We employ end-to-end encryption, secure cloud storage, and advanced access control to protect your documents and maintain regulatory compliance.
Fill
form
: Try Risk Free
For pdfFiller’s FAQs
Below is a list of the most common customer questions. If you can’t find an answer to your question, please don’t hesitate to reach out to us.
How can I edit oregon health authority advance from Google Drive?
Using pdfFiller with Google Docs allows you to create, amend, and sign documents straight from your Google Drive. The add-on turns your oregon health authority advance into a dynamic fillable form that you can manage and eSign from anywhere.
How can I edit oregon health authority advance on a smartphone?
Using pdfFiller's mobile-native applications for iOS and Android is the simplest method to edit documents on a mobile device. You may get them from the Apple App Store and Google Play, respectively. More information on the apps may be found here. Install the program and log in to begin editing oregon health authority advance.
How do I complete oregon health authority advance on an Android device?
On Android, use the pdfFiller mobile app to finish your oregon health authority advance. Adding, editing, deleting text, signing, annotating, and more are all available with the app. All you need is a smartphone and internet.
What is oregon health authority advance?
The Oregon Health Authority Advance refers to a program or initiative aimed at improving health outcomes in the state of Oregon, often involving the distribution of funds or support for public health projects.
Who is required to file oregon health authority advance?
Entities or individuals involved in health projects or programs that receive funding or grants from the Oregon Health Authority may be required to file for the Oregon Health Authority Advance.
How to fill out oregon health authority advance?
To fill out the Oregon Health Authority Advance, applicants need to complete the required forms provided by the Oregon Health Authority, ensuring all relevant information is accurately reported.
What is the purpose of oregon health authority advance?
The purpose of the Oregon Health Authority Advance is to promote and support initiatives that enhance public health, improve healthcare access, and foster better health outcomes for Oregonians.
What information must be reported on oregon health authority advance?
Information required to be reported includes details about the project or program, funding usage, expected outcomes, and measures for evaluating success, along with any additional data specified by the Oregon Health Authority.
Fill out your oregon health authority advance online with pdfFiller!
pdfFiller is an end-to-end solution for managing, creating, and editing documents and forms in the cloud. Save time and hassle by preparing your tax forms online.
Oregon Health Authority Advance is not the form you're looking for?Search for another form here.
Relevant keywords
Related Forms
If you believe that this page should be taken down, please follow our DMCA take down process
here
.
This form may include fields for payment information. Data entered in these fields is not covered by PCI DSS compliance.