
Get the free BOARD OF SUPERVISORS - Madison County Mississippi
Show details
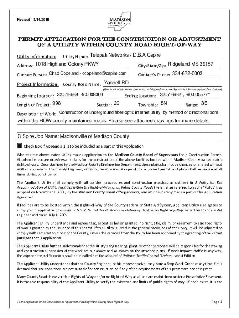
BOARD OF SUPERVISORSMADISON COUNTY, MISSISSIPPIDepartment of Engineering Tim Bryan, P.E., PTOE, County Engineer3137 South Liberty Street, Canton, MS 39046 Office (601) 8555582 FAX (601) 8595857MEMORANDUMJuly
We are not affiliated with any brand or entity on this form
Get, Create, Make and Sign board of supervisors

Edit your board of supervisors form online
Type text, complete fillable fields, insert images, highlight or blackout data for discretion, add comments, and more.

Add your legally-binding signature
Draw or type your signature, upload a signature image, or capture it with your digital camera.

Share your form instantly
Email, fax, or share your board of supervisors form via URL. You can also download, print, or export forms to your preferred cloud storage service.
Editing board of supervisors online
Follow the guidelines below to use a professional PDF editor:
1
Create an account. Begin by choosing Start Free Trial and, if you are a new user, establish a profile.
2
Simply add a document. Select Add New from your Dashboard and import a file into the system by uploading it from your device or importing it via the cloud, online, or internal mail. Then click Begin editing.
3
Edit board of supervisors. Replace text, adding objects, rearranging pages, and more. Then select the Documents tab to combine, divide, lock or unlock the file.
4
Get your file. Select your file from the documents list and pick your export method. You may save it as a PDF, email it, or upload it to the cloud.
It's easier to work with documents with pdfFiller than you can have ever thought. You can sign up for an account to see for yourself.
Uncompromising security for your PDF editing and eSignature needs
Your private information is safe with pdfFiller. We employ end-to-end encryption, secure cloud storage, and advanced access control to protect your documents and maintain regulatory compliance.
How to fill out board of supervisors

How to fill out board of supervisors
01
Gather necessary information about your local government structure.
02
Obtain the official form for the board of supervisors.
03
Fill in your personal details such as name, address, and contact information.
04
Provide any required details related to your qualifications or experience.
05
Submit the completed form by the specified deadline.
Who needs board of supervisors?
01
Local government officials responsible for administrative decision-making.
02
Community members who wish to engage with or influence local governance.
03
Candidates seeking election or appointment to local supervisory roles.
Fill
form
: Try Risk Free
For pdfFiller’s FAQs
Below is a list of the most common customer questions. If you can’t find an answer to your question, please don’t hesitate to reach out to us.
How do I edit board of supervisors in Chrome?
Adding the pdfFiller Google Chrome Extension to your web browser will allow you to start editing board of supervisors and other documents right away when you search for them on a Google page. People who use Chrome can use the service to make changes to their files while they are on the Chrome browser. pdfFiller lets you make fillable documents and make changes to existing PDFs from any internet-connected device.
How can I fill out board of supervisors on an iOS device?
Install the pdfFiller iOS app. Log in or create an account to access the solution's editing features. Open your board of supervisors by uploading it from your device or online storage. After filling in all relevant fields and eSigning if required, you may save or distribute the document.
How do I fill out board of supervisors on an Android device?
On an Android device, use the pdfFiller mobile app to finish your board of supervisors. The program allows you to execute all necessary document management operations, such as adding, editing, and removing text, signing, annotating, and more. You only need a smartphone and an internet connection.
What is board of supervisors?
The board of supervisors is a governing body in certain local governments, often responsible for legislative and administrative functions, overseeing county affairs, and representing the interests of the community.
Who is required to file board of supervisors?
Typically, local government officials, such as those in county or municipality leadership roles, are required to file with the board of supervisors, but specific requirements can vary by jurisdiction.
How to fill out board of supervisors?
To fill out the board of supervisors form, one must provide the necessary personal and professional information, including details about their position and any relevant affiliations, and ensure all required sections are complete.
What is the purpose of board of supervisors?
The purpose of the board of supervisors is to ensure effective local governance, oversee financial and land use matters, and protect the interests of the residents within the jurisdiction.
What information must be reported on board of supervisors?
Information that must be reported generally includes personal details of the reporting individual, the capacity in which they serve, financial interests, and any potential conflicts of interest.
Fill out your board of supervisors online with pdfFiller!
pdfFiller is an end-to-end solution for managing, creating, and editing documents and forms in the cloud. Save time and hassle by preparing your tax forms online.

Board Of Supervisors is not the form you're looking for?Search for another form here.
Relevant keywords
Related Forms
If you believe that this page should be taken down, please follow our DMCA take down process
here
.
This form may include fields for payment information. Data entered in these fields is not covered by PCI DSS compliance.