Get the free Application for Financial Assistance
Show details
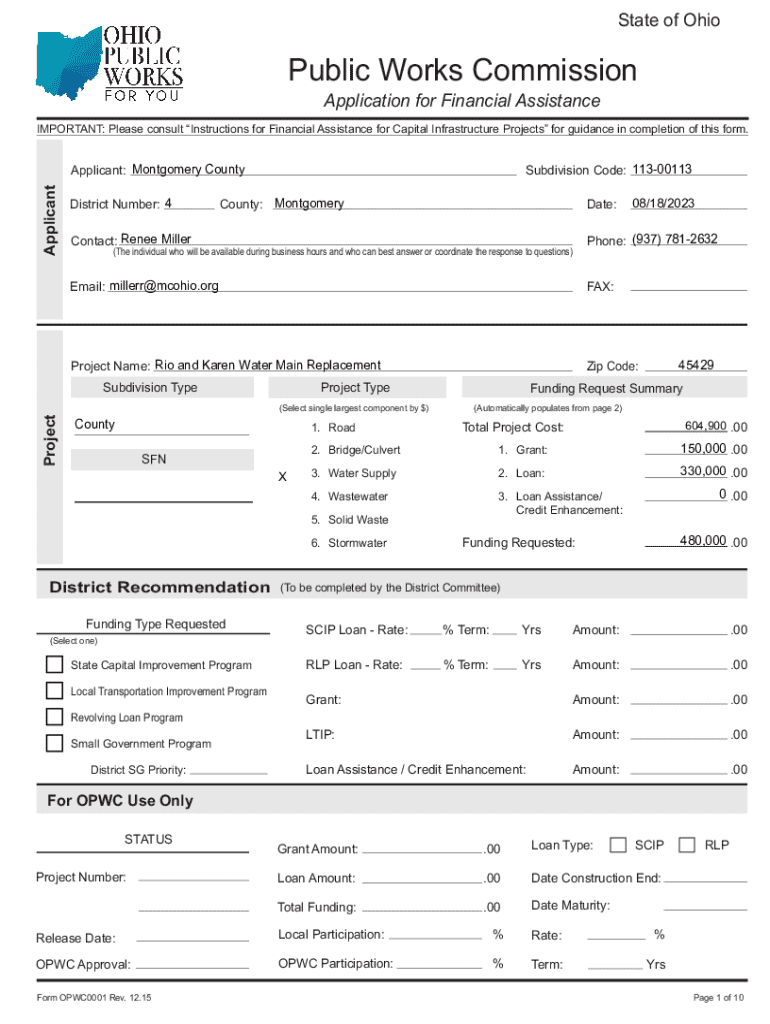
This application seeks financial assistance for the Rio and Karen Water Main Replacement project in Montgomery County, aimed at replacing the aging cast iron water main installed in 1954 due to excessive
We are not affiliated with any brand or entity on this form
Get, Create, Make and Sign application for financial assistance
Edit your application for financial assistance form online
Type text, complete fillable fields, insert images, highlight or blackout data for discretion, add comments, and more.
Add your legally-binding signature
Draw or type your signature, upload a signature image, or capture it with your digital camera.
Share your form instantly
Email, fax, or share your application for financial assistance form via URL. You can also download, print, or export forms to your preferred cloud storage service.
How to edit application for financial assistance online
Follow the guidelines below to use a professional PDF editor:
1
Log in to account. Click Start Free Trial and sign up a profile if you don't have one yet.
2
Prepare a file. Use the Add New button. Then upload your file to the system from your device, importing it from internal mail, the cloud, or by adding its URL.
3
Edit application for financial assistance. Add and replace text, insert new objects, rearrange pages, add watermarks and page numbers, and more. Click Done when you are finished editing and go to the Documents tab to merge, split, lock or unlock the file.
4
Get your file. When you find your file in the docs list, click on its name and choose how you want to save it. To get the PDF, you can save it, send an email with it, or move it to the cloud.
Dealing with documents is always simple with pdfFiller.
Uncompromising security for your PDF editing and eSignature needs
Your private information is safe with pdfFiller. We employ end-to-end encryption, secure cloud storage, and advanced access control to protect your documents and maintain regulatory compliance.
How to fill out application for financial assistance
How to fill out application for financial assistance
01
Gather all necessary documents such as proof of income, identification, and bills.
02
Visit the website of the financial assistance program or agency you are applying to.
03
Download or request the application form.
04
Carefully read the instructions provided with the application form.
05
Fill out the application form accurately, ensuring all required fields are completed.
06
Attach any supporting documents that are requested.
07
Review your application for any errors or missing information.
08
Submit the application by the specified deadline, either online or by mail.
Who needs application for financial assistance?
01
Individuals or families facing financial hardships.
02
Low-income households needing help with bills or living expenses.
03
Students seeking assistance for educational costs.
04
People affected by emergencies such as job loss or medical emergencies.
Fill
form
: Try Risk Free
For pdfFiller’s FAQs
Below is a list of the most common customer questions. If you can’t find an answer to your question, please don’t hesitate to reach out to us.
How can I get application for financial assistance?
It’s easy with pdfFiller, a comprehensive online solution for professional document management. Access our extensive library of online forms (over 25M fillable forms are available) and locate the application for financial assistance in a matter of seconds. Open it right away and start customizing it using advanced editing features.
How do I complete application for financial assistance online?
Completing and signing application for financial assistance online is easy with pdfFiller. It enables you to edit original PDF content, highlight, blackout, erase and type text anywhere on a page, legally eSign your form, and much more. Create your free account and manage professional documents on the web.
How do I fill out the application for financial assistance form on my smartphone?
Use the pdfFiller mobile app to fill out and sign application for financial assistance on your phone or tablet. Visit our website to learn more about our mobile apps, how they work, and how to get started.
What is application for financial assistance?
An application for financial assistance is a formal request submitted by an individual or organization seeking financial support or funding for specific needs, projects, or emergencies.
Who is required to file application for financial assistance?
Individuals, families, or organizations in need of financial support due to various reasons such as medical expenses, education costs, or unexpected hardships are typically required to file an application.
How to fill out application for financial assistance?
To fill out an application for financial assistance, gather required documents, complete the application form with accurate information, clearly state the financial need, and submit it along with any necessary supporting documentation.
What is the purpose of application for financial assistance?
The purpose of an application for financial assistance is to provide a structured way for individuals and organizations to request help in funding essential needs or projects, ensuring that the requests are assessed fairly.
What information must be reported on application for financial assistance?
The application must report personal or organizational details, the amount of financial assistance requested, a description of the need, income and expenses, and any additional relevant documentation or statements.
Fill out your application for financial assistance online with pdfFiller!
pdfFiller is an end-to-end solution for managing, creating, and editing documents and forms in the cloud. Save time and hassle by preparing your tax forms online.
Application For Financial Assistance is not the form you're looking for?Search for another form here.
Relevant keywords
Related Forms
If you believe that this page should be taken down, please follow our DMCA take down process
here
.
This form may include fields for payment information. Data entered in these fields is not covered by PCI DSS compliance.