Get the free Lot Split / Subdivision Review Application
Show details
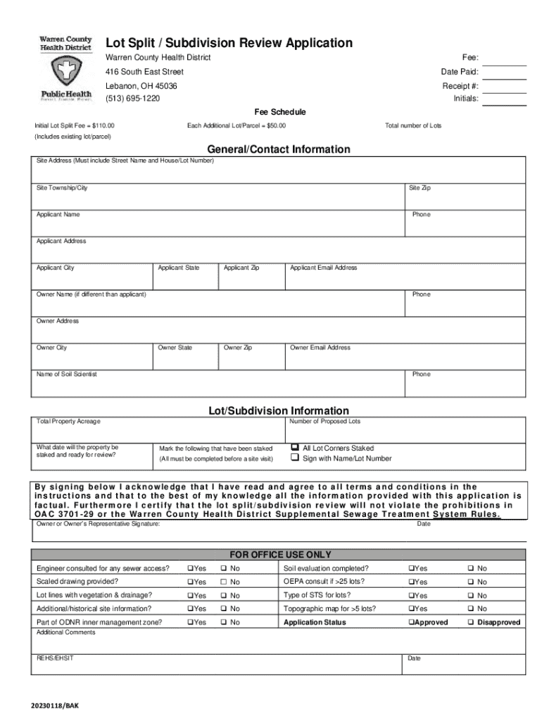
This form outlines the requirements for submitting a lot split or subdivision application to the Warren County Health District, including necessary documentation, fees, and site evaluations.
We are not affiliated with any brand or entity on this form
Get, Create, Make and Sign lot split subdivision review
Edit your lot split subdivision review form online
Type text, complete fillable fields, insert images, highlight or blackout data for discretion, add comments, and more.
Add your legally-binding signature
Draw or type your signature, upload a signature image, or capture it with your digital camera.
Share your form instantly
Email, fax, or share your lot split subdivision review form via URL. You can also download, print, or export forms to your preferred cloud storage service.
Editing lot split subdivision review online
To use our professional PDF editor, follow these steps:
1
Log in. Click Start Free Trial and create a profile if necessary.
2
Prepare a file. Use the Add New button. Then upload your file to the system from your device, importing it from internal mail, the cloud, or by adding its URL.
3
Edit lot split subdivision review. Replace text, adding objects, rearranging pages, and more. Then select the Documents tab to combine, divide, lock or unlock the file.
4
Get your file. When you find your file in the docs list, click on its name and choose how you want to save it. To get the PDF, you can save it, send an email with it, or move it to the cloud.
It's easier to work with documents with pdfFiller than you could have ever thought. You can sign up for an account to see for yourself.
Uncompromising security for your PDF editing and eSignature needs
Your private information is safe with pdfFiller. We employ end-to-end encryption, secure cloud storage, and advanced access control to protect your documents and maintain regulatory compliance.
How to fill out lot split subdivision review
How to fill out lot split subdivision review
01
Gather necessary documents such as property deeds and surveys.
02
Review local zoning laws and subdivision regulations.
03
Prepare a lot split application form provided by the local planning department.
04
Provide a detailed site plan indicating the proposed lot lines and dimensions.
05
Include information on access to public roads and utilities for each new lot.
06
Submit the application along with the required fee to the local planning office.
07
Attend any necessary public hearings or meetings as required by the review process.
08
Address any comments or concerns raised by planning staff or the public.
09
Await approval or request for modifications before finalizing the subdivision.
Who needs lot split subdivision review?
01
Property owners looking to divide their land into smaller parcels.
02
Developers planning to create new residential or commercial lots.
03
Land investors aiming to increase the value of their property through subdivision.
04
Local governments reviewing plans to ensure compliance with zoning and urban planning regulations.
Fill
form
: Try Risk Free
For pdfFiller’s FAQs
Below is a list of the most common customer questions. If you can’t find an answer to your question, please don’t hesitate to reach out to us.
How can I edit lot split subdivision review from Google Drive?
By integrating pdfFiller with Google Docs, you can streamline your document workflows and produce fillable forms that can be stored directly in Google Drive. Using the connection, you will be able to create, change, and eSign documents, including lot split subdivision review, all without having to leave Google Drive. Add pdfFiller's features to Google Drive and you'll be able to handle your documents more effectively from any device with an internet connection.
How can I send lot split subdivision review for eSignature?
When your lot split subdivision review is finished, send it to recipients securely and gather eSignatures with pdfFiller. You may email, text, fax, mail, or notarize a PDF straight from your account. Create an account today to test it.
How do I complete lot split subdivision review on an iOS device?
Install the pdfFiller iOS app. Log in or create an account to access the solution's editing features. Open your lot split subdivision review by uploading it from your device or online storage. After filling in all relevant fields and eSigning if required, you may save or distribute the document.
What is lot split subdivision review?
Lot split subdivision review is a process that involves evaluating proposals for dividing a parcel of land into smaller lots, ensuring compliance with local zoning regulations and land use planning.
Who is required to file lot split subdivision review?
Property owners or developers seeking to split a property into separate lots typically need to file a lot split subdivision review.
How to fill out lot split subdivision review?
To fill out a lot split subdivision review, applicants generally need to complete a designated application form, provide a site plan of the proposed lot division, and submit any required supporting documents.
What is the purpose of lot split subdivision review?
The purpose of lot split subdivision review is to ensure that land divisions comply with zoning laws, land use regulations, and to promote orderly development in the community.
What information must be reported on lot split subdivision review?
Information commonly required includes property boundaries, dimensions of existing and proposed lots, zoning designations, proposed use of lots, and any applicable easements or rights of way.
Fill out your lot split subdivision review online with pdfFiller!
pdfFiller is an end-to-end solution for managing, creating, and editing documents and forms in the cloud. Save time and hassle by preparing your tax forms online.
Lot Split Subdivision Review is not the form you're looking for?Search for another form here.
Relevant keywords
Related Forms
If you believe that this page should be taken down, please follow our DMCA take down process
here
.
This form may include fields for payment information. Data entered in these fields is not covered by PCI DSS compliance.