Get the free Sign Application Checklist
Show details
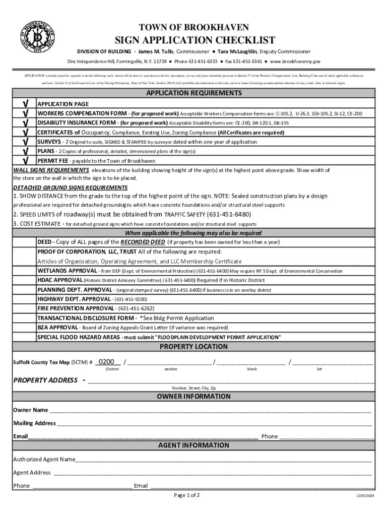
This document outlines the requirements for applying for a sign permit in the Town of Brookhaven, including necessary forms, fees, and approvals needed from various departments.
We are not affiliated with any brand or entity on this form
Get, Create, Make and Sign sign application checklist
Edit your sign application checklist form online
Type text, complete fillable fields, insert images, highlight or blackout data for discretion, add comments, and more.
Add your legally-binding signature
Draw or type your signature, upload a signature image, or capture it with your digital camera.
Share your form instantly
Email, fax, or share your sign application checklist form via URL. You can also download, print, or export forms to your preferred cloud storage service.
How to edit sign application checklist online
Use the instructions below to start using our professional PDF editor:
1
Set up an account. If you are a new user, click Start Free Trial and establish a profile.
2
Prepare a file. Use the Add New button. Then upload your file to the system from your device, importing it from internal mail, the cloud, or by adding its URL.
3
Edit sign application checklist. Rearrange and rotate pages, insert new and alter existing texts, add new objects, and take advantage of other helpful tools. Click Done to apply changes and return to your Dashboard. Go to the Documents tab to access merging, splitting, locking, or unlocking functions.
4
Save your file. Choose it from the list of records. Then, shift the pointer to the right toolbar and select one of the several exporting methods: save it in multiple formats, download it as a PDF, email it, or save it to the cloud.
pdfFiller makes working with documents easier than you could ever imagine. Register for an account and see for yourself!
Uncompromising security for your PDF editing and eSignature needs
Your private information is safe with pdfFiller. We employ end-to-end encryption, secure cloud storage, and advanced access control to protect your documents and maintain regulatory compliance.
How to fill out sign application checklist
How to fill out sign application checklist
01
Gather all necessary documents required for the sign application process.
02
Review the specific requirements for your locality regarding sign permits.
03
Fill out the applicant's information section with your name, address, and contact details.
04
Provide details about the sign, including size, type, and design.
05
Attach any required site plans or diagrams that show where the sign will be placed.
06
Check for any attached fees and include payment information if necessary.
07
Review the checklist to ensure all sections are complete and necessary documents are included.
08
Submit the completed checklist along with the application form to the appropriate authority.
Who needs sign application checklist?
01
Businesses planning to install or modify signage.
02
Property owners applying for sign permits.
03
Contractors working on sign installation projects.
04
Designers creating signage for clients.
Fill
form
: Try Risk Free
For pdfFiller’s FAQs
Below is a list of the most common customer questions. If you can’t find an answer to your question, please don’t hesitate to reach out to us.
How can I modify sign application checklist without leaving Google Drive?
It is possible to significantly enhance your document management and form preparation by combining pdfFiller with Google Docs. This will allow you to generate papers, amend them, and sign them straight from your Google Drive. Use the add-on to convert your sign application checklist into a dynamic fillable form that can be managed and signed using any internet-connected device.
Can I edit sign application checklist on an iOS device?
You can. Using the pdfFiller iOS app, you can edit, distribute, and sign sign application checklist. Install it in seconds at the Apple Store. The app is free, but you must register to buy a subscription or start a free trial.
How do I edit sign application checklist on an Android device?
Yes, you can. With the pdfFiller mobile app for Android, you can edit, sign, and share sign application checklist on your mobile device from any location; only an internet connection is needed. Get the app and start to streamline your document workflow from anywhere.
What is sign application checklist?
A sign application checklist is a document that outlines the necessary steps and requirements for submitting an application to install or modify signage.
Who is required to file sign application checklist?
Any individual or business intending to install, modify, or remove signage on their property is required to file a sign application checklist.
How to fill out sign application checklist?
To fill out the sign application checklist, follow the instructions provided in the document, complete all required sections accurately, and attach any necessary supporting documents.
What is the purpose of sign application checklist?
The purpose of the sign application checklist is to ensure that all necessary information is provided and to facilitate the review and approval process by relevant authorities.
What information must be reported on sign application checklist?
Information that must be reported on the sign application checklist typically includes the location of the sign, dimensions, design specifications, proposed materials, and any applicable permits.
Fill out your sign application checklist online with pdfFiller!
pdfFiller is an end-to-end solution for managing, creating, and editing documents and forms in the cloud. Save time and hassle by preparing your tax forms online.
Sign Application Checklist is not the form you're looking for?Search for another form here.
Relevant keywords
Related Forms
If you believe that this page should be taken down, please follow our DMCA take down process
here
.
This form may include fields for payment information. Data entered in these fields is not covered by PCI DSS compliance.