Get the free Notice of Intent (noi) for Stormwater Discharges From Ms4 General Permit 3-9014
Show details
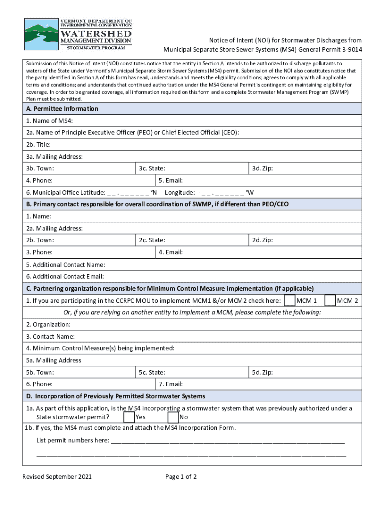
This document serves as a Notice of Intent for an entity intending to discharge pollutants under Vermont\'s MS4 permit, confirming eligibility and compliance with terms and conditions.
We are not affiliated with any brand or entity on this form
Get, Create, Make and Sign notice of intent noi
Edit your notice of intent noi form online
Type text, complete fillable fields, insert images, highlight or blackout data for discretion, add comments, and more.
Add your legally-binding signature
Draw or type your signature, upload a signature image, or capture it with your digital camera.
Share your form instantly
Email, fax, or share your notice of intent noi form via URL. You can also download, print, or export forms to your preferred cloud storage service.
Editing notice of intent noi online
Use the instructions below to start using our professional PDF editor:
1
Log in to your account. Click Start Free Trial and sign up a profile if you don't have one.
2
Prepare a file. Use the Add New button to start a new project. Then, using your device, upload your file to the system by importing it from internal mail, the cloud, or adding its URL.
3
Edit notice of intent noi. Replace text, adding objects, rearranging pages, and more. Then select the Documents tab to combine, divide, lock or unlock the file.
4
Get your file. When you find your file in the docs list, click on its name and choose how you want to save it. To get the PDF, you can save it, send an email with it, or move it to the cloud.
With pdfFiller, it's always easy to work with documents. Try it!
Uncompromising security for your PDF editing and eSignature needs
Your private information is safe with pdfFiller. We employ end-to-end encryption, secure cloud storage, and advanced access control to protect your documents and maintain regulatory compliance.
How to fill out notice of intent noi
How to fill out notice of intent noi
01
Obtain the Notice of Intent (NOI) form from the appropriate regulatory agency.
02
Fill in your personal or business information in the required fields.
03
Specify the project details, including the type of project and location.
04
Indicate the anticipated start and completion dates for the project.
05
Include a description of the proposed activities and their potential impact on the environment.
06
Provide any necessary supporting documentation or permits that may be required.
07
Review the completed form for accuracy and completeness.
08
Submit the NOI form according to the agency's submission guidelines.
Who needs notice of intent noi?
01
Individuals or organizations planning construction activities that may impact the environment.
02
Contractors and developers needing to comply with environmental regulations.
03
Businesses seeking permits for land use changes or environmental remediation.
Fill
form
: Try Risk Free
For pdfFiller’s FAQs
Below is a list of the most common customer questions. If you can’t find an answer to your question, please don’t hesitate to reach out to us.
How do I execute notice of intent noi online?
pdfFiller has made filling out and eSigning notice of intent noi easy. The solution is equipped with a set of features that enable you to edit and rearrange PDF content, add fillable fields, and eSign the document. Start a free trial to explore all the capabilities of pdfFiller, the ultimate document editing solution.
Can I create an electronic signature for the notice of intent noi in Chrome?
As a PDF editor and form builder, pdfFiller has a lot of features. It also has a powerful e-signature tool that you can add to your Chrome browser. With our extension, you can type, draw, or take a picture of your signature with your webcam to make your legally-binding eSignature. Choose how you want to sign your notice of intent noi and you'll be done in minutes.
How can I fill out notice of intent noi on an iOS device?
Install the pdfFiller iOS app. Log in or create an account to access the solution's editing features. Open your notice of intent noi by uploading it from your device or online storage. After filling in all relevant fields and eSigning if required, you may save or distribute the document.
What is notice of intent noi?
A Notice of Intent (NOI) is a formal declaration submitted to regulatory authorities indicating a party's intention to engage in a specific activity, often related to environmental permitting for projects that could impact natural resources.
Who is required to file notice of intent noi?
Typically, any individual or organization planning to undertake activities that may affect the environment, such as construction or land development, is required to file a Notice of Intent to ensure compliance with environmental regulations.
How to fill out notice of intent noi?
To fill out a Notice of Intent, one should gather relevant project information, complete the required forms with details such as project location, duration, and scope, and submit the NOI to the appropriate regulatory agency, often along with a fee.
What is the purpose of notice of intent noi?
The purpose of a Notice of Intent is to inform regulatory bodies and the public about proposed activities that may impact the environment, ensuring that these activities are reviewed for compliance with environmental laws and regulations.
What information must be reported on notice of intent noi?
An NOI typically requires information such as the project location, description of the project, anticipated start and completion dates, contact information for the applicant, and any potential environmental impacts or mitigation measures.
Fill out your notice of intent noi online with pdfFiller!
pdfFiller is an end-to-end solution for managing, creating, and editing documents and forms in the cloud. Save time and hassle by preparing your tax forms online.
Notice Of Intent Noi is not the form you're looking for?Search for another form here.
Relevant keywords
Related Forms
If you believe that this page should be taken down, please follow our DMCA take down process
here
.
This form may include fields for payment information. Data entered in these fields is not covered by PCI DSS compliance.