Get the free Dos Permit Application - Bayville Ave - dos ny
Show details
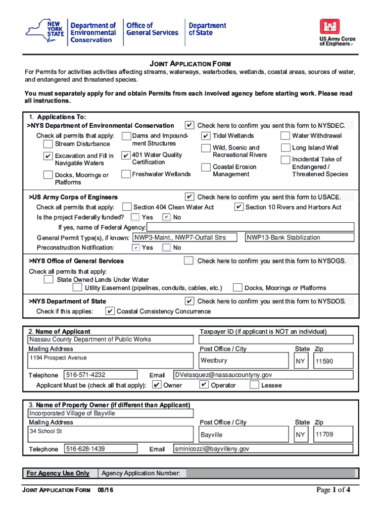
This document outlines the application for permits related to drainage improvements along Bayville Avenue and Adams Avenue in Bayville, NY. The project aims to enhance drainage capacity to mitigate
We are not affiliated with any brand or entity on this form
Get, Create, Make and Sign dos permit application
Edit your dos permit application form online
Type text, complete fillable fields, insert images, highlight or blackout data for discretion, add comments, and more.
Add your legally-binding signature
Draw or type your signature, upload a signature image, or capture it with your digital camera.
Share your form instantly
Email, fax, or share your dos permit application form via URL. You can also download, print, or export forms to your preferred cloud storage service.
Editing dos permit application online
Here are the steps you need to follow to get started with our professional PDF editor:
1
Log in to account. Click Start Free Trial and sign up a profile if you don't have one.
2
Upload a file. Select Add New on your Dashboard and upload a file from your device or import it from the cloud, online, or internal mail. Then click Edit.
3
Edit dos permit application. Add and change text, add new objects, move pages, add watermarks and page numbers, and more. Then click Done when you're done editing and go to the Documents tab to merge or split the file. If you want to lock or unlock the file, click the lock or unlock button.
4
Get your file. When you find your file in the docs list, click on its name and choose how you want to save it. To get the PDF, you can save it, send an email with it, or move it to the cloud.
pdfFiller makes working with documents easier than you could ever imagine. Create an account to find out for yourself how it works!
Uncompromising security for your PDF editing and eSignature needs
Your private information is safe with pdfFiller. We employ end-to-end encryption, secure cloud storage, and advanced access control to protect your documents and maintain regulatory compliance.
How to fill out dos permit application
How to fill out dos permit application
01
Gather all necessary documents including identification and proof of residence.
02
Obtain the DOS permit application form from the official website or designated office.
03
Carefully read the instructions provided on the form.
04
Fill out the application form with accurate information in each required field.
05
Attach any required supporting documents as specified in the application instructions.
06
Review your application for completeness and accuracy before submission.
07
Submit the completed application along with any applicable fees to the appropriate authorities.
Who needs dos permit application?
01
Individuals planning to conduct activities or events that require authorization.
02
Organizations that intend to operate within regulated sectors governed by DOS.
03
Businesses seeking permits for specific operations or services that fall under DOS jurisdiction.
Fill
form
: Try Risk Free
For pdfFiller’s FAQs
Below is a list of the most common customer questions. If you can’t find an answer to your question, please don’t hesitate to reach out to us.
How can I modify dos permit application without leaving Google Drive?
Simplify your document workflows and create fillable forms right in Google Drive by integrating pdfFiller with Google Docs. The integration will allow you to create, modify, and eSign documents, including dos permit application, without leaving Google Drive. Add pdfFiller’s functionalities to Google Drive and manage your paperwork more efficiently on any internet-connected device.
Can I create an electronic signature for the dos permit application in Chrome?
You certainly can. You get not just a feature-rich PDF editor and fillable form builder with pdfFiller, but also a robust e-signature solution that you can add right to your Chrome browser. You may use our addon to produce a legally enforceable eSignature by typing, sketching, or photographing your signature with your webcam. Choose your preferred method and eSign your dos permit application in minutes.
How do I complete dos permit application on an iOS device?
Make sure you get and install the pdfFiller iOS app. Next, open the app and log in or set up an account to use all of the solution's editing tools. If you want to open your dos permit application, you can upload it from your device or cloud storage, or you can type the document's URL into the box on the right. After you fill in all of the required fields in the document and eSign it, if that is required, you can save or share it with other people.
What is dos permit application?
The DOS permit application is a form required by the Department of State (DOS) for regulatory approvals related to various activities such as construction, environmental projects, and business operations.
Who is required to file dos permit application?
Individuals or organizations planning to engage in activities that require regulatory approval from the Department of State, including but not limited to developers, businesses, and government entities, are required to file a DOS permit application.
How to fill out dos permit application?
To fill out the DOS permit application, applicants must complete the designated form, providing necessary information such as project details, applicant information, and any supporting documentation required by the DOS.
What is the purpose of dos permit application?
The purpose of the DOS permit application is to ensure that all regulated activities comply with state laws and regulations, safeguard the environment, and protect public interest.
What information must be reported on dos permit application?
The information required on the DOS permit application typically includes the applicant's name and contact details, project description, location, project timeline, and any relevant environmental impact assessments.
Fill out your dos permit application online with pdfFiller!
pdfFiller is an end-to-end solution for managing, creating, and editing documents and forms in the cloud. Save time and hassle by preparing your tax forms online.
Dos Permit Application is not the form you're looking for?Search for another form here.
Relevant keywords
Related Forms
If you believe that this page should be taken down, please follow our DMCA take down process
here
.
This form may include fields for payment information. Data entered in these fields is not covered by PCI DSS compliance.