Get the free Nye County Board of County Commissioners Agenda Item Request Form
Show details
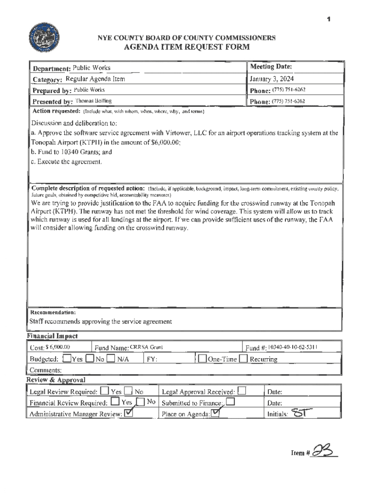
Discussion and deliberation to approve the software service agreement with Virtower, LLC for an airport operations tracking system at the Tonopah Airport (KTPH) in the amount of $6,000.00. The system
We are not affiliated with any brand or entity on this form
Get, Create, Make and Sign nye county board of
Edit your nye county board of form online
Type text, complete fillable fields, insert images, highlight or blackout data for discretion, add comments, and more.
Add your legally-binding signature
Draw or type your signature, upload a signature image, or capture it with your digital camera.
Share your form instantly
Email, fax, or share your nye county board of form via URL. You can also download, print, or export forms to your preferred cloud storage service.
How to edit nye county board of online
Here are the steps you need to follow to get started with our professional PDF editor:
1
Log in. Click Start Free Trial and create a profile if necessary.
2
Upload a file. Select Add New on your Dashboard and upload a file from your device or import it from the cloud, online, or internal mail. Then click Edit.
3
Edit nye county board of. Text may be added and replaced, new objects can be included, pages can be rearranged, watermarks and page numbers can be added, and so on. When you're done editing, click Done and then go to the Documents tab to combine, divide, lock, or unlock the file.
4
Save your file. Select it from your records list. Then, click the right toolbar and select one of the various exporting options: save in numerous formats, download as PDF, email, or cloud.
With pdfFiller, it's always easy to work with documents.
Uncompromising security for your PDF editing and eSignature needs
Your private information is safe with pdfFiller. We employ end-to-end encryption, secure cloud storage, and advanced access control to protect your documents and maintain regulatory compliance.
How to fill out nye county board of
How to fill out nye county board of
01
Begin by visiting the Nye County Board website to access the necessary forms and information.
02
Identify the specific form you need to fill out based on your purpose (e.g., business license, permits, etc.).
03
Carefully read the instructions provided with the form to understand the requirements.
04
Collect all required documents and information needed to complete the form.
05
Fill out the form accurately, ensuring all information is complete and correct.
06
Double-check your entries for any errors or omissions.
07
Submit the completed form either online (if available), by mail, or in person at the designated Nye County office.
Who needs nye county board of?
01
Individuals or businesses looking to operate within Nye County.
02
Persons seeking permits or licenses related to construction, business operations, or local regulations.
03
Residents who need access to county services or wish to participate in local government activities.
Fill
form
: Try Risk Free
For pdfFiller’s FAQs
Below is a list of the most common customer questions. If you can’t find an answer to your question, please don’t hesitate to reach out to us.
How do I edit nye county board of in Chrome?
nye county board of can be edited, filled out, and signed with the pdfFiller Google Chrome Extension. You can open the editor right from a Google search page with just one click. Fillable documents can be done on any web-connected device without leaving Chrome.
Can I create an electronic signature for the nye county board of in Chrome?
Yes. By adding the solution to your Chrome browser, you may use pdfFiller to eSign documents while also enjoying all of the PDF editor's capabilities in one spot. Create a legally enforceable eSignature by sketching, typing, or uploading a photo of your handwritten signature using the extension. Whatever option you select, you'll be able to eSign your nye county board of in seconds.
How can I edit nye county board of on a smartphone?
Using pdfFiller's mobile-native applications for iOS and Android is the simplest method to edit documents on a mobile device. You may get them from the Apple App Store and Google Play, respectively. More information on the apps may be found here. Install the program and log in to begin editing nye county board of.
What is Nye County Board of?
The Nye County Board of is a governing body that oversees the administration, policies, and functions of Nye County, Nevada.
Who is required to file Nye County Board of?
Individuals and entities that are involved in business operations or property ownership in Nye County may be required to file with the Nye County Board.
How to fill out Nye County Board of?
To fill out the Nye County Board of forms, one should obtain the necessary forms from the Nye County government website, provide accurate information as required, and submit them according to the outlined procedures.
What is the purpose of Nye County Board of?
The purpose of the Nye County Board of is to manage local governance, implement policies, and ensure that the interests and needs of the county's residents are addressed.
What information must be reported on Nye County Board of?
The information that must be reported typically includes details about business operations, property ownership, financial disclosures, and compliance with local regulations.
Fill out your nye county board of online with pdfFiller!
pdfFiller is an end-to-end solution for managing, creating, and editing documents and forms in the cloud. Save time and hassle by preparing your tax forms online.
Nye County Board Of is not the form you're looking for?Search for another form here.
Relevant keywords
Related Forms
If you believe that this page should be taken down, please follow our DMCA take down process
here
.
This form may include fields for payment information. Data entered in these fields is not covered by PCI DSS compliance.