
Get the free Small Building Quality Control Inspection Form
Show details
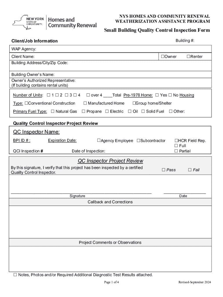
This document is used for quality control inspections of buildings participating in the Weatherization Assistance Program, capturing client and job information, inspector details, inspection results,
We are not affiliated with any brand or entity on this form
Get, Create, Make and Sign small building quality control

Edit your small building quality control form online
Type text, complete fillable fields, insert images, highlight or blackout data for discretion, add comments, and more.

Add your legally-binding signature
Draw or type your signature, upload a signature image, or capture it with your digital camera.

Share your form instantly
Email, fax, or share your small building quality control form via URL. You can also download, print, or export forms to your preferred cloud storage service.
Editing small building quality control online
Follow the steps below to benefit from a competent PDF editor:
1
Register the account. Begin by clicking Start Free Trial and create a profile if you are a new user.
2
Prepare a file. Use the Add New button to start a new project. Then, using your device, upload your file to the system by importing it from internal mail, the cloud, or adding its URL.
3
Edit small building quality control. Rearrange and rotate pages, add new and changed texts, add new objects, and use other useful tools. When you're done, click Done. You can use the Documents tab to merge, split, lock, or unlock your files.
4
Save your file. Select it from your records list. Then, click the right toolbar and select one of the various exporting options: save in numerous formats, download as PDF, email, or cloud.
The use of pdfFiller makes dealing with documents straightforward.
Uncompromising security for your PDF editing and eSignature needs
Your private information is safe with pdfFiller. We employ end-to-end encryption, secure cloud storage, and advanced access control to protect your documents and maintain regulatory compliance.
How to fill out small building quality control

How to fill out small building quality control
01
Gather necessary documents: Ensure you have all relevant architectural and engineering plans.
02
Review compliance: Check building plans against local building codes and regulations.
03
Inspect materials: Verify that all materials meet quality standards and specifications.
04
Conduct site inspections: Regularly inspect the construction site during different phases of the project.
05
Document findings: Record all observations, discrepancies, and corrective actions taken.
06
Communicate with stakeholders: Keep all parties informed about quality control issues and resolutions.
07
Review final construction: Conduct a final inspection to ensure all aspects of the building conform to the original plans.
Who needs small building quality control?
01
Building contractors who need to maintain compliance with construction standards.
02
Property developers looking to ensure the quality and safety of their buildings.
03
Local government agencies that regulate building standards.
04
Homeowners who want to ensure their investment is safe and up to code.
05
Architects and engineers responsible for the design and structural integrity of buildings.
Fill
form
: Try Risk Free
For pdfFiller’s FAQs
Below is a list of the most common customer questions. If you can’t find an answer to your question, please don’t hesitate to reach out to us.
How can I edit small building quality control on a smartphone?
You can easily do so with pdfFiller's apps for iOS and Android devices, which can be found at the Apple Store and the Google Play Store, respectively. You can use them to fill out PDFs. We have a website where you can get the app, but you can also get it there. When you install the app, log in, and start editing small building quality control, you can start right away.
How do I fill out the small building quality control form on my smartphone?
The pdfFiller mobile app makes it simple to design and fill out legal paperwork. Complete and sign small building quality control and other papers using the app. Visit pdfFiller's website to learn more about the PDF editor's features.
How do I fill out small building quality control on an Android device?
Use the pdfFiller mobile app and complete your small building quality control and other documents on your Android device. The app provides you with all essential document management features, such as editing content, eSigning, annotating, sharing files, etc. You will have access to your documents at any time, as long as there is an internet connection.
What is small building quality control?
Small building quality control refers to the systematic process of ensuring that construction and renovation projects for small buildings meet specified standards and regulations. It involves inspections, tests, and evaluations during various phases of the construction process to ensure compliance with design specifications and safety measures.
Who is required to file small building quality control?
Typically, contractors, builders, or project managers overseeing small building projects are required to file small building quality control documentation. Depending on local regulations, this may also include architects or engineers responsible for the design.
How to fill out small building quality control?
To fill out small building quality control documentation, one should follow these steps: 1. Obtain the appropriate quality control forms from the local building authority. 2. Complete the forms with details about the project, including the type of construction, materials used, and inspection dates. 3. Document any inspections conducted and the results, including any corrective actions taken. 4. Ensure all required signatures are included before submission.
What is the purpose of small building quality control?
The purpose of small building quality control is to ensure the safety, durability, and functionality of small buildings. It helps to identify and rectify potential issues during construction, thereby promoting compliance with building codes and standards, reducing liability, and ensuring the overall quality of the finished project.
What information must be reported on small building quality control?
Information that must be reported on small building quality control includes project details (such as location and description), compliance with building codes, results of inspections and tests, any deviations from the plan, remedial actions taken, and signatures of relevant parties involved in the quality control process.
Fill out your small building quality control online with pdfFiller!
pdfFiller is an end-to-end solution for managing, creating, and editing documents and forms in the cloud. Save time and hassle by preparing your tax forms online.

Small Building Quality Control is not the form you're looking for?Search for another form here.
Relevant keywords
If you believe that this page should be taken down, please follow our DMCA take down process
here
.
This form may include fields for payment information. Data entered in these fields is not covered by PCI DSS compliance.