Form preview

Get the free Quotations for Small Purchases (qsp) No. Qsp 2024-03

Get Form
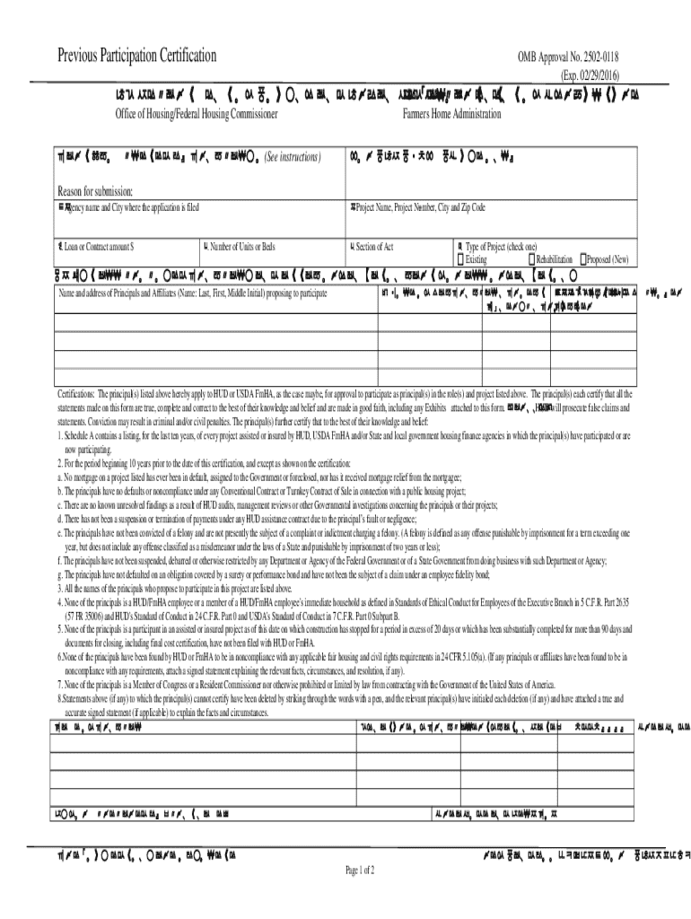
This document is a solicitation for quotes for make ready repairs to residential units at Parks Place managed by the Montgomery Housing Authority, outlining project specifications, deadlines, and
We are not affiliated with any brand or entity on this form

Get, Create, Make and Sign quotations for small purchases

Edit
Edit your quotations for small purchases form online
Type text, complete fillable fields, insert images, highlight or blackout data for discretion, add comments, and more.
Add
Add your legally-binding signature
Draw or type your signature, upload a signature image, or capture it with your digital camera.
Share
Share your form instantly
Email, fax, or share your quotations for small purchases form via URL. You can also download, print, or export forms to your preferred cloud storage service.

How to edit quotations for small purchases online

9.5
Ease of Setup
pdfFiller User Ratings on G2
9.0
Ease of Use
pdfFiller User Ratings on G2
To use our professional PDF editor, follow these steps:
1
Register the account. Begin by clicking Start Free Trial and create a profile if you are a new user.
2
Prepare a file. Use the Add New button. Then upload your file to the system from your device, importing it from internal mail, the cloud, or by adding its URL.
3
Edit quotations for small purchases. Text may be added and replaced, new objects can be included, pages can be rearranged, watermarks and page numbers can be added, and so on. When you're done editing, click Done and then go to the Documents tab to combine, divide, lock, or unlock the file.
4
Get your file. Select the name of your file in the docs list and choose your preferred exporting method. You can download it as a PDF, save it in another format, send it by email, or transfer it to the cloud.
Dealing with documents is always simple with pdfFiller.

Uncompromising security for your PDF editing and eSignature needs

Your private information is safe with pdfFiller. We employ end-to-end encryption, secure cloud storage, and advanced access control to protect your documents and maintain regulatory compliance.
GDPR
AICPA SOC 2
PCI
HIPAA
CCPA
FDA

How to fill out quotations for small purchases

Illustration

How to fill out quotations for small purchases

01
Identify the goods or services needed for the small purchase.
02
Research potential vendors or suppliers who can provide the items.
03
Request price quotes from at least three different vendors for comparison.
04
Provide detailed specifications for the items or services being quoted to ensure accurate pricing.
05
Review the received quotations carefully, considering price, delivery time, and vendor reputation.
06
Select the best quotation based on the criteria established.
07
Document the chosen quotation and any agreed-upon terms for future reference.

Who needs quotations for small purchases?

01
Small business owners who need to manage budgets effectively.
02
Individuals making personal purchases that require comparison of costs.
03
Procurement departments of larger organizations for minor acquisitions.
04
Teams and departments within companies looking for cost-effective solutions.

Quotations for Small Purchases Form: A How-To Guide

Understanding small purchases and their importance

Small purchases refer to items or services typically acquired at a low cost, often characterized by their quick procurement process. Generally, they are defined as expenditures that fall below a specific threshold determined by an organization’s purchasing policy, which varies widely between businesses. For instance, while one company sets the limit for small purchases at $500, another may classify purchases below $1,000 as small.

Quotations play a fundamental role in ensuring transparency and informed decision-making for small purchases. They provide essential details about offerings from different vendors, allowing individuals and businesses to select the best option based on price, quality, and reliability. Situations such as purchasing office supplies, equipment rentals, or specialized services often require obtaining quotations to maintain budgetary control and to fulfill organizational procurement guidelines.

Budget management through informed financial decisions.
Facilitating competitive pricing and quality comparisons.
Ensuring compliance with organizational purchasing policies.

Key components of quotations for small purchases

A comprehensive quotation for small purchases must cover several essential components to ensure clarity and functionality. When creating or reviewing a quotation, it's important to look for information such as vendor details, which typically include the company name, contact information, and a reference number for tracking. Additionally, item descriptions should clearly outline what is being purchased, including specifications if applicable.

The pricing breakdown is equally significant, as it details the unit price, quantity, and any additional fees, giving the purchasing agent a complete picture of costs involved. Clear and transparent quotations can help prevent misunderstandings between purchasers and vendors, establishing clear expectations and responsibilities.

Types of small purchases requiring quotations

Various categories of small purchases frequently necessitate quotations, catering to the diverse needs of businesses and individuals alike. Office supplies are a common area where quotes are sought to ensure competitive pricing for necessities like paper, ink, and stationery.

Equipment rentals for short-term projects also require quotations, whether for construction tools, audiovisual equipment, or special event needs. Further, service quotations, encompassing cleaning services, maintenance tasks, and consultancy are pivotal in establishing a clear financial expectation and ensuring quality delivery. Travel expenses, including transportation and accommodation arrangements, often require careful comparison via quotes to manage budgets effectively.

Office supplies: paper, pens, and other essentials.
Equipment rentals: tools and specialized equipment.
Services: cleaning, maintenance, and consultancy.
Travel expenses: flights, hotels, and rentals.

How to create a quotation for small purchases

Preparing an effective quotation for small purchases involves a structured approach. First, gather all pertinent information, such as vendor contact details, item specifications, and current pricing data. This foundational step is crucial in ensuring that the quotation is not only accurate but also meets the needs of the purchasing party.

Next, utilizing a template or form for the quotation can streamline the process significantly. Ensure that all included items have accurate pricing, taking care to account for any volume discounts or additional fees. After completing the initial draft, it's essential to review and edit the quotation for clarity and completeness. Making sure that all needed components are covered will aid in avoiding confusion later on.

Gather necessary information.
Use a template or form for consistency.
Ensure accurate and competitive pricing.
Review and edit for clarity.

When crafting an effective quotation, it's also crucial to be specific and detailed. Including terms and conditions, delivery timelines, and any warranties or guarantees can make the difference between a quotation that gets accepted and one that does not.

Using the quotations for small purchases form on pdfFiller

pdfFiller’s interactive Quotations for Small Purchases Form is designed to facilitate seamless document creation and management. First, access the form through the pdfFiller platform, which provides various tools tailored to your document needs. Once you've opened the form, filling out required fields, like vendor information and item specifications, is straightforward and intuitive.

After populating the fields, you can save and edit your document as needed, ensuring that any last-minute changes to pricing or specifications are incorporated. The ability to eSign directly within the platform simplifies the approval process, making it easy to share your finalized quotation with stakeholders or vendors swiftly.

Access the form via the pdfFiller platform.
Fill out the required fields with necessary information.
Save and edit your document as required.
Utilize eSigning features for swift approvals.

Best practices for managing quotations

Effectively managing quotations begins with the establishment of a robust organization system. Storing and organizing quotations in a centralized digital repository not only protects against data loss but also makes retrieval easier when needed. Keeping track of response deadlines is equally important, as it allows for timely follow-ups and reduces delays in procurement processes.

Good follow-up communications with vendors enhance relationships and may provide additional value or incentives. By ensuring consistent communication, you can clarify any doubts and obtain the best possible deal. Techniques for effective tracking may include using checklists, reminders, or project management software tailored to your workflow.

Legal and regulatory considerations

When dealing with quotations for small purchases, understanding compliance requirements is vital, particularly for businesses that need to adhere to governmental procurement rules or company policies. Maintaining a detailed record of all quotations requested and received is essential for auditing and accountability purposes.

In cases where the procurement involves substantial expenditures or unique legal stipulations, seeking legal advice is recommended to navigate the various regulations effectively. It is important to ensure all aspects of the purchase are compliant to avoid potential legal implications.

Common pitfalls to avoid when requesting quotations

There are several common pitfalls to be wary of when requesting quotations. The first is a lack of clarity in your request, which can lead to vendors providing irrelevant or incomplete information. It’s essential to articulate precisely what you need to avoid misunderstandings that could derail your purchasing process.

Another mistake is failing to compare quotations effectively, which may result in missing out on better pricing or quality options. It's also crucial to consider the vendor's reputation and quality of service; choosing solely based on the lowest price can lead to compromising quality.

Unclear requests leading to irrelevant responses.
Ineffective comparison resulting in lost opportunities.
Ignoring vendor reputation in favor of low prices.

Frequently asked questions (FAQs)

When handling multiple quotations, it’s common to feel overwhelmed. If you receive multiple quotations, evaluate each on its merits, considering not only price but also quality and value. It’s also possible to modify a quotation after sending it; however, communicate changes promptly to avoid confusion.

Regarding the validity of quotations, most are typically valid for a specified period, which can range from a few days to several weeks. Be sure to confirm this timeframe with your vendors to ensure timely decisions.

What to do if I receive multiple quotations.
Can I modify my quotation after sending it?
How long are quotations typically valid?

Conclusion: Leveraging quotations for successful small purchases

Utilizing quotations for small purchases forms, like the one offered by pdfFiller, can greatly streamline your procurement process, ensuring that every transaction is efficient and financially sensible. The documentation obtained through proper quoting practices enables clearer financial tracking, fosters vendor relationships, and ultimately sustains a company's bottom line.

Prioritizing the collection and management of quotations will support your overall strategy for financial efficiency and effective resource allocation. Embracing tools like pdfFiller can empower teams to enhance collaboration and simplify the management of their procurement documents.

Fill form : Try Risk Free
Users Most Likely To Recommend - Summer 2025
Grid Leader in Small-Business - Summer 2025
High Performer - Summer 2025
Regional Leader - Summer 2025
Easiest To Do Business With - Summer 2025
Best Meets Requirements- Summer 2025
Rate the form
4.7
Satisfied
58 Votes

For pdfFiller’s FAQs

Below is a list of the most common customer questions. If you can’t find an answer to your question, please don’t hesitate to reach out to us.

pdfFiller’s add-on for Gmail enables you to create, edit, fill out and eSign your quotations for small purchases and any other documents you receive right in your inbox. Visit Google Workspace Marketplace and install pdfFiller for Gmail. Get rid of time-consuming steps and manage your documents and eSignatures effortlessly.
By combining pdfFiller with Google Docs, you can generate fillable forms directly in Google Drive. No need to leave Google Drive to make edits or sign documents, including quotations for small purchases. Use pdfFiller's features in Google Drive to handle documents on any internet-connected device.
Use the pdfFiller app for Android to finish your quotations for small purchases. The application lets you do all the things you need to do with documents, like add, edit, and remove text, sign, annotate, and more. There is nothing else you need except your smartphone and an internet connection to do this.
Quotations for small purchases are informal price estimates provided by suppliers to allow buyers to evaluate options for low-cost items or services before making a purchase.
Typically, procurement officials or employees responsible for purchasing within an organization are required to file quotations for small purchases, especially when the purchase exceeds a certain threshold.
To fill out quotations for small purchases, list the items or services being requested, specify quantities, provide a detailed description, include pricing, and attach any relevant terms and conditions from the suppliers.
The purpose of quotations for small purchases is to facilitate comparison of prices and terms between different suppliers, ensuring better decision-making and cost-effectiveness in procurement.
Quotations for small purchases must report the supplier's name, contact information, item descriptions, quantities, unit prices, total prices, and any applicable delivery terms or conditions.
Fill out your quotations for small purchases online with pdfFiller!

pdfFiller is an end-to-end solution for managing, creating, and editing documents and forms in the cloud. Save time and hassle by preparing your tax forms online.

Get started now
Form preview
If you believe that this page should be taken down, please follow our DMCA take down process here .
This form may include fields for payment information. Data entered in these fields is not covered by PCI DSS compliance.