Form preview

Get the free Environmental Review Record

Get Form
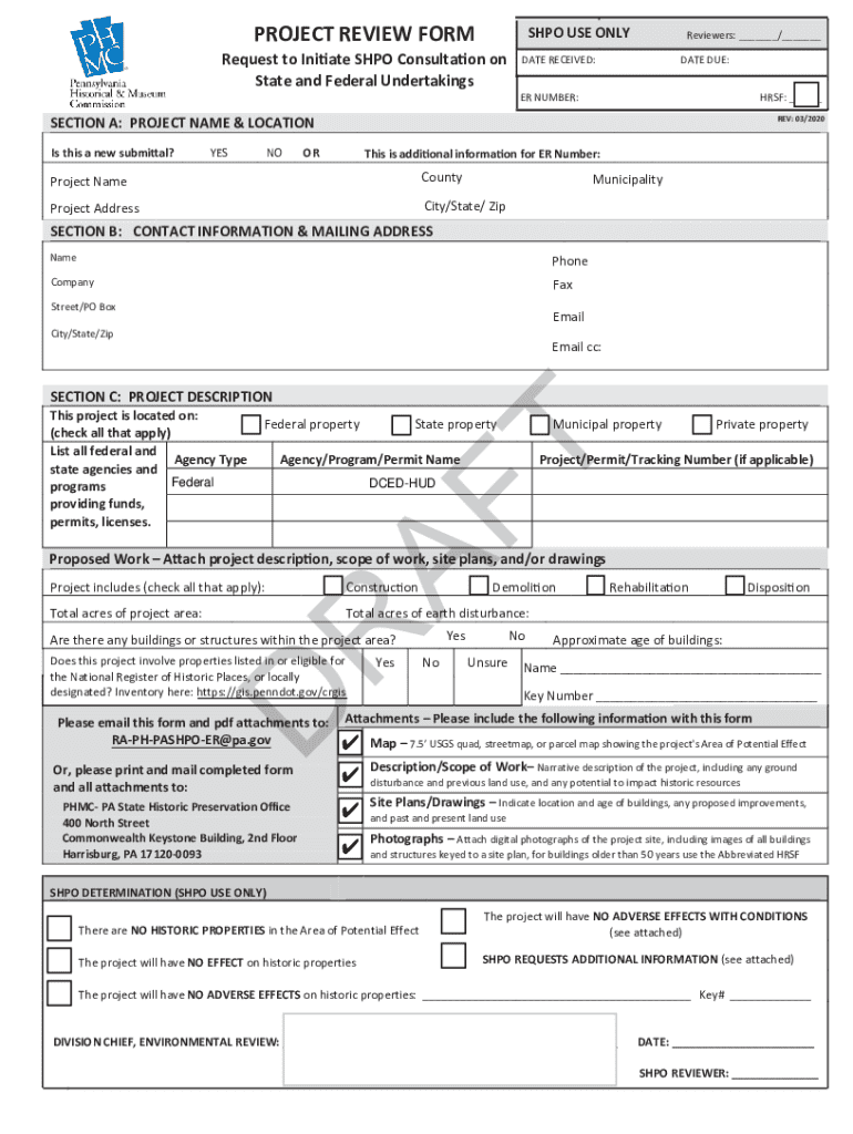
This document outlines the environmental review process for the Owner-Occupied Housing Rehabilitation project in Milton Borough, detailing the compliance with various environmental laws and authorities
We are not affiliated with any brand or entity on this form

Get, Create, Make and Sign environmental review record

Edit
Edit your environmental review record form online
Type text, complete fillable fields, insert images, highlight or blackout data for discretion, add comments, and more.
Add
Add your legally-binding signature
Draw or type your signature, upload a signature image, or capture it with your digital camera.
Share
Share your form instantly
Email, fax, or share your environmental review record form via URL. You can also download, print, or export forms to your preferred cloud storage service.

Editing environmental review record online

9.5
Ease of Setup
pdfFiller User Ratings on G2
9.0
Ease of Use
pdfFiller User Ratings on G2
Use the instructions below to start using our professional PDF editor:
1
Create an account. Begin by choosing Start Free Trial and, if you are a new user, establish a profile.
2
Prepare a file. Use the Add New button. Then upload your file to the system from your device, importing it from internal mail, the cloud, or by adding its URL.
3
Edit environmental review record. Add and replace text, insert new objects, rearrange pages, add watermarks and page numbers, and more. Click Done when you are finished editing and go to the Documents tab to merge, split, lock or unlock the file.
4
Save your file. Select it in the list of your records. Then, move the cursor to the right toolbar and choose one of the available exporting methods: save it in multiple formats, download it as a PDF, send it by email, or store it in the cloud.
pdfFiller makes dealing with documents a breeze. Create an account to find out!

Uncompromising security for your PDF editing and eSignature needs

Your private information is safe with pdfFiller. We employ end-to-end encryption, secure cloud storage, and advanced access control to protect your documents and maintain regulatory compliance.
GDPR
AICPA SOC 2
PCI
HIPAA
CCPA
FDA

How to fill out environmental review record

Illustration

How to fill out environmental review record

01
Gather necessary project information including location, type, and scope.
02
Review applicable environmental regulations and guidelines.
03
Complete the environmental review form, ensuring to address all sections.
04
Identify potential environmental impacts associated with the project.
05
Consult with relevant stakeholders for their input and concerns.
06
Document any findings or conclusions regarding the environmental impacts.
07
Submit the completed environmental review record to the appropriate authority.

Who needs environmental review record?

01
Project developers and sponsors.
02
Government agencies responsible for environmental oversight.
03
Community organizations interested in environmental impacts.
04
Consultants involved in environmental assessments.

Understanding the Environmental Review Record Form

Overview of environmental review record forms

An Environmental Review Record Form is a crucial document used in the evaluation of potential environmental impacts associated with proposed projects. Its primary purpose is to compile necessary data and analyses that help determine whether a project complies with environmental regulations and standards. This form is instrumental for various stakeholders involved in environmental compliance, including project managers, environmental consultants, government agencies, and community organizations.

The significance of Environmental Review Record Forms extends beyond mere paperwork; they ensure that environmental considerations are integrated into the project planning and decision-making processes. By requiring assessments of potential impacts and mitigation measures, these forms help to protect natural resources, public health, and the overall environment from detrimental effects.

Project Managers: Responsible for overseeing project implementation and ensuring compliance.
Environmental Consultants: Specialists in conducting impact assessments and preparing reports.
Government Agencies: Regulatory bodies that assess and approve submitted forms.
Community Organizations: Stakeholders advocating for environmental protection and public interest.

Understanding the legal framework

The National Environmental Policy Act (NEPA) plays a significant role in shaping the requirements for Environmental Review Record Forms. Enacted in 1969, NEPA mandates federal agencies to evaluate the environmental effects of their proposed actions before making decisions. This legislation establishes the groundwork for environmental reviews conducted at various levels and promotes transparency and public participation in the decision-making process.

The connection between NEPA and environmental review procedures highlights the necessity for detailed documentation, which aids agencies in understanding environmental implications. Regulatory requirements necessitate that project proponents follow specific guidelines, ensuring that all potential environmental impacts are considered and addressed. This structured approach to project evaluation not only encourages accountability but also fosters sustainable development and environmental stewardship.

Compliance with NEPA: Ensuring all federal projects undergo environmental reviews.
Environmental Review Procedures: Outlining steps for assessing impacts and fostering public input.
Regulatory Guidelines: Available from agencies like the Environmental Protection Agency (EPA), providing standards and checklists.

Key components of an environmental review record form

A comprehensive Environmental Review Record Form includes several essential sections that gather vital information for evaluating potential environmental impacts. The first critical component is the Project Description, providing details about the nature and scope of the proposed project. This section should be clear and concise, outlining the objectives, location, and timeline of the project, which are fundamental for understanding its environmental relevance.

The Environmental Impact Analysis forms another essential segment, where project proponents assess the possible environmental consequences of the project. This includes examining factors such as air and water quality, flora and fauna, noise levels, and cultural resources. Understanding these impacts is crucial for determining the need for mitigation measures, which should be clearly detailed in the subsequent section of the form.

Project Description: Clear summary of project objectives, location, and scope.
Environmental Impact Analysis: Assessment of potential adverse effects on the environment.
Mitigation Measures: Strategies to avoid, reduce, or compensate for negative impacts.

The accuracy and completeness of data within these sections are paramount. Inaccurate information can lead to flawed assessments and may result in regulatory penalties or project delays. Therefore, diligence in documenting every aspect of the proposed project and its environmental implications can ensure seamless compliance and facilitate sound decision-making.

Steps to complete an environmental review record form

Completing an Environmental Review Record Form requires careful consideration and systematic steps to ensure thoroughness and compliance. The first step involves gathering all necessary information. This means identifying required documents, such as feasibility studies, environmental assessments, and project plans, along with data sources that provide insights into existing environmental conditions.

Next, when filling out the Project Description, clarity and accessibility are crucial. Use straightforward language and define any technical jargon to make the form understandable for all stakeholders. This may include visual aids, such as maps or diagrams, to provide context for project features. Following this, assessing potential environmental impacts is essential; project teams can use checklists to ensure no significant aspect is overlooked.

Gather Necessary Information: Compile all relevant data, documents, and studies.
Fill Out Project Description: Provide clear and concise summaries with appropriate visuals.
Assess Potential Environmental Impacts: Utilize checklists to cover all relevant aspects.
Propose Mitigation Strategies: Include actionable plans addressing potential impacts.
Review and Finalize the Form: Ensure all information is accurate and complete before submission.

Mitigation strategies should be realistic and based on best practices that have proven effective in similar scenarios. Lastly, a thorough review of the entire form is necessary before submission to identify any inconsistencies or missing information. This critical step can prevent avoidable complications during the approval process.

Interactive tools for document creation

pdfFiller offers innovative tools that streamline the creation and management of Environmental Review Records. One of the standout features is the ability to edit PDFs with ease, allowing users to update project information or address feedback from collaborators swiftly. This flexibility is essential when dealing with evolving project details or adjusting to regulatory requirements.

Moreover, the platform supports eSigning and collaboration management, enabling stakeholders to review, sign, and provide input on the document seamlessly. With access to templates and pre-filled forms, users can customize their Environmental Review Records based on specific project needs, saving time and ensuring they meet all the necessary compliance requirements.

Editing PDFs: Quickly modify project details and environmental analysis.
eSigning and Collaboration: Streamlined process for stakeholders to review and approve.
Templates and Pre-filled Forms: Customization based on specific project requirements.

Collaborating on the environmental review record form

Effective collaboration is key to creating a comprehensive Environmental Review Record Form. Engaging team members throughout this process fosters various perspectives that enrich the content and ensure all necessary aspects are covered. Strategies for team collaboration include using shared platforms like pdfFiller for real-time updates and discussions, making it easier to manage feedback and suggestions.

Managing stakeholder input is also vital. Inviting comments from local communities or advocacy groups can provide valuable insights that enhance environmental considerations. It’s essential to track changes made to the form meticulously, maintaining version control to avoid confusion and ensure that everyone is aligned on the latest draft.

Engage Team Members: Involve various roles for a comprehensive approach.
Use Shared Platforms: Implement tools like pdfFiller for real-time editing and feedback.
Manage Stakeholder Input: Encourage feedback from the community and relevant groups.
Track Changes: Maintain clear records of all modifications and versions.

Common mistakes to avoid

When completing an Environmental Review Record Form, several common pitfalls can hinder the effectiveness of the submission. One major mistake includes providing incomplete information. Every section of the form is critical; missing data can lead to delays or rejections during the review process. It’s essential to ensure thoroughness in gathering and documenting all necessary details.

Another frequent misstep involves underestimating the importance of environmental impact assessments. A superficial analysis can result in overlooking significant potential impacts, leading to regulatory consequences and harm to the environment. Lastly, ignoring regulatory deadlines can be detrimental; each project has its timelines and schedules that must be adhered to for successful compliance and implementation.

Incomplete Information: Ensure all sections are thoroughly filled out to avoid delays.
Underestimating Environmental Impact Assessments: Engage in comprehensive analyses to capture all potential impacts.
Ignoring Regulatory Deadlines: Be aware of all timelines to maintain compliance.

Managing and storing the environmental review record

Managing and storing Environmental Review Records is crucial for ensuring ongoing accessibility and compliance. Best practices for document management include implementing a systematic filing system that categorizes documents based on projects, types of reviews, and deadlines. A well-organized system facilitates easy retrieval and reference, particularly during later phases of the project.

Utilizing cloud solutions, like those offered by pdfFiller, allows users to access their Environmental Review Records from anywhere with an internet connection. This not only enhances usability but also promotes collaboration through shared access. Additionally, ensuring security and compliance in storage is essential. Documents should be protected through robust security measures and regular audits to prevent unauthorized access and ensure compliance with applicable regulations.

Implement Systematic Filing: Organize documents by project and review type for easier access.
Utilize Cloud Solutions: Enable access from anywhere for collaborative efforts.
Ensure Security and Compliance: Protect documents from unauthorized access with security measures.

Frequently asked questions (FAQs)

The purpose of the Environmental Review Record Form is to ensure thorough evaluation of potential environmental impacts from proposed projects. It provides a structured framework for compliance with environmental regulations, promoting informed decision-making among stakeholders.

Any individual or team involved in project planning and implementation needs to fill out this form, which may include project managers, environmental consultants, or representatives from regulatory agencies. The form facilitates effective communication and transparency concerning environmental considerations.

pdfFiller simplifies the process by offering user-friendly editing tools, eSigning capabilities, and collaborative features that streamline the preparation of these documents. Should additional information be required after submission, stakeholders can follow up using the platform's tracking features, ensuring smooth communication and updates.

What is the purpose of the Environmental Review Record Form? It ensures compliance with environmental regulations through thorough evaluation.
Who needs to fill out this form? Individuals and teams involved in project planning, including managers and consultants.
How does pdfFiller simplify the process? It provides user-friendly tools for editing, signing, and managing documents.
What if additional information is needed after submission? Use pdfFiller's tracking features for updates and communication.

Final thoughts on streamlining your environmental review process

Efficient documentation is critical in navigating the complexities of environmental compliance, and the Environmental Review Record Form serves as a cornerstone in this process. By leveraging technology, particularly solutions offered by pdfFiller, teams can enhance their document management strategies, ensuring that all necessary information is systematically gathered and effectively communicated.

Ultimately, integrating modern tools and methodologies can lead to more informed decision-making, streamlined processes, and better outcomes in environmental stewardship. It is essential for all individuals and teams involved to embrace these innovations, thereby contributing to sustainable development and environmental responsibility.

Fill form : Try Risk Free
Users Most Likely To Recommend - Summer 2025
Grid Leader in Small-Business - Summer 2025
High Performer - Summer 2025
Regional Leader - Summer 2025
Easiest To Do Business With - Summer 2025
Best Meets Requirements- Summer 2025
Rate the form
4.9
Satisfied
27 Votes

For pdfFiller’s FAQs

Below is a list of the most common customer questions. If you can’t find an answer to your question, please don’t hesitate to reach out to us.

environmental review record can be edited, filled out, and signed with the pdfFiller Google Chrome Extension. You can open the editor right from a Google search page with just one click. Fillable documents can be done on any web-connected device without leaving Chrome.
Use the pdfFiller mobile app to create, edit, and share environmental review record from your iOS device. Install it from the Apple Store in seconds. You can benefit from a free trial and choose a subscription that suits your needs.
Install the pdfFiller app on your iOS device to fill out papers. If you have a subscription to the service, create an account or log in to an existing one. After completing the registration process, upload your environmental review record. You may now use pdfFiller's advanced features, such as adding fillable fields and eSigning documents, and accessing them from any device, wherever you are.
An environmental review record is a documentation process that assesses the potential environmental impact of a proposed project or action. It compiles data, assessments, and findings related to environmental factors.
Typically, project proponents or developers who are seeking approval for projects that may impact the environment are required to file an environmental review record.
To fill out an environmental review record, one must gather relevant information related to the proposed project, assess potential environmental impacts, complete required forms, and submit the documentation as per regulatory guidelines.
The purpose of the environmental review record is to ensure informed decision-making by evaluating potential environmental effects, promoting accountability, and identifying necessary mitigation measures.
The information reported on the environmental review record typically includes project description, existing environmental conditions, potential impacts, mitigation measures, and public comments.
Fill out your environmental review record online with pdfFiller!

pdfFiller is an end-to-end solution for managing, creating, and editing documents and forms in the cloud. Save time and hassle by preparing your tax forms online.

Get started now
Form preview
If you believe that this page should be taken down, please follow our DMCA take down process here .
This form may include fields for payment information. Data entered in these fields is not covered by PCI DSS compliance.