
Get the free Short Environmental Assessment Form - dec ny
Get, Create, Make and Sign short environmental assessment form



How to edit short environmental assessment form online
Uncompromising security for your PDF editing and eSignature needs
How to fill out short environmental assessment form

How to fill out short environmental assessment form
Who needs short environmental assessment form?
A comprehensive guide to the short environmental assessment form
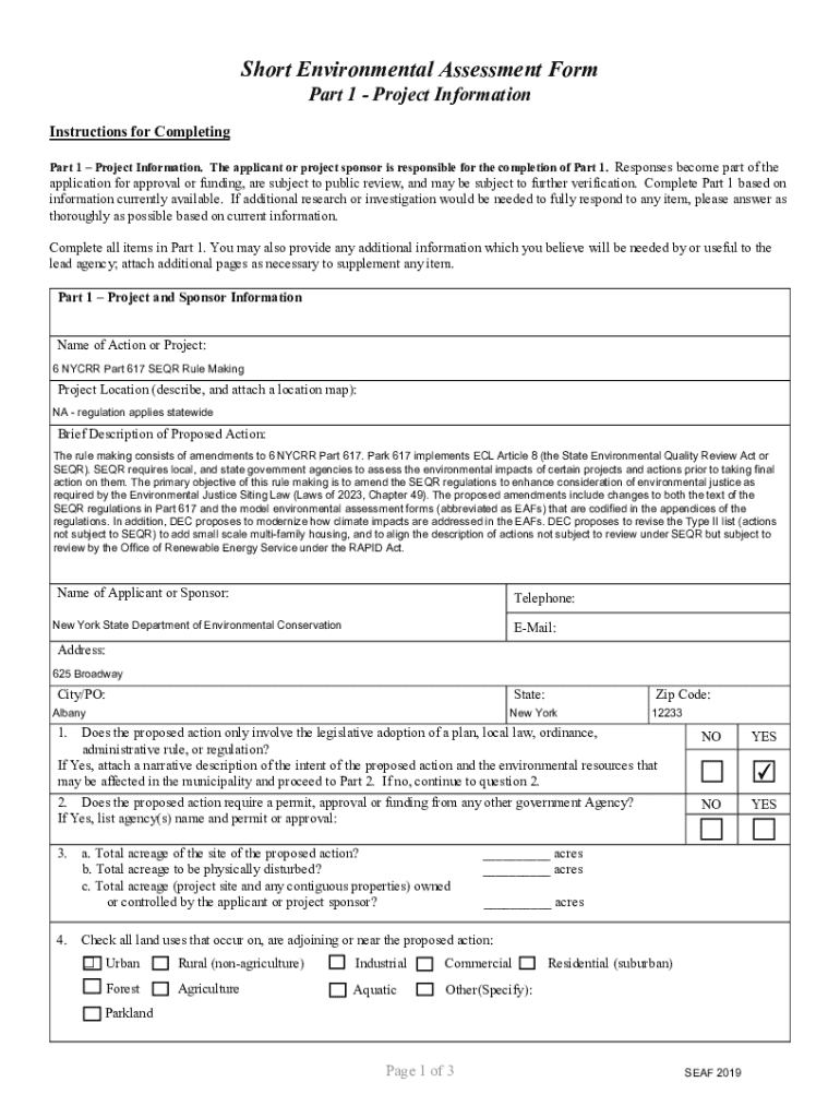
Overview of the short environmental assessment form (SEAF)
The Short Environmental Assessment Form (SEAF) is a streamlined tool designed to facilitate the environmental review process for proposed projects, particularly those that are less complex and lower-impact. By identifying potential environmental effects early in the planning stages, SEAF aids project planners in making informed decisions that favor ecological sustainability.
Environmental assessments are crucial in the project planning phase, as they help ensure that any significant environmental impacts are considered and mitigated. Conducting a thorough SEAF can reveal necessary adjustments or modifications, fostering compliance with local, state, or federal regulations, and ultimately ensuring the longevity and success of the project.
Use cases for the short environmental assessment form
The SEAF is particularly beneficial in numerous situations where standard environmental assessments might be overkill. For example, local governments often utilize SEAFs for residential developments, small commercial enterprises, or renovations that may pose minimal ecological risks.
Common projects employing the SEAF include single-family housing subdivisions, expansions of existing facilities, and community parks. Case studies illustrate successful implementations of SEAFs, such as a neighborhood development that, after using the form, proactively addressed local wildlife concerns, ultimately gaining community support and expediting the permitting process.
When to use the short environmental assessment form
Deciding when to employ the SEAF hinges on several criteria, including project scope, expected environmental impact, and local regulations. Generally, projects that fall under a certain square footage threshold or those identified as low to moderate risk often qualify for SEAFs.
Regulation compliance is also critical; agencies often provide specific guidelines about when an SEAF is applicable. So, understanding local jurisdictional requirements helps ensure that the correct forms are utilized in compliance with regional environmental policies.
Step-by-step guide to completing the short environmental assessment form
Step 1: Preparing necessary information
Before diving into the SEAF, gather all necessary information that may help in accurately filling out the form. This includes existing environmental conditions, project descriptions, site plans, and any relevant permits already obtained.
Supportive evidence might include previous environmental assessments, photographs of the site, or data collected from local conservation agencies. Organizing this information ahead of time will enhance both the efficiency and accuracy of your submission.
Step 2: Filling out the form
The SEAF consists of multiple sections, each seeking specific information about the project and its potential environmental consequences. Complete each section with care, ensuring that details about project location, purpose, and any identified impacts are presented clearly.
Consider consulting with team members for their insights to ensure all details are correctly articulated. Collaborating not only enhances the form’s accuracy but also mitigates the risk of overlooking critical impacts.
Step 3: Reviewing your submission
Before finalizing your submission, it's essential to conduct a thorough review to identify common errors such as misunderstandings of questions or discrepancies between documented information and the form's responses. A robust peer review can also catch potential oversights.
Interactive tools and resources for SEAF completion
Utilizing pdfFiller’s interactive tools can significantly ease the process of SEAF completion. With its embedded form-filling capabilities, users can fill out the SEAF digitally, helping to minimize errors and streamline submissions. Furthermore, pdfFiller offers templates and samples that can serve as invaluable references, ensuring that users do not start from scratch.
The cloud-based platform not only allows for editing but also enables real-time collaboration among team members. Digital tools simplify communication and record-keeping during the assessment process, allowing individuals to make adjustments effortlessly and maintain an organized filing system.
Collaboration and feedback mechanisms
Effective collaboration is crucial during the SEAF process, as various stakeholders may need to provide input. Techniques like scheduled team meetings, shared digital documents, and project management tools can enhance communication and ensure that all voices are heard.
Incorporating feedback loops in environmental assessments allows for continuous improvement by enabling teams to learn from past submissions. This could involve using a tool like pdfFiller that facilitates comment tracking and response management, ensuring transparent communication among team members.
Editing and managing your completed short environmental assessment form
Once the SEAF is completed, future updates may be necessary if project parameters change or new information becomes available. It’s essential to know how to make adjustments efficiently without starting the entire process over. Using pdfFiller’s editing features can greatly simplify this task, allowing users to revise sections directly.
Version control is another significant factor in managing changes. Keeping track of revisions ensures that all stakeholders are aligned and makes it simpler to revert to earlier drafts if needed. Utilize pdfFiller’s functionalities to log changes and maintain a comprehensive document history.
eSigning the short environmental assessment form
With the increasing digitization of documentation, eSigning has become an industry standard for approving and finalizing forms like the SEAF. Understanding eSignature legislation is essential; these digital signatures are recognized as legally binding in many jurisdictions, which streamlines the approval process.
Signing the SEAF electronically using pdfFiller is straightforward. Users can easily sign documents anywhere using a computer or mobile device. Alongside convenience, pdfFiller prioritizes security with high-standard encryption, ensuring that all signatures are protected against unauthorized access.
Frequently asked questions about the short environmental assessment form
Some misconceptions surrounding the SEAF include the belief that it is only suitable for minor projects. In reality, it serves a broader purpose, providing a necessary assessment tool for various developmental scenarios. Clarity around the legal implications of SEAF is also vital; users should ensure they understand how it aligns with both state and federal environmental laws.
Those using the SEAF may have specific inquiries regarding its completion and submission processes. For example, understanding how submission deadlines align with local regulations is essential. Engaging with subject matter experts or accessing resources provided by environmental agencies can provide further assistance.
Best practices for conducting environmental assessments
To ensure assessment outcomes are effective and comprehensive, multiple best practices can be adopted. Thorough stakeholder engagement is crucial; incorporating feedback from local communities or environmental experts will lead to a more complete understanding of potential impacts.
Additionally, transparency throughout the environmental assessment process boosts public trust and supports accountability. Always document findings clearly, and present results openly to help stakeholders grasp the implications of project decisions related to the SEAF.
Additional support and learning opportunities
Individuals and teams seeking to enhance their understanding of environmental assessments can benefit from various support mechanisms. Webinars and workshops hosted by pdfFiller provide insights into completing the SEAF effectively, featuring expert-led discussions on best practices and evolving regulations.
Engaging with community platforms can also foster collaboration, promoting knowledge sharing among professionals involved in environmental projects. Staying informed of regulatory changes affecting assessments is crucial for continued compliance and best practices.
Navigating challenges in the assessment process
Encountering challenges during the environmental assessment process is not uncommon. Projects may face unexpected complications, such as gathering the necessary data or addressing stakeholder concerns. Developing strategies to overcome these hurdles is essential for project success.
Utilizing support networks, whether through professional organizations or peer collaboration, can offer critical resources for tackling these challenges. Additionally, being adaptable to changing environmental policies will ensure compliance and mitigate risks.
For pdfFiller’s FAQs
Below is a list of the most common customer questions. If you can’t find an answer to your question, please don’t hesitate to reach out to us.
How can I send short environmental assessment form to be eSigned by others?
How do I fill out the short environmental assessment form form on my smartphone?
How do I edit short environmental assessment form on an iOS device?
What is short environmental assessment form?
Who is required to file short environmental assessment form?
How to fill out short environmental assessment form?
What is the purpose of short environmental assessment form?
What information must be reported on short environmental assessment form?
pdfFiller is an end-to-end solution for managing, creating, and editing documents and forms in the cloud. Save time and hassle by preparing your tax forms online.
