Get the free Consultant Agreement
Show details
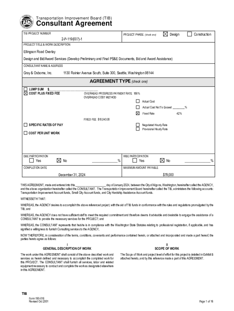
This document outlines the terms and conditions of the consultant agreement for the Ellingson Road Overlay project, detailing the scope of work, payment structure, compliance requirements, and other
We are not affiliated with any brand or entity on this form
Get, Create, Make and Sign consultant agreement
Edit your consultant agreement form online
Type text, complete fillable fields, insert images, highlight or blackout data for discretion, add comments, and more.
Add your legally-binding signature
Draw or type your signature, upload a signature image, or capture it with your digital camera.
Share your form instantly
Email, fax, or share your consultant agreement form via URL. You can also download, print, or export forms to your preferred cloud storage service.
Editing consultant agreement online
To use our professional PDF editor, follow these steps:
1
Create an account. Begin by choosing Start Free Trial and, if you are a new user, establish a profile.
2
Simply add a document. Select Add New from your Dashboard and import a file into the system by uploading it from your device or importing it via the cloud, online, or internal mail. Then click Begin editing.
3
Edit consultant agreement. Add and change text, add new objects, move pages, add watermarks and page numbers, and more. Then click Done when you're done editing and go to the Documents tab to merge or split the file. If you want to lock or unlock the file, click the lock or unlock button.
4
Get your file. Select your file from the documents list and pick your export method. You may save it as a PDF, email it, or upload it to the cloud.
Uncompromising security for your PDF editing and eSignature needs
Your private information is safe with pdfFiller. We employ end-to-end encryption, secure cloud storage, and advanced access control to protect your documents and maintain regulatory compliance.
How to fill out consultant agreement
How to fill out consultant agreement
01
Title the document as 'Consultant Agreement'.
02
Begin with the parties' names and addresses, specifying who is the consultant and who is the client.
03
Define the scope of work detailing the services to be provided by the consultant.
04
Specify the duration of the agreement including start and end dates.
05
Outline the payment terms, including rates, payment schedule, and any expenses that may be reimbursed.
06
Include confidentiality clauses to protect proprietary information.
07
Define ownership of work produced during the consulting period.
08
Specify the conditions for termination of the agreement by either party.
09
Include a clause on dispute resolution methods.
10
Have both parties sign and date the agreement.
Who needs consultant agreement?
01
Businesses looking to hire outside expertise.
02
Freelancers offering specialized services.
03
Organizations that require temporary project-based assistance.
04
Startups needing guidance from experienced professionals.
05
Any individual or entity that seeks formalized consulting services.
Fill
form
: Try Risk Free
For pdfFiller’s FAQs
Below is a list of the most common customer questions. If you can’t find an answer to your question, please don’t hesitate to reach out to us.
How can I manage my consultant agreement directly from Gmail?
It's easy to use pdfFiller's Gmail add-on to make and edit your consultant agreement and any other documents you get right in your email. You can also eSign them. Take a look at the Google Workspace Marketplace and get pdfFiller for Gmail. Get rid of the time-consuming steps and easily manage your documents and eSignatures with the help of an app.
How can I send consultant agreement for eSignature?
When you're ready to share your consultant agreement, you can send it to other people and get the eSigned document back just as quickly. Share your PDF by email, fax, text message, or USPS mail. You can also notarize your PDF on the web. You don't have to leave your account to do this.
How do I make edits in consultant agreement without leaving Chrome?
Get and add pdfFiller Google Chrome Extension to your browser to edit, fill out and eSign your consultant agreement, which you can open in the editor directly from a Google search page in just one click. Execute your fillable documents from any internet-connected device without leaving Chrome.
What is consultant agreement?
A consultant agreement is a formal contract between a consultant and a client that outlines the terms and conditions of the consultant's services. It typically details the scope of work, payment terms, duration, and other essential provisions.
Who is required to file consultant agreement?
Typically, businesses or individuals hiring a consultant are required to file a consultant agreement to ensure clarity on the services provided, payment details, and legal protections. Both parties may need to file depending on jurisdiction and tax regulations.
How to fill out consultant agreement?
To fill out a consultant agreement, both parties should review the template, complete sections detailing the consultant's name, scope of work, compensation, duration of the agreement, confidentiality provisions, and signature areas. Ensure all relevant information is accurate and comprehensive.
What is the purpose of consultant agreement?
The purpose of a consultant agreement is to establish a clear understanding between the consultant and the client regarding the expectations, responsibilities, and legal obligations of both parties. It serves to protect both parties in case of disputes.
What information must be reported on consultant agreement?
A consultant agreement must report information such as the names and contact details of both parties, description of the services to be rendered, payment terms, duration of the contract, confidentiality clauses, and termination conditions.
Fill out your consultant agreement online with pdfFiller!
pdfFiller is an end-to-end solution for managing, creating, and editing documents and forms in the cloud. Save time and hassle by preparing your tax forms online.
Consultant Agreement is not the form you're looking for?Search for another form here.
Relevant keywords
If you believe that this page should be taken down, please follow our DMCA take down process
here
.
This form may include fields for payment information. Data entered in these fields is not covered by PCI DSS compliance.