Form preview

Get the free Public Notice and Local Law Document

Get Form
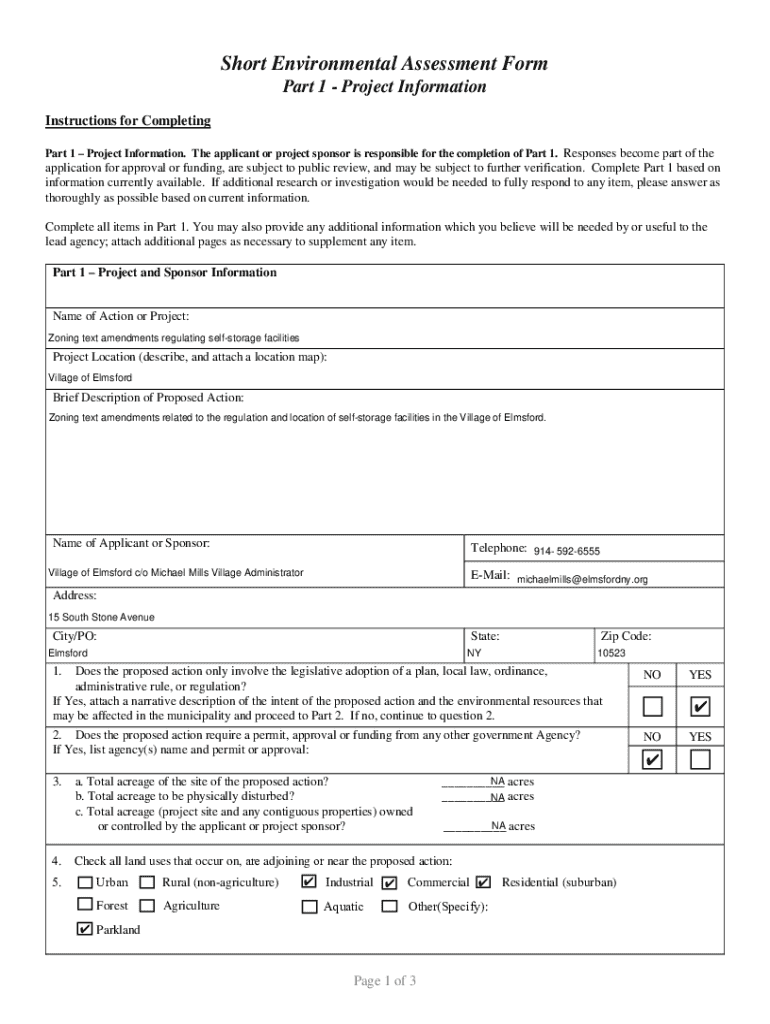
This document provides a public notice regarding a hearing for zoning text amendments related to self-storage facilities in the Village of Elmsford, along with a draft of the local law that includes
We are not affiliated with any brand or entity on this form

Get, Create, Make and Sign public notice and local

Edit
Edit your public notice and local form online
Type text, complete fillable fields, insert images, highlight or blackout data for discretion, add comments, and more.
Add
Add your legally-binding signature
Draw or type your signature, upload a signature image, or capture it with your digital camera.
Share
Share your form instantly
Email, fax, or share your public notice and local form via URL. You can also download, print, or export forms to your preferred cloud storage service.

How to edit public notice and local online

9.5
Ease of Setup
pdfFiller User Ratings on G2
9.0
Ease of Use
pdfFiller User Ratings on G2
To use the professional PDF editor, follow these steps:
1
Create an account. Begin by choosing Start Free Trial and, if you are a new user, establish a profile.
2
Prepare a file. Use the Add New button to start a new project. Then, using your device, upload your file to the system by importing it from internal mail, the cloud, or adding its URL.
3
Edit public notice and local. Rearrange and rotate pages, add new and changed texts, add new objects, and use other useful tools. When you're done, click Done. You can use the Documents tab to merge, split, lock, or unlock your files.
4
Get your file. Select your file from the documents list and pick your export method. You may save it as a PDF, email it, or upload it to the cloud.
pdfFiller makes working with documents easier than you could ever imagine. Register for an account and see for yourself!

Uncompromising security for your PDF editing and eSignature needs

Your private information is safe with pdfFiller. We employ end-to-end encryption, secure cloud storage, and advanced access control to protect your documents and maintain regulatory compliance.
GDPR
AICPA SOC 2
PCI
HIPAA
CCPA
FDA

How to fill out public notice and local

Illustration

How to fill out public notice and local

01
Start by obtaining the required public notice form from your local government office or their website.
02
Clearly state the purpose of the notice in the designated section.
03
Fill in the required details such as the date, time, and location of the event or action being noticed.
04
Include any necessary legal descriptions or references as per local regulations.
05
Provide contact information for any inquiries related to the notice.
06
Review the form for accuracy and completeness before submission.
07
Submit the completed notice to the appropriate local authorities, following any specified guidelines.

Who needs public notice and local?

01
Local governments announcing public meetings or hearings.
02
Businesses seeking to inform the public about changes or developments.
03
Individuals notifying the community about events or initiatives.
04
Real estate developers and property owners needing to comply with zoning laws.
05
Legal entities that must communicate certain actions to the public, such as foreclosure notices.

Understanding Public Notice and Local Form: A Comprehensive Guide

Understanding public notices

Public notice serves as a vital tool for communication between government entities, businesses, and the community at large. Essentially, a public notice is an announcement intended to inform the public about events or changes that may affect their rights or interests. Legally, public notices hold significant weight; they ensure stakeholders—ranging from government agencies to private citizens—are made aware of important matters.

Legal implications and significance: Public notices serve as a legal requirement in many jurisdictions, providing a formal avenue for transparency.
Types of public notices: These can range from government mandates, zoning changes, to notices issued by private individuals or companies.

Types of public notices

Different entities issue public notices for various reasons. Government agencies are one of the primary issuers, as they often hold public hearings or execute zoning changes that demand community input. Regulatory compliance notices also fall under this category, providing citizens with essential information on local laws and policies.

Conversely, private individuals or businesses may use public notices for advertising or announcing community events. Such notices not only serve to inform but also encourage public participation and engagement within the community.

Key components of a public notice

When drafting a public notice, certain essential elements need to be included to ensure clarity and compliance. The title should clearly denote what the notice is about, while the purpose should be explicitly stated to avoid any ambiguity.

Title and purpose: A descriptive title and a concise purpose statement provide context.
Relevant dates and times: Information regarding deadlines or event dates is crucial.
Location information: Clearly state where the event will take place or where further information can be obtained.

Additionally, the formatting should adhere to local regulations, ensuring that the notice is easy to read and understand. Clear language is imperative to eliminate any chances of misunderstanding.

Procedures for creating and publishing public notices

Creating an effective public notice follows a distinct procedure that begins with identifying its purpose. Understanding the intended audience and objectives helps to shape the content appropriately.

Choose the right publication: Depending on the target audience, you may opt for local newspapers or state-level publications.
Draft the notice: Accessible language and a clear structure will enhance understanding.
Review and Edit: It's essential to conduct legal reviews, especially when sensitive information is involved.
Submit the notice: Follow the outlined submission process for the chosen publication.
Payment and confirmation: Know the fee structure and retain proof of submissions.
Documenting the publication: It's crucial to keep copies of all published notices for legal purposes.

Managing public notices with pdfFiller

Managing public notices efficiently can significantly streamline the communication process. pdfFiller empowers users by providing tools to create and manage these important documents seamlessly. Its cloud-based platform allows for the easy editing and signing of PDFs.

Editing and eSigning capabilities: Users can swiftly make adjustments and secure signatures electronically.
Collaborative features: Real-time collaboration streamlines feedback and revision processes.
Templates for notices: Utilizing customizable templates offers consistency across communications.

By adopting pdfFiller’s resources, individuals and teams can boost their efficiency in managing public notices.

Ensuring compliance and best practices

Understanding the regulatory requirements concerning public notices is imperative to avoid legal ramifications. Different jurisdictions impose varying local legislation, meaning one must remain vigilant about the specific rules that apply.

Stay informed: Regularly check for updates in local requirements to stay compliant.
Record keeping: Documenting all submissions, edits, and communications offers a safeguard for future reference.

Implementing these best practices not only ensures compliance but also reinforces trust within the community.

Public notice resource center

For anyone looking to gain more insights into public notices, engaging with local agencies can yield valuable information. Many areas have their own public notice guidelines that can help streamline the process.

Access to local agencies: These entities often provide comprehensive guidelines and assistance.
FAQs and support: Websites may have sections dedicated to frequently asked questions, providing clarity on common concerns.
Expert contact information: Having a point of contact for expert advice can further enhance your understanding and execution of public notices.
Fill form : Try Risk Free
Users Most Likely To Recommend - Summer 2025
Grid Leader in Small-Business - Summer 2025
High Performer - Summer 2025
Regional Leader - Summer 2025
Easiest To Do Business With - Summer 2025
Best Meets Requirements- Summer 2025
Rate the form
4.5
Satisfied
23 Votes

For pdfFiller’s FAQs

Below is a list of the most common customer questions. If you can’t find an answer to your question, please don’t hesitate to reach out to us.

pdfFiller and Google Docs can be used together to make your documents easier to work with and to make fillable forms right in your Google Drive. The integration will let you make, change, and sign documents, like public notice and local, without leaving Google Drive. Add pdfFiller's features to Google Drive, and you'll be able to do more with your paperwork on any internet-connected device.
The premium subscription for pdfFiller provides you with access to an extensive library of fillable forms (over 25M fillable templates) that you can download, fill out, print, and sign. You won’t have any trouble finding state-specific public notice and local and other forms in the library. Find the template you need and customize it using advanced editing functionalities.
Use the pdfFiller mobile app to create, edit, and share public notice and local from your iOS device. Install it from the Apple Store in seconds. You can benefit from a free trial and choose a subscription that suits your needs.
Public notice refers to announcements or disclosures made to notify the public of certain legal proceedings or government actions, often mandated by law. Local notices pertain specifically to announcements that affect the local community.
Typically, government agencies, businesses, and organizations that are subject to regulatory requirements or legal obligations are required to file public notices.
Filling out a public notice involves providing accurate details about the notice's subject, including relevant dates, descriptions, and contacts. Specific forms or formats may vary by jurisdiction.
The purpose of public notice is to inform the community about important events, regulations, or actions that may affect them, ensuring transparency and allowing for public input.
Public notices typically must report essential information such as the nature of the notice, applicable dates, involved parties, and any instructions for public participation or response.
Fill out your public notice and local online with pdfFiller!

pdfFiller is an end-to-end solution for managing, creating, and editing documents and forms in the cloud. Save time and hassle by preparing your tax forms online.

Get started now
Form preview
If you believe that this page should be taken down, please follow our DMCA take down process here .
This form may include fields for payment information. Data entered in these fields is not covered by PCI DSS compliance.