
Get the free Notice of Completion & Environmental Document Transmittal
Get, Create, Make and Sign notice of completion environmental



Editing notice of completion environmental online
Uncompromising security for your PDF editing and eSignature needs
How to fill out notice of completion environmental

How to fill out notice of completion environmental
Who needs notice of completion environmental?
Understanding the Notice of Completion Environmental Form
Understanding the Notice of Completion Environmental Form
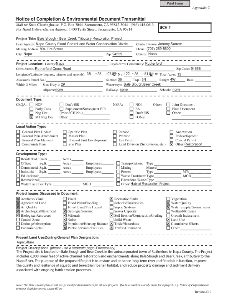
The Notice of Completion Environmental Form is a critical document in the field of environmental compliance. Its primary purpose is to notify relevant authorities that a construction or development project has been completed, and it ensures that all environmental regulations have been adhered to. This form is particularly vital for projects that have undergone environmental assessment processes, as it verifies that they have met the stipulated guidelines aimed at protecting natural resources.
The importance of the Notice of Completion Environmental Form extends beyond mere completion notification. It serves as a safeguard for the environment, ensuring that any potential impacts from a project have been assessed and managed appropriately. By facilitating transparency and accountability, this form also supports the ongoing dialogue between project developers and regulatory bodies, thereby promoting sustainable development practices.
Key components of the environmental form
To complete the Notice of Completion Environmental Form effectively, one must understand its key components. First and foremost, the form requires detailed information about the project, including its location, nature, and duration. This ensures that all stakeholders are well-informed about the specific undertaking and its scope.
Additionally, the form mandates the reporting of any environmental impacts observed during the project's lifecycle. This will cover areas such as changes to local ecosystems, air quality, water resources, and other critical environmental factors. Certification requirements often involve formal attestations by responsible parties, highlighting their commitment to compliance and accountability.
Finally, signatures and approvals from relevant environmental agencies are imperative. Engaging with environmental organizations and securing their endorsements strengthens the validity of the form and demonstrates adherence to local environmental laws.
Step-by-step guide to filling out the notice of completion environmental form
Filling out the Notice of Completion Environmental Form can seem daunting, but by approaching it in a systematic manner, you can ensure an accurate submission. Begin by gathering all necessary documents that pertain to the project, as this will streamline the process significantly. Common documents include project plans, previous environmental assessments, and correspondence with regulatory agencies.
Once you have your documents in hand, you can begin filling out the form. The first section typically requires a detailed project description, including the size and scope of the project. Following this, you should outline any environmental review conditions that were mandated before, during, and after the project implementation.
Being aware of common mistakes can save time and frustration. Incomplete sections, unclear descriptions, and missed signatures are frequent pitfalls. Therefore, it’s crucial to review the entire form before submission for any inconsistencies, ensuring that no vital information is left out.
Editing and revising the form
Once the form is filled out, you may find that editing is necessary for clarity or correcting errors. pdfFiller offers robust tools for modifying the Notice of Completion Environmental Form, allowing you to make changes effortlessly. Whether you need to add text, revise project details, or adjust environmental impact assessments, the editing features of pdfFiller cater to all these needs.
Moreover, collaboration features enable team input, which is particularly beneficial for large projects involving multiple stakeholders. This functionality ensures everyone is aligned and agrees on the content of the form before finalization, making the submission process smoother.
Signing the notice of completion
Once the Notice of Completion Environmental Form is filled out and revised, the next step is signing. pdfFiller simplifies the signing process through its electronic signature options. Users can easily add their signatures within the platform, facilitating a swift and efficient workflow.
It's worth noting that electronic signatures hold significant legal standing, often recognized across various jurisdictions. This means you can sign, send, and submit your documents all online, reducing the time and hindrance of traditional paperforms.
Submitting the form
With the Notice of Completion Environmental Form signed, it’s time for submission. Depending on the regulations in your area, you might be able to submit the form online through designated platforms. Check with local environmental agencies for their specific procedures to ensure compliance.
Alternatively, if a paper submission is mandated, the steps are fairly straightforward: print the form, ensure all signatures are included, and send it to the appropriate regulatory office. If you’re mailing it, consider utilizing tracking services to verify that your submission reaches its destination.
Tracking the status of your submission can typically be done through the agency’s online portal or via direct communication. Staying proactive in confirming receipt helps avoid any delays in project finalization.
Post-submission: what comes next?
After submitting the Notice of Completion Environmental Form, you should anticipate specific follow-up actions. Depending on the complexity of your project and the specific regulatory environment, expect feedback from the relevant agencies. This could include requests for additional information or clarifications.
Remaining compliant with obligations is imperative after you receive acknowledgment of your submission. Ensure you maintain records of all correspondence and any resulting changes requested by the agency. Being diligent in these matters promotes transparency and further cements your reputation as a responsible project developer.
Resources for further assistance
For those who require further assistance with the Notice of Completion Environmental Form, various regulatory bodies can provide support. Direct links to state and local environmental agencies are invaluable for additional inquiries and clarifications. These agencies often have resources dedicated to helping individuals and teams navigate the paperwork involved in environmental compliance.
In addition to governmental support, pdfFiller’s customer support features are another excellent resource. The platform not only enhances your ability to manage your files but also offers troubleshooting assistance and advice for document-related obstacles you may encounter.
Frequently asked questions (FAQs)
As you navigate the requirements of the Notice of Completion Environmental Form, you may come across questions. Some common inquiries include whether electronic signatures are acceptable, how to handle missing information, and the timelines for approvals. Addressing these queries promptly can clarify your understanding and enhance your submission experience.
Case studies and testimonials
Users have shared their experiences with completing the Notice of Completion Environmental Form using pdfFiller's tools, highlighting successful submissions and efficient workflows. For instance, one construction company reported a 30% reduction in submission processing time after transitioning to electronic forms through pdfFiller, underscoring how effective document management tools can lead to smoother regulatory compliance.
These success stories serve as a testament to the value of employing efficient digital solutions. They encourage others embarking on similar projects to leverage technology for optimal results in environmental compliance.
For pdfFiller’s FAQs
Below is a list of the most common customer questions. If you can’t find an answer to your question, please don’t hesitate to reach out to us.
How can I send notice of completion environmental for eSignature?
How do I edit notice of completion environmental online?
Can I create an electronic signature for the notice of completion environmental in Chrome?
What is notice of completion environmental?
Who is required to file notice of completion environmental?
How to fill out notice of completion environmental?
What is the purpose of notice of completion environmental?
What information must be reported on notice of completion environmental?
pdfFiller is an end-to-end solution for managing, creating, and editing documents and forms in the cloud. Save time and hassle by preparing your tax forms online.
