Get the free Building Permit Application
Show details
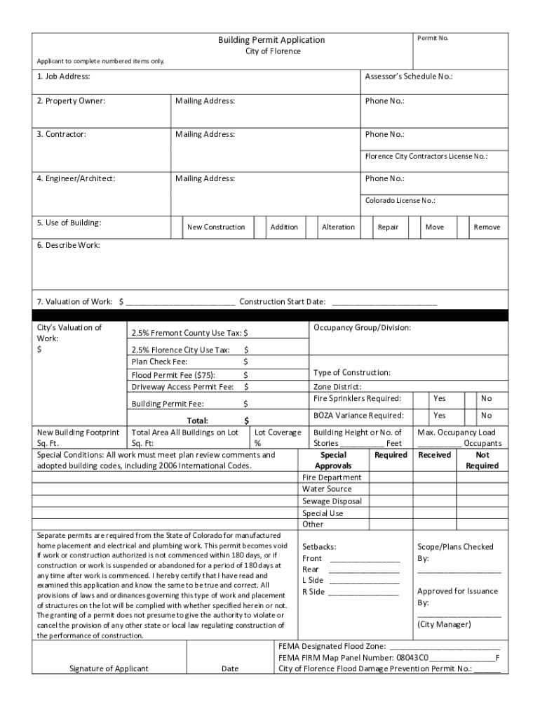
This document is an application for obtaining a building permit within the City of Florence, requiring details about the project, applicant, contractor, and compliance with building regulations.
We are not affiliated with any brand or entity on this form
Get, Create, Make and Sign building permit application
Edit your building permit application form online
Type text, complete fillable fields, insert images, highlight or blackout data for discretion, add comments, and more.
Add your legally-binding signature
Draw or type your signature, upload a signature image, or capture it with your digital camera.
Share your form instantly
Email, fax, or share your building permit application form via URL. You can also download, print, or export forms to your preferred cloud storage service.
Editing building permit application online
To use the professional PDF editor, follow these steps:
1
Create an account. Begin by choosing Start Free Trial and, if you are a new user, establish a profile.
2
Simply add a document. Select Add New from your Dashboard and import a file into the system by uploading it from your device or importing it via the cloud, online, or internal mail. Then click Begin editing.
3
Edit building permit application. Replace text, adding objects, rearranging pages, and more. Then select the Documents tab to combine, divide, lock or unlock the file.
4
Get your file. Select the name of your file in the docs list and choose your preferred exporting method. You can download it as a PDF, save it in another format, send it by email, or transfer it to the cloud.
The use of pdfFiller makes dealing with documents straightforward. Try it now!
Uncompromising security for your PDF editing and eSignature needs
Your private information is safe with pdfFiller. We employ end-to-end encryption, secure cloud storage, and advanced access control to protect your documents and maintain regulatory compliance.
How to fill out building permit application
How to fill out building permit application
01
Obtain the building permit application form from your local government's website or office.
02
Provide property information, including the address and parcel number.
03
Describe the project in detail, including the type of construction and purpose.
04
Include site plans and drawings that comply with local zoning laws.
05
Specify the estimated cost of the project.
06
Provide information about the contractor or builder, if applicable.
07
Sign and date the application.
08
Submit the completed application to the appropriate local authority, either in person or online.
09
Pay any necessary application fees as required.
Who needs building permit application?
01
Anyone planning to construct, alter, repair, or demolish a building or structure.
02
Homeowners undertaking significant renovations.
03
Contractors working on residential or commercial projects.
04
Developers planning new constructions.
05
Businesses attempting to expand or modify existing structures.
Fill
form
: Try Risk Free
For pdfFiller’s FAQs
Below is a list of the most common customer questions. If you can’t find an answer to your question, please don’t hesitate to reach out to us.
How can I manage my building permit application directly from Gmail?
It's easy to use pdfFiller's Gmail add-on to make and edit your building permit application and any other documents you get right in your email. You can also eSign them. Take a look at the Google Workspace Marketplace and get pdfFiller for Gmail. Get rid of the time-consuming steps and easily manage your documents and eSignatures with the help of an app.
Where do I find building permit application?
The pdfFiller premium subscription gives you access to a large library of fillable forms (over 25 million fillable templates) that you can download, fill out, print, and sign. In the library, you'll have no problem discovering state-specific building permit application and other forms. Find the template you want and tweak it with powerful editing tools.
How can I fill out building permit application on an iOS device?
In order to fill out documents on your iOS device, install the pdfFiller app. Create an account or log in to an existing one if you have a subscription to the service. Once the registration process is complete, upload your building permit application. You now can take advantage of pdfFiller's advanced functionalities: adding fillable fields and eSigning documents, and accessing them from any device, wherever you are.
What is building permit application?
A building permit application is a legal document submitted to local authorities to seek permission to construct, renovate, or alter a building or structure.
Who is required to file building permit application?
Typically, property owners, contractors, or developers are required to file a building permit application before starting any construction or renovation projects.
How to fill out building permit application?
To fill out a building permit application, one must provide detailed information about the proposed project, including plans, specifications, property details, and any necessary supporting documentation.
What is the purpose of building permit application?
The purpose of a building permit application is to ensure that construction complies with local building codes, zoning regulations, and safety standards.
What information must be reported on building permit application?
Information that must be reported typically includes the property address, project description, contractor details, planned start and completion dates, and site plans, along with any necessary environmental impact assessments.
Fill out your building permit application online with pdfFiller!
pdfFiller is an end-to-end solution for managing, creating, and editing documents and forms in the cloud. Save time and hassle by preparing your tax forms online.
Building Permit Application is not the form you're looking for?Search for another form here.
Relevant keywords
If you believe that this page should be taken down, please follow our DMCA take down process
here
.
This form may include fields for payment information. Data entered in these fields is not covered by PCI DSS compliance.