Form preview

Get the free Notice of Extension of Award Posting

Get Form
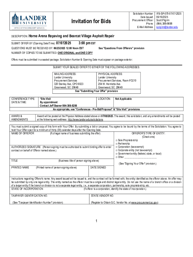
Invitation for BidsSolicitation Number Date Issued Procurement Officer Phone EMail AddressIFBSP57007072025 06/19/2025 Scott Pilgrim (864) 3888698 spilgrim@lander.eduDESCRIPTION: Horne Arena Repaving
We are not affiliated with any brand or entity on this form

Get, Create, Make and Sign notice of extension of

Edit
Edit your notice of extension of form online
Type text, complete fillable fields, insert images, highlight or blackout data for discretion, add comments, and more.
Add
Add your legally-binding signature
Draw or type your signature, upload a signature image, or capture it with your digital camera.
Share
Share your form instantly
Email, fax, or share your notice of extension of form via URL. You can also download, print, or export forms to your preferred cloud storage service.

How to edit notice of extension of online

9.5
Ease of Setup
pdfFiller User Ratings on G2
9.0
Ease of Use
pdfFiller User Ratings on G2
Follow the guidelines below to take advantage of the professional PDF editor:
1
Set up an account. If you are a new user, click Start Free Trial and establish a profile.
2
Prepare a file. Use the Add New button to start a new project. Then, using your device, upload your file to the system by importing it from internal mail, the cloud, or adding its URL.
3
Edit notice of extension of. Text may be added and replaced, new objects can be included, pages can be rearranged, watermarks and page numbers can be added, and so on. When you're done editing, click Done and then go to the Documents tab to combine, divide, lock, or unlock the file.
4
Save your file. Select it from your records list. Then, click the right toolbar and select one of the various exporting options: save in numerous formats, download as PDF, email, or cloud.
It's easier to work with documents with pdfFiller than you can have believed. You may try it out for yourself by signing up for an account.

Uncompromising security for your PDF editing and eSignature needs

Your private information is safe with pdfFiller. We employ end-to-end encryption, secure cloud storage, and advanced access control to protect your documents and maintain regulatory compliance.
GDPR
AICPA SOC 2
PCI
HIPAA
CCPA
FDA

How to fill out notice of extension of

Illustration

How to fill out notice of extension of

01
Obtain the appropriate form for the notice of extension from the relevant authority or website.
02
Fill out the date of the original notice and the deadline for the extension.
03
Clearly state the reason for requesting the extension.
04
Provide necessary details such as your name, contact information, and any relevant case or reference number.
05
Sign and date the form.
06
Submit the completed notice of extension to the designated office, either in person or via mail, as per the guidelines.

Who needs notice of extension of?

01
Individuals or entities who are unable to meet a deadline set by a legal or administrative process.
02
Clients working with legal representatives requiring additional time for submissions.
03
Businesses needing extra time for compliance with regulations.

Notice of extension of form: A comprehensive how-to guide

Understanding the notice of extension of form

A notice of extension of form serves as a critical tool in document management, allowing individuals and teams to formally request additional time to complete required submissions. This mechanism is particularly relevant across various contexts—be it professional, personal, or legal—as it ensures that deadlines are adhered to while maintaining compliance with required standards.

Timely extensions can prevent the stress associated with rushing to meet deadlines and can improve the quality of submissions. By understanding the importance of these notices, users can streamline their workflows and avoid last-minute complications that might arise from incomplete forms.

Formalizes the request for more time.
Helps in managing expectations regarding deadlines.
Maintains legal compliance in regulatory processes.

Why you might need a notice of extension

There are numerous circumstances in which a notice of extension becomes necessary. Common scenarios include when impending deadlines for submissions looms but unforeseen circumstances arise that hinder timely completion. These can vary from personal emergencies to unforeseen complexities in the required documentation, such as the filing fee information or updates to the form itself.

Clarifications may also necessitate an extension; sometimes inquiries arise after the initial submission that prompt further specifications or additional information. Utilizing a notice of extension in these contexts provides a structured approach to managing document timelines effectively, ensuring that all parties involved are on the same page.

Adjusting deadlines for important submissions.
Seeking further clarifications on existing forms.
Addressing changes in personal or legal circumstances.

Steps to prepare a notice of extension

Compiling a notice of extension starts with a thorough review of the original form. Understanding its requirements and timeline is vital. You'll want to pinpoint the specific areas that demand an extension. This makes your request more precise and justifiable.

Next, assess whether an extension is genuinely needed. Consider factors such as existing legal obligations, organizational deadlines, and personal commitments that may influence the required timeframe. Once you’ve established a necessity, start drafting your notice.

Review the original form thoroughly.
Determine the specific need for an extension.
Draft the notice with all necessary details.
Submit through proper channels.

Utilizing interactive tools from pdfFiller

pdfFiller offers web-based tools to manage notices seamlessly. Utilizing interactive templates can significantly streamline the process of creating a notice of extension. This step-by-step guide will help you in choosing the right template suited to your needs, whether adjusting a form related to adjustment of status for certain nonpermanent residents or other requests.

With pdfFiller’s drag-and-drop features for editing documents, you can easily modify details. Plus, signing your document electronically is straightforward with eSign functionalities, ensuring that your notice is ready for submission efficiently.

Select the appropriate interactive template.
Use drag-and-drop features to edit your document.
eSign directly within pdfFiller before submitting.

Managing responses to your notice of extension

Once submitted, tracking the status of your extension request is crucial. Staying informed allows you to prepare for possible next steps, especially if the extension is denied. In such situations, having a clear understanding of the appeal processes will empower you to navigate the circumstances effectively.

Follow-ups and proactive communication with the reviewing body can also enhance your chances of a successful extension. Keeping records of communications and submissions maintains clarity in your dealings and provides a safety net in case conflicts arise.

Track the status of your extension request regularly.
Understand the appeal processes if denied.
Communicate effectively with the reviewing body.

Best practices for completing form extensions

Maintaining accurate records of all submissions and communications can save you from potential issues later on. Familiarizing yourself with the compliance requirements concerning organizational and legal standards is equally important. Clear, detailed justifications for any extension requests you make should always accompany submissions to enhance accountability.

Using templates from pdfFiller can help in standardizing outputs, reducing the likelihood of mistakes. Proper formatting, mention of original deadlines, and logical structuring in your communications will also bolster the professionalism exhibited in your requests.

Keep accurate records and submissions.
Understand compliance standards for the forms.
Provide detailed justifications for your requests.

Frequently asked questions (FAQs) regarding notices of extension

Users often have queries regarding the format, appropriate submission channels, and how to effectively follow up on their extension requests. Common issues might include confusion over what constitutes a valid reason for an extension or knowing the right steps if facing potential rejections.

Resources like pdfFiller also provide assistance with various document-related questions, ensuring users have access to support when navigating the intricacies of document management.

What format should the notice be in?
How do I submit my notice for best practices?
What to do if my extension is denied?

Case studies: Successfully navigating notice of extensions

Real-life examples illustrate how individuals and organizations successfully navigated the complexities associated with notice of extensions. Whether dealing with the cancellation of removal for certain permanent residents or modifications in their documentation, these case studies highlight reactions to extensions and how to manage corresponding challenges.

Critical lessons from these instances reveal the importance of clear communication, precise documentation, and utilizing the correct tools to facilitate the process. By reflecting on others' experiences, readers can glean valuable insights for their situations.

A lawyer’s experience in handling extended deadline submissions.
A student navigating exam extensions due to emergencies.
An organization’s approach to seeking regulatory compliance timelines.

Integrating your notice of extension with document management systems

Working with tools like pdfFiller allows users to sync their notices with broader document management features, making collaboration easier. This integration gives you access to cloud-based solutions that foster efficient handling of form submissions and extensions while maintaining organization.

Moreover, features that enable accessibility across different devices empower teams to work in real-time, streamlining workflows significantly. Relying on robust document management systems ensures a well-organized approach to task completion.

Sync extension notices directly with your document management system.
Use cloud solutions for effortless collaboration.
Maintain organization for efficient workflow management.

Future considerations for document extensions

As regulations evolve regarding notices of extension, anticipating changes can help users stay prepared and compliant. Tracking shifts in procedural requirements ensures timely submissions and reduces the risk of penalties when forms or extensions are concerned.

Leveraging technology further enhances document handling, with online platforms increasingly becoming essential for efficient management. By utilizing interactive tools from pdfFiller and its offerings, users can simplify processes while staying updated with best practices for form submissions and their extensions.

Be aware of potential regulatory changes.
Utilize technology for improved document handling.
Stay informed on best practices with online platforms.
Fill form : Try Risk Free
Users Most Likely To Recommend - Summer 2025
Grid Leader in Small-Business - Summer 2025
High Performer - Summer 2025
Regional Leader - Summer 2025
Easiest To Do Business With - Summer 2025
Best Meets Requirements- Summer 2025
Rate the form
4.4
Satisfied
23 Votes

For pdfFiller’s FAQs

Below is a list of the most common customer questions. If you can’t find an answer to your question, please don’t hesitate to reach out to us.

Download and install the pdfFiller Google Chrome Extension to your browser to edit, fill out, and eSign your notice of extension of, which you can open in the editor with a single click from a Google search page. Fillable documents may be executed from any internet-connected device without leaving Chrome.
Yes. You can use pdfFiller to sign documents and use all of the features of the PDF editor in one place if you add this solution to Chrome. In order to use the extension, you can draw or write an electronic signature. You can also upload a picture of your handwritten signature. There is no need to worry about how long it takes to sign your notice of extension of.
Use the pdfFiller mobile app to create, edit, and share notice of extension of from your iOS device. Install it from the Apple Store in seconds. You can benefit from a free trial and choose a subscription that suits your needs.
A notice of extension is a formal document that requests additional time to file certain documents or fulfill specific obligations, typically related to taxes or legal claims.
Individuals or entities who need more time to file their tax returns or other required documents may be required to file a notice of extension, usually with the relevant tax authority or legal body.
To fill out a notice of extension, one must provide the relevant personal or business information, the reasons for seeking an extension, and any required dates or deadlines. It's essential to follow the specific instructions provided by the governing body.
The purpose of a notice of extension is to formally request more time to complete required filings or obligations, allowing the filer to avoid penalties for late submissions.
The notice of extension typically requires the taxpayer’s identification information, the specific type of filing extension is requested, expected completion dates, and justification for the extension.
Fill out your notice of extension of online with pdfFiller!

pdfFiller is an end-to-end solution for managing, creating, and editing documents and forms in the cloud. Save time and hassle by preparing your tax forms online.

Get started now
Form preview
If you believe that this page should be taken down, please follow our DMCA take down process here .
This form may include fields for payment information. Data entered in these fields is not covered by PCI DSS compliance.