Get the free Including suburb or Lot 23 Ligar Street, Derrinallum VIC 3325
Show details
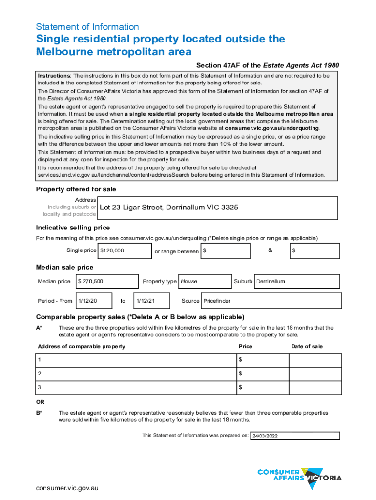
Statement of InformationSingle residential property located outside the Melbourne metropolitan area Section 47AF of the Estate Agents Act 1980 Instructions: The instructions in this box do not form
We are not affiliated with any brand or entity on this form
Get, Create, Make and Sign including suburb or lot
Edit your including suburb or lot form online
Type text, complete fillable fields, insert images, highlight or blackout data for discretion, add comments, and more.
Add your legally-binding signature
Draw or type your signature, upload a signature image, or capture it with your digital camera.
Share your form instantly
Email, fax, or share your including suburb or lot form via URL. You can also download, print, or export forms to your preferred cloud storage service.
Editing including suburb or lot online
Use the instructions below to start using our professional PDF editor:
1
Set up an account. If you are a new user, click Start Free Trial and establish a profile.
2
Prepare a file. Use the Add New button. Then upload your file to the system from your device, importing it from internal mail, the cloud, or by adding its URL.
3
Edit including suburb or lot. Rearrange and rotate pages, add and edit text, and use additional tools. To save changes and return to your Dashboard, click Done. The Documents tab allows you to merge, divide, lock, or unlock files.
4
Save your file. Select it in the list of your records. Then, move the cursor to the right toolbar and choose one of the available exporting methods: save it in multiple formats, download it as a PDF, send it by email, or store it in the cloud.
It's easier to work with documents with pdfFiller than you can have ever thought. You may try it out for yourself by signing up for an account.
Uncompromising security for your PDF editing and eSignature needs
Your private information is safe with pdfFiller. We employ end-to-end encryption, secure cloud storage, and advanced access control to protect your documents and maintain regulatory compliance.
How to fill out including suburb or lot
How to fill out including suburb or lot
01
Step 1: Gather all necessary documents and information related to the form.
02
Step 2: Start filling out the form with your personal details, ensuring that you include your suburb or lot clearly in the designated fields.
03
Step 3: Carefully follow the instructions provided for each section, making sure to double-check each entry.
04
Step 4: Include additional information regarding your residence, such as nearby landmarks or postal codes to enhance clarity.
05
Step 5: Review the completed form for accuracy before submission.
Who needs including suburb or lot?
01
Residents who are registering for local services or benefits in their suburb or lot.
02
Property owners who are updating their information in public records.
03
Individuals applying for zoning permits or developments in their area.
Fill
form
: Try Risk Free
For pdfFiller’s FAQs
Below is a list of the most common customer questions. If you can’t find an answer to your question, please don’t hesitate to reach out to us.
How do I make changes in including suburb or lot?
pdfFiller not only allows you to edit the content of your files but fully rearrange them by changing the number and sequence of pages. Upload your including suburb or lot to the editor and make any required adjustments in a couple of clicks. The editor enables you to blackout, type, and erase text in PDFs, add images, sticky notes and text boxes, and much more.
Can I edit including suburb or lot on an iOS device?
Create, modify, and share including suburb or lot using the pdfFiller iOS app. Easy to install from the Apple Store. You may sign up for a free trial and then purchase a membership.
How do I fill out including suburb or lot on an Android device?
Use the pdfFiller mobile app and complete your including suburb or lot and other documents on your Android device. The app provides you with all essential document management features, such as editing content, eSigning, annotating, sharing files, etc. You will have access to your documents at any time, as long as there is an internet connection.
What is including suburb or lot?
Including suburb or lot refers to the specific designation of geographical areas or parcels of land that are used for property identification and classification.
Who is required to file including suburb or lot?
Individuals or entities involved in real estate transactions, property owners, or developers are typically required to file including suburb or lot information.
How to fill out including suburb or lot?
To fill out including suburb or lot, one must accurately input the designated suburb name and lot number or description as per official property records in the required forms.
What is the purpose of including suburb or lot?
The purpose of including suburb or lot is to ensure proper identification and categorization of properties for legal, tax, and planning purposes.
What information must be reported on including suburb or lot?
The information that must be reported typically includes the suburb name, lot number or description, property boundaries, and any relevant land use details.
Fill out your including suburb or lot online with pdfFiller!
pdfFiller is an end-to-end solution for managing, creating, and editing documents and forms in the cloud. Save time and hassle by preparing your tax forms online.
Including Suburb Or Lot is not the form you're looking for?Search for another form here.
Relevant keywords
Related Forms
If you believe that this page should be taken down, please follow our DMCA take down process
here
.
This form may include fields for payment information. Data entered in these fields is not covered by PCI DSS compliance.