Form preview

Get the free Could carbon cap reduce New York energy bills?

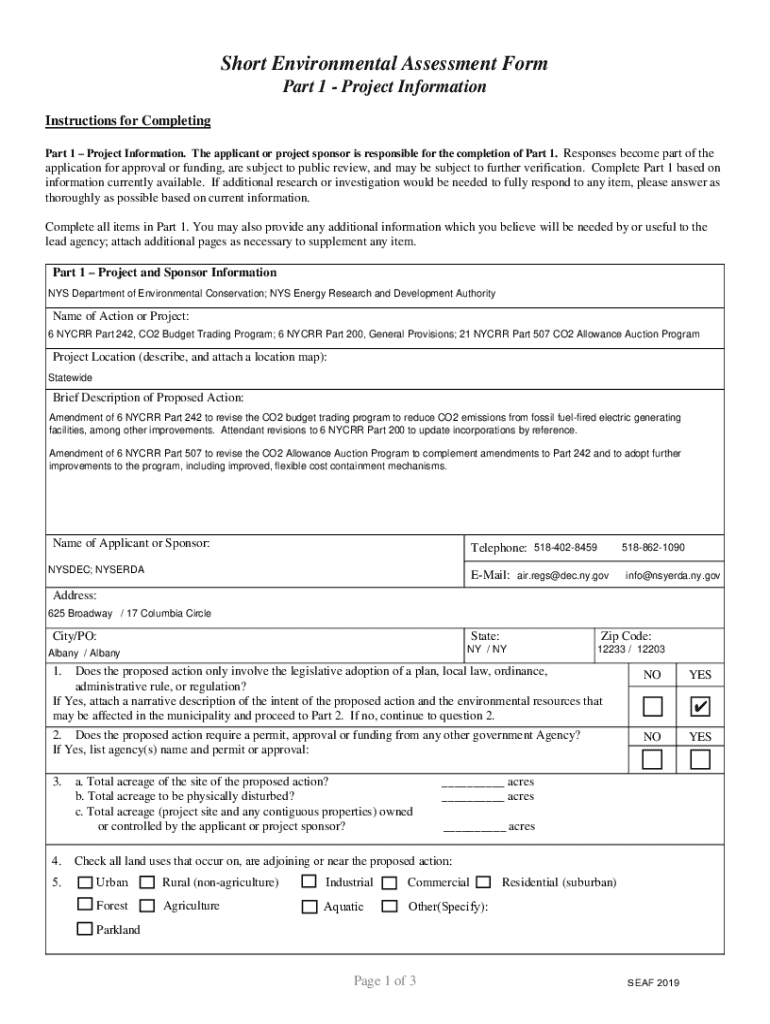
Get Form
NOTICE OF MEETING AND AGENDA November 12, 2025 TO THE GUESTS OF THE NEW YORK STATE ENERGY RESEARCH AND DEVELOPMENT AUTHORITY: PLEASE TAKE NOTICE that a Special Meeting (the 273rd) of the New York
We are not affiliated with any brand or entity on this form

Get, Create, Make and Sign could carbon cap reduce

Edit
Edit your could carbon cap reduce form online
Type text, complete fillable fields, insert images, highlight or blackout data for discretion, add comments, and more.
Add
Add your legally-binding signature
Draw or type your signature, upload a signature image, or capture it with your digital camera.
Share
Share your form instantly
Email, fax, or share your could carbon cap reduce form via URL. You can also download, print, or export forms to your preferred cloud storage service.

Editing could carbon cap reduce online

9.5
Ease of Setup
pdfFiller User Ratings on G2
9.0
Ease of Use
pdfFiller User Ratings on G2
To use the professional PDF editor, follow these steps:
1
Register the account. Begin by clicking Start Free Trial and create a profile if you are a new user.
2
Upload a file. Select Add New on your Dashboard and upload a file from your device or import it from the cloud, online, or internal mail. Then click Edit.
3
Edit could carbon cap reduce. Add and replace text, insert new objects, rearrange pages, add watermarks and page numbers, and more. Click Done when you are finished editing and go to the Documents tab to merge, split, lock or unlock the file.
4
Save your file. Select it in the list of your records. Then, move the cursor to the right toolbar and choose one of the available exporting methods: save it in multiple formats, download it as a PDF, send it by email, or store it in the cloud.
With pdfFiller, it's always easy to work with documents.

Uncompromising security for your PDF editing and eSignature needs

Your private information is safe with pdfFiller. We employ end-to-end encryption, secure cloud storage, and advanced access control to protect your documents and maintain regulatory compliance.
GDPR
AICPA SOC 2
PCI
HIPAA
CCPA
FDA

How to fill out could carbon cap reduce

Illustration

How to fill out could carbon cap reduce

01
Identify the carbon-emitting sources in your organization or operation.
02
Calculate the current carbon emissions to establish a baseline.
03
Research and understand the applicable carbon cap regulations.
04
Set clear and achievable carbon reduction goals.
05
Develop a strategy for reducing emissions, such as implementing energy-efficient technologies or changing operational practices.
06
Monitor progress towards carbon reduction goals regularly.
07
Report the findings and submit any required documentation to regulatory authorities.

Who needs could carbon cap reduce?

01
Businesses operating in carbon-intensive industries.
02
Organizations aiming to improve their environmental sustainability.
03
Governments seeking to comply with climate policies.
04
Investors interested in sustainable investment opportunities.
05
Communities affected by environmental pollution.

Could Carbon Cap Reduce Form: A Comprehensive Guide

Understanding carbon caps and their purpose

Carbon caps are regulatory limits imposed by governments on the total level of greenhouse gas emissions that can be emitted by specific sectors or regions. Each organization within the cap is allocated allowances, which represent the right to emit a certain amount of carbon dioxide or its equivalent in other greenhouse gases. Carbon caps are meant to create an economic incentive for companies to invest in sustainable practices and technologies that reduce their emissions.

The rationale behind implementing carbon caps centers around addressing climate change and minimizing environmental damage. By limiting carbon emissions, governments aim to drive significant reductions in total atmospheric carbon brought about by industrial activities. These caps are crucial as they not only help in mitigating climate effects but also promote a shift toward cleaner energy alternatives. Effective policies can lead to substantial emissions reductions, as evidenced by various case studies around the globe.

California's cap-and-trade program, which has significantly lowered emissions since its inception in 2013.
The European Union Emission Trading Scheme (EU ETS), one of the largest carbon markets that has successfully cut emissions by over 35% since 2005.

How carbon cap works in practice

The mechanism of carbon caps typically involves a 'cap-and-trade' system where a cap is set on total emissions and companies can buy or sell emission allowances, depending on whether they exceed or fall short of their allocated allowances. This market-oriented approach creates financial incentives for companies to reduce their emissions. For instance, if a company is able to cut its emissions below its caps, it can sell its excess allowances in the market.

Allowances can be allocated through different methods, including free allocation based on historical emissions or auctioning. Real-world applications include countries like Canada, which has adopted a system that allows provinces to create their own emissions reduction strategies under a federal cap. The role of compliance and monitoring is critical, as it ensures that companies adhere to their cap limits and encourages transparency within the marketplace.

Steps to participate in a carbon cap program

Organizations interested in actively participating in a carbon cap program need to understand their current emissions landscape. The first step should be a thorough assessment of the organization's carbon footprint, identifying all sources of emissions through established metrics and tools. Comprehensive data collection is crucial in this phase.

Next, organizations must familiarize themselves with local and national regulations surrounding carbon caps. This includes reviewing any specific compliance and reporting guidelines applicable to their jurisdiction. By understanding the legal obligations, companies can navigate the complexities of participation more effectively.

Assess your organization’s carbon footprint using tools like greenhouse gas inventories.
Understanding regulatory requirements is essential to establish compliance practices.
Implementing reduction strategies may involve adopting new technologies or practices.
Engage in the carbon market by exploring carbon credit opportunities, either buying or selling as necessary.

Benefits of adopting a carbon cap strategy

Adopting a carbon cap strategy can yield numerous economic incentives. By focusing on operational efficiencies, companies can lower their overall emissions costs. Innovative practices often arise from the need to meet or exceed their set caps, leading to new revenue streams through trading carbon credits. This can create a win-win scenario where both the environment and business profitability are improved.

Moreover, companies that align themselves with sustainability initiatives often enhance their corporate responsibility reputation. This increased brand value can significantly attract environmentally-conscious consumers and investors, leading to long-term customer loyalty and financial benefits. Additionally, adopting a proactive stance toward emissions reduction acts as a risk management strategy, preparing businesses for future regulatory changes surrounding carbon emissions.

Challenges and considerations

Implementing carbon caps isn’t without its hurdles. Common challenges include the technical difficulties of measuring emissions accurately, especially in diverse organizations. Additionally, the financial barriers often include initial costs related to implementing new systems and controls. Companies must consider these upfront investments against potential future cost savings.

To successfully navigate these challenges, securing buy-in from stakeholders is vital. Collaboration can enhance the organization’s understanding of the importance of reducing emissions. Fostering a culture of awareness through training can empower teams to take ownership of their role in achieving sustainability goals.

Future of carbon cap policies

The future of carbon cap policies is poised for evolution, with trends indicating a shift toward more integrated approaches in emissions regulations. As governments increasingly coupled carbon pricing with other environmental policies, a comprehensive framework surrounding cap systems is emerging. This integrated approach simplifies general compliance while enhancing the overall effectiveness of emissions reduction strategies.

Internationally, cooperation through treaties and agreements will play a pivotal role in shaping future cap policies. Additionally, innovation and technology are becoming critical components in carbon management, with emerging tools enhancing compliance capabilities and aiding organizations in documentation and reporting. These advancements will likely ease the burden on companies and expand the viability of carbon caps globally.

Tools and resources for carbon cap engagement

Engaging actively in a carbon cap program can be simplified with the right tools and resources. pdfFiller offers interactive tools that provide digital templates essential for carbon reporting and compliance documentation. Users can easily edit, eSign, and collaborate on documents, ensuring a streamlined process while addressing their carbon management needs.

Webinars and workshops on carbon management strategies are also available to provide further education on effective practices. Moreover, networking opportunities exist within pdfFiller's community platforms, allowing industry professionals to connect and share insights on best practices regarding carbon cap engagement.

Fill form : Try Risk Free
Users Most Likely To Recommend - Summer 2025
Grid Leader in Small-Business - Summer 2025
High Performer - Summer 2025
Regional Leader - Summer 2025
Easiest To Do Business With - Summer 2025
Best Meets Requirements- Summer 2025
Rate the form
4.7
Satisfied
36 Votes

For pdfFiller’s FAQs

Below is a list of the most common customer questions. If you can’t find an answer to your question, please don’t hesitate to reach out to us.

Using pdfFiller's Gmail add-on, you can edit, fill out, and sign your could carbon cap reduce and other papers directly in your email. You may get it through Google Workspace Marketplace. Make better use of your time by handling your papers and eSignatures.
The editing procedure is simple with pdfFiller. Open your could carbon cap reduce in the editor. You may also add photos, draw arrows and lines, insert sticky notes and text boxes, and more.
You can do so easily with pdfFiller’s applications for iOS and Android devices, which can be found at the Apple Store and Google Play Store, respectively. Alternatively, you can get the app on our web page: https://edit-pdf-ios-android.pdffiller.com/. Install the application, log in, and start editing could carbon cap reduce right away.
A carbon cap is designed to reduce greenhouse gas emissions by setting a limit on the amount of carbon dioxide that can be emitted by industries and organizations.
Entities that exceed a certain threshold of carbon emissions, such as large industrial operations and power plants, are required to file under the carbon cap regulations.
To fill out the carbon cap report, organizations must gather data on their carbon emissions, calculate their total emissions, and submit the required forms to the relevant regulatory body according to the specified guidelines.
The purpose of a carbon cap is to limit overall carbon emissions, encourage the use of cleaner technologies, and promote sustainability in industries to combat climate change.
Organizations must report their total carbon emissions, methods of calculation, compliance data, and any changes in operation that may affect emissions levels.
Fill out your could carbon cap reduce online with pdfFiller!

pdfFiller is an end-to-end solution for managing, creating, and editing documents and forms in the cloud. Save time and hassle by preparing your tax forms online.

Get started now
Form preview
If you believe that this page should be taken down, please follow our DMCA take down process here .
This form may include fields for payment information. Data entered in these fields is not covered by PCI DSS compliance.