Get the free Life Safety Code Overview Worksheet Form 5605 - dads state tx
Show details
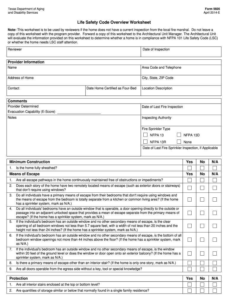
Texas Department of Aging and Disability Services Form 5605 April 2014E Life Safety Code Overview Worksheet Note: This worksheet is to be used by reviewers if the home does not have a current inspection
We are not affiliated with any brand or entity on this form
Get, Create, Make and Sign life safety code overview
Edit your life safety code overview form online
Type text, complete fillable fields, insert images, highlight or blackout data for discretion, add comments, and more.
Add your legally-binding signature
Draw or type your signature, upload a signature image, or capture it with your digital camera.
Share your form instantly
Email, fax, or share your life safety code overview form via URL. You can also download, print, or export forms to your preferred cloud storage service.
How to edit life safety code overview online
Follow the guidelines below to benefit from a competent PDF editor:
1
Sign into your account. In case you're new, it's time to start your free trial.
2
Simply add a document. Select Add New from your Dashboard and import a file into the system by uploading it from your device or importing it via the cloud, online, or internal mail. Then click Begin editing.
3
Edit life safety code overview. Text may be added and replaced, new objects can be included, pages can be rearranged, watermarks and page numbers can be added, and so on. When you're done editing, click Done and then go to the Documents tab to combine, divide, lock, or unlock the file.
4
Get your file. Select your file from the documents list and pick your export method. You may save it as a PDF, email it, or upload it to the cloud.
Dealing with documents is simple using pdfFiller. Try it right now!
Uncompromising security for your PDF editing and eSignature needs
Your private information is safe with pdfFiller. We employ end-to-end encryption, secure cloud storage, and advanced access control to protect your documents and maintain regulatory compliance.
How to fill out life safety code overview
How to fill out a life safety code overview:
01
Identify the purpose of the document: Before starting, understand why you are creating a life safety code overview. Is it for a building inspection, a regulatory requirement, or internal documentation? This will help you determine the scope and details to include in the overview.
02
Gather relevant information: Collect all the necessary information about the building or facility, such as its size, occupancy type, construction type, and any special features or hazards. This information will be crucial in understanding and documenting the life safety code requirements applicable to the location.
03
Consult the life safety code standards: Review the applicable life safety code standards, such as NFPA 101, and familiarize yourself with the requirements. Take note of specific sections that pertain to the building's features, occupancy, and any specific hazards. This will serve as a reference point for the overview.
04
Outline the overview structure: Determine how you want to structure the overview. You may choose to organize it by building areas, life safety systems, or code requirements. Create headings and subheadings that will help guide your documentation process and ensure a clear and organized overview.
05
Document the relevant code requirements: Based on the information gathered and the standards reviewed, document the specific code requirements that apply to the building or facility. Be concise and clear in your explanations, providing references to the relevant code sections if needed.
06
Include drawings or illustrations: Use drawings or illustrations to enhance understanding and clarify complex concepts. Visual aids can help stakeholders, such as facility managers or inspectors, better comprehend the life safety code requirements outlined in the overview.
07
Review and validate the overview: Once you have completed the initial draft of the life safety code overview, review it carefully for accuracy and completeness. Ensure that all relevant code requirements are accurately documented and that the overview aligns with the purpose defined in the first step.
08
Seek professional consultation if needed: If you are unsure about any aspect of the life safety code requirements or face challenges interpreting specific code provisions, consider seeking professional assistance from a qualified expert in fire safety or building codes. Their expertise can help ensure the accuracy and quality of your overview.
Who needs a life safety code overview?
01
Architects and Engineers: Professionals involved in the design and construction of buildings require a life safety code overview to ensure compliance with the applicable standards. It helps them integrate the necessary safety features and systems early in the design process.
02
Facility Managers: Facility managers are responsible for the operation and maintenance of buildings. They need a life safety code overview to understand the requirements for inspections, maintenance, and emergency preparedness, ensuring the ongoing safety of occupants and compliance with regulations.
03
Inspectors and Code Officials: Inspectors and code officials rely on a life safety code overview to evaluate and determine if a building meets the necessary safety standards. It helps them identify deficiencies, issue permits, and ensure compliance with local, state, or national codes.
04
Occupants and Users: Building occupants, such as employees or residents, benefit from a life safety code overview as it informs them about the safety features, emergency procedures, and evacuation routes within the building. This knowledge promotes a safer environment and helps individuals respond appropriately during emergencies.
05
Building Owners and Property Managers: Building owners and property managers need a life safety code overview to demonstrate compliance with regulatory requirements and ensure the safety of their tenants. It also assists them in planning and budgeting for necessary safety upgrades or renovations.
Note: The specific individuals or entities that require a life safety code overview may vary depending on the jurisdiction, type of building, and local regulations. It is essential to consult with local authorities and professionals in your area to determine the specific needs and requirements.
Fill
form
: Try Risk Free
For pdfFiller’s FAQs
Below is a list of the most common customer questions. If you can’t find an answer to your question, please don’t hesitate to reach out to us.
How do I execute life safety code overview online?
Easy online life safety code overview completion using pdfFiller. Also, it allows you to legally eSign your form and change original PDF material. Create a free account and manage documents online.
How do I edit life safety code overview online?
The editing procedure is simple with pdfFiller. Open your life safety code overview in the editor, which is quite user-friendly. You may use it to blackout, redact, write, and erase text, add photos, draw arrows and lines, set sticky notes and text boxes, and much more.
How do I edit life safety code overview in Chrome?
Add pdfFiller Google Chrome Extension to your web browser to start editing life safety code overview and other documents directly from a Google search page. The service allows you to make changes in your documents when viewing them in Chrome. Create fillable documents and edit existing PDFs from any internet-connected device with pdfFiller.
What is life safety code overview?
Life safety code overview provides an overview of the fire protection and life safety features of a building.
Who is required to file life safety code overview?
Building owners or managers are typically required to file the life safety code overview.
How to fill out life safety code overview?
The life safety code overview should be filled out accurately and completely, providing details on the fire protection systems and safety features of the building.
What is the purpose of life safety code overview?
The purpose of the life safety code overview is to ensure that buildings are equipped with adequate fire protection and life safety measures to protect occupants in case of emergency.
What information must be reported on life safety code overview?
The life safety code overview should include details on fire alarm systems, sprinkler systems, emergency lighting, exits, and other safety features of the building.
Fill out your life safety code overview online with pdfFiller!
pdfFiller is an end-to-end solution for managing, creating, and editing documents and forms in the cloud. Save time and hassle by preparing your tax forms online.
Life Safety Code Overview is not the form you're looking for?Search for another form here.
Relevant keywords
Related Forms
If you believe that this page should be taken down, please follow our DMCA take down process
here
.
This form may include fields for payment information. Data entered in these fields is not covered by PCI DSS compliance.