
Get the free About Us - Assessor/Recorder/County Clerk - CA.gov
Show details
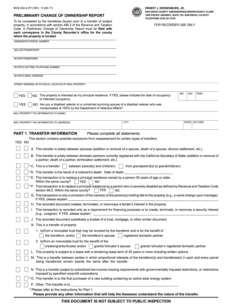
BOE502A (P1) REV. 13 (0617)ERNEST J. BRANDENBURG, JR.PRELIMINARY CHANGE OF OWNERSHIP REPORT SAN DIEGO COUNTY ASSESSOR/RECORDER/COUNTY CLERK
1600 PACIFIC HIGHWAY, SUITE 103, SAN DIEGO, CA 92101
TELEPHONE
We are not affiliated with any brand or entity on this form
Get, Create, Make and Sign about us - assessorrecordercounty

Edit your about us - assessorrecordercounty form online
Type text, complete fillable fields, insert images, highlight or blackout data for discretion, add comments, and more.

Add your legally-binding signature
Draw or type your signature, upload a signature image, or capture it with your digital camera.

Share your form instantly
Email, fax, or share your about us - assessorrecordercounty form via URL. You can also download, print, or export forms to your preferred cloud storage service.
How to edit about us - assessorrecordercounty online
Here are the steps you need to follow to get started with our professional PDF editor:
1
Create an account. Begin by choosing Start Free Trial and, if you are a new user, establish a profile.
2
Prepare a file. Use the Add New button. Then upload your file to the system from your device, importing it from internal mail, the cloud, or by adding its URL.
3
Edit about us - assessorrecordercounty. Rearrange and rotate pages, add new and changed texts, add new objects, and use other useful tools. When you're done, click Done. You can use the Documents tab to merge, split, lock, or unlock your files.
4
Save your file. Select it in the list of your records. Then, move the cursor to the right toolbar and choose one of the available exporting methods: save it in multiple formats, download it as a PDF, send it by email, or store it in the cloud.
pdfFiller makes dealing with documents a breeze. Create an account to find out!
Uncompromising security for your PDF editing and eSignature needs
Your private information is safe with pdfFiller. We employ end-to-end encryption, secure cloud storage, and advanced access control to protect your documents and maintain regulatory compliance.
How to fill out about us - assessorrecordercounty

How to fill out about us - assessorrecordercounty
01
Start by introducing your organization: Provide a brief overview of who you are and what you do.
02
Highlight your mission and values: Clearly explain the purpose and core beliefs of your organization.
03
Describe your services or products: Provide detailed information about the services or products you offer.
04
Include your achievements and milestones: Highlight any significant accomplishments or notable milestones.
05
Showcase your team: Introduce key members of your organization and their roles.
06
Provide contact information: Include your address, phone number, email, and any other relevant contact details.
07
Include any certifications or affiliations: If your organization has any certifications or affiliations, mention them.
08
Add any additional relevant information: Include any other information that you believe is important for visitors to know about your organization.
Who needs about us - assessorrecordercounty?
01
Any individual or organization visiting the assessorrecordercounty website who wants to learn more about the department, its functions, and its services can benefit from the 'About Us' section.
Fill
form
: Try Risk Free
For pdfFiller’s FAQs
Below is a list of the most common customer questions. If you can’t find an answer to your question, please don’t hesitate to reach out to us.
How do I complete about us - assessorrecordercounty online?
pdfFiller makes it easy to finish and sign about us - assessorrecordercounty online. It lets you make changes to original PDF content, highlight, black out, erase, and write text anywhere on a page, legally eSign your form, and more, all from one place. Create a free account and use the web to keep track of professional documents.
Can I create an electronic signature for the about us - assessorrecordercounty in Chrome?
Yes. By adding the solution to your Chrome browser, you may use pdfFiller to eSign documents while also enjoying all of the PDF editor's capabilities in one spot. Create a legally enforceable eSignature by sketching, typing, or uploading a photo of your handwritten signature using the extension. Whatever option you select, you'll be able to eSign your about us - assessorrecordercounty in seconds.
How do I complete about us - assessorrecordercounty on an Android device?
Complete about us - assessorrecordercounty and other documents on your Android device with the pdfFiller app. The software allows you to modify information, eSign, annotate, and share files. You may view your papers from anywhere with an internet connection.
What is about us - assessorrecordercounty?
The 'About Us' section for the Assessor-Recorder County provides an overview of the office's functions, responsibilities, and services offered to the community, including property assessment, tax recording, and public records management.
Who is required to file about us - assessorrecordercounty?
Individuals or entities involved in property transactions or those required to declare property ownership and related information to the Assessor-Recorder County are typically required to file information for the 'About Us' section.
How to fill out about us - assessorrecordercounty?
To fill out the 'About Us' section, individuals should provide accurate and relevant information pertaining to their property, including ownership details, valuation, and specific services needed from the Assessor-Recorder's office.
What is the purpose of about us - assessorrecordercounty?
The purpose of the 'About Us' section is to inform the public about the Assessor-Recorder's office, its services, and how it operates, ensuring transparency and accessibility to property-related information.
What information must be reported on about us - assessorrecordercounty?
Required information may include property ownership details, property descriptions, tax identification numbers, and any other relevant data that helps the Assessor-Recorder process and assess property accurately.
Fill out your about us - assessorrecordercounty online with pdfFiller!
pdfFiller is an end-to-end solution for managing, creating, and editing documents and forms in the cloud. Save time and hassle by preparing your tax forms online.

About Us - Assessorrecordercounty is not the form you're looking for?Search for another form here.
Relevant keywords
Related Forms
If you believe that this page should be taken down, please follow our DMCA take down process
here
.
This form may include fields for payment information. Data entered in these fields is not covered by PCI DSS compliance.