
Get the free Online Niagara District Bronze Championshop ...
Show details
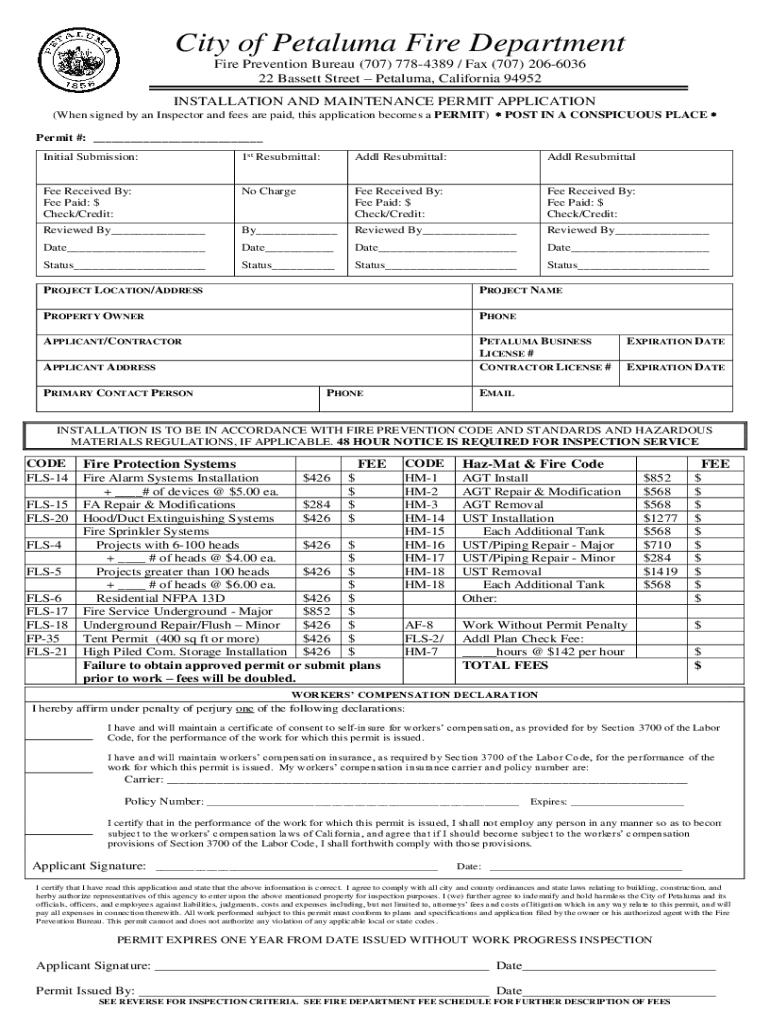
City of Petaluma Fire Department Fire Prevention Bureau (707) 7784389 / Fax (707) 2066036 22 Bassett Street Petaluma, California 94952 INSTALLATION AND MAINTENANCE PERMIT APPLICATION (When signed
We are not affiliated with any brand or entity on this form
Get, Create, Make and Sign online niagara district bronze

Edit your online niagara district bronze form online
Type text, complete fillable fields, insert images, highlight or blackout data for discretion, add comments, and more.

Add your legally-binding signature
Draw or type your signature, upload a signature image, or capture it with your digital camera.

Share your form instantly
Email, fax, or share your online niagara district bronze form via URL. You can also download, print, or export forms to your preferred cloud storage service.
Editing online niagara district bronze online
Here are the steps you need to follow to get started with our professional PDF editor:
1
Create an account. Begin by choosing Start Free Trial and, if you are a new user, establish a profile.
2
Prepare a file. Use the Add New button to start a new project. Then, using your device, upload your file to the system by importing it from internal mail, the cloud, or adding its URL.
3
Edit online niagara district bronze. Rearrange and rotate pages, add new and changed texts, add new objects, and use other useful tools. When you're done, click Done. You can use the Documents tab to merge, split, lock, or unlock your files.
4
Get your file. Select your file from the documents list and pick your export method. You may save it as a PDF, email it, or upload it to the cloud.
Dealing with documents is always simple with pdfFiller.
Uncompromising security for your PDF editing and eSignature needs
Your private information is safe with pdfFiller. We employ end-to-end encryption, secure cloud storage, and advanced access control to protect your documents and maintain regulatory compliance.
How to fill out online niagara district bronze

How to fill out online niagara district bronze
01
Go to the website of Niagara District Bronze
02
Look for the option to fill out the form online
03
Click on the option to start filling out the form
04
Carefully read the instructions and provide the required information in the appropriate fields
05
Double-check all the provided information for accuracy
06
Once you have completed filling out the form, submit it
07
Wait for confirmation or further instructions from Niagara District Bronze
Who needs online niagara district bronze?
01
Individuals who are interested in obtaining the Niagara District Bronze qualification
02
People who want to enhance their skills and knowledge in the field of the Niagara District Bronze
03
Any individual or organization that requires or values the Niagara District Bronze qualification for employment or other purposes
Fill
form
: Try Risk Free
For pdfFiller’s FAQs
Below is a list of the most common customer questions. If you can’t find an answer to your question, please don’t hesitate to reach out to us.
How do I make changes in online niagara district bronze?
pdfFiller not only lets you change the content of your files, but you can also change the number and order of pages. Upload your online niagara district bronze to the editor and make any changes in a few clicks. The editor lets you black out, type, and erase text in PDFs. You can also add images, sticky notes, and text boxes, as well as many other things.
How do I edit online niagara district bronze straight from my smartphone?
You can do so easily with pdfFiller’s applications for iOS and Android devices, which can be found at the Apple Store and Google Play Store, respectively. Alternatively, you can get the app on our web page: https://edit-pdf-ios-android.pdffiller.com/. Install the application, log in, and start editing online niagara district bronze right away.
How do I fill out online niagara district bronze on an Android device?
Complete online niagara district bronze and other documents on your Android device with the pdfFiller app. The software allows you to modify information, eSign, annotate, and share files. You may view your papers from anywhere with an internet connection.
What is online niagara district bronze?
Online Niagara District Bronze refers to a digital platform or system used for reporting and submitting specific data related to the Niagara District, particularly concerning local regulations or requirements.
Who is required to file online niagara district bronze?
Individuals or businesses operating within the Niagara District who meet certain criteria or thresholds set by local regulations are required to file online Niagara District Bronze.
How to fill out online niagara district bronze?
To fill out online Niagara District Bronze, users must access the official online platform, provide the requested information in the designated fields, and follow the on-screen instructions for submission.
What is the purpose of online niagara district bronze?
The purpose of online Niagara District Bronze is to streamline the reporting process for businesses and individuals, ensuring compliance with local laws and facilitating better data management by authorities.
What information must be reported on online niagara district bronze?
Information that must be reported may include business identification details, financial data, compliance metrics, and any other specific data required by the Niagara District regulations.
Fill out your online niagara district bronze online with pdfFiller!
pdfFiller is an end-to-end solution for managing, creating, and editing documents and forms in the cloud. Save time and hassle by preparing your tax forms online.

Online Niagara District Bronze is not the form you're looking for?Search for another form here.
Relevant keywords
Related Forms
If you believe that this page should be taken down, please follow our DMCA take down process
here
.
This form may include fields for payment information. Data entered in these fields is not covered by PCI DSS compliance.