Get the free Connect to Gas Wall Furnace rebate application
Show details
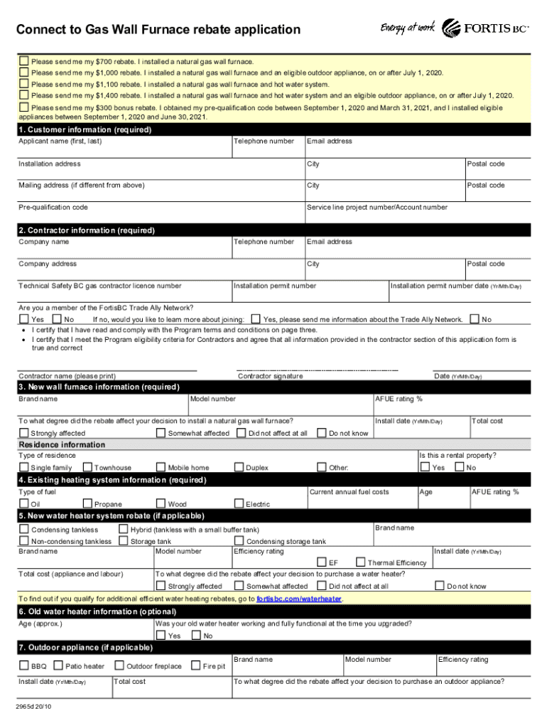
Connect to Gas Wall Furnace rebate application
Please send me my $700 rebate. I installed a natural gas wall furnace.
Please send me my $1,000 rebate. I installed a natural gas wall furnace and an
We are not affiliated with any brand or entity on this form
Get, Create, Make and Sign connect to gas wall
Edit your connect to gas wall form online
Type text, complete fillable fields, insert images, highlight or blackout data for discretion, add comments, and more.
Add your legally-binding signature
Draw or type your signature, upload a signature image, or capture it with your digital camera.
Share your form instantly
Email, fax, or share your connect to gas wall form via URL. You can also download, print, or export forms to your preferred cloud storage service.
How to edit connect to gas wall online
Follow the guidelines below to use a professional PDF editor:
1
Create an account. Begin by choosing Start Free Trial and, if you are a new user, establish a profile.
2
Simply add a document. Select Add New from your Dashboard and import a file into the system by uploading it from your device or importing it via the cloud, online, or internal mail. Then click Begin editing.
3
Edit connect to gas wall. Rearrange and rotate pages, add new and changed texts, add new objects, and use other useful tools. When you're done, click Done. You can use the Documents tab to merge, split, lock, or unlock your files.
4
Save your file. Select it in the list of your records. Then, move the cursor to the right toolbar and choose one of the available exporting methods: save it in multiple formats, download it as a PDF, send it by email, or store it in the cloud.
It's easier to work with documents with pdfFiller than you could have ever thought. You can sign up for an account to see for yourself.
Uncompromising security for your PDF editing and eSignature needs
Your private information is safe with pdfFiller. We employ end-to-end encryption, secure cloud storage, and advanced access control to protect your documents and maintain regulatory compliance.
How to fill out connect to gas wall
How to fill out connect to gas wall
01
Locate the gas wall connection point in your desired location.
02
Ensure that all necessary safety measures are in place, such as turning off the gas supply to the area.
03
Gather the required tools and materials, including a gas hose, pipe wrench, and Teflon tape.
04
Connect one end of the gas hose to the gas wall connection point.
05
Use a pipe wrench to tighten the connection securely.
06
Apply Teflon tape to the threaded end of the gas hose to prevent leaks.
07
Connect the other end of the gas hose to the appliance you wish to connect to the gas wall.
08
Tighten this connection as well using a pipe wrench.
09
Double-check all connections to ensure they are properly secured.
10
Turn on the gas supply and test for any gas leaks using a gas leak detector or a mixture of soapy water.
11
Once you have confirmed there are no leaks, your gas wall connection is complete and ready for use.
Who needs connect to gas wall?
01
Anyone who wishes to connect an appliance that requires gas supply to a wall can benefit from connecting to a gas wall. This can include homeowners, renters, or businesses looking to install gas-powered appliances such as stoves, ovens, heaters, or water heaters.
Fill
form
: Try Risk Free
For pdfFiller’s FAQs
Below is a list of the most common customer questions. If you can’t find an answer to your question, please don’t hesitate to reach out to us.
How can I manage my connect to gas wall directly from Gmail?
pdfFiller’s add-on for Gmail enables you to create, edit, fill out and eSign your connect to gas wall and any other documents you receive right in your inbox. Visit Google Workspace Marketplace and install pdfFiller for Gmail. Get rid of time-consuming steps and manage your documents and eSignatures effortlessly.
How can I modify connect to gas wall without leaving Google Drive?
pdfFiller and Google Docs can be used together to make your documents easier to work with and to make fillable forms right in your Google Drive. The integration will let you make, change, and sign documents, like connect to gas wall, without leaving Google Drive. Add pdfFiller's features to Google Drive, and you'll be able to do more with your paperwork on any internet-connected device.
How can I send connect to gas wall for eSignature?
connect to gas wall is ready when you're ready to send it out. With pdfFiller, you can send it out securely and get signatures in just a few clicks. PDFs can be sent to you by email, text message, fax, USPS mail, or notarized on your account. You can do this right from your account. Become a member right now and try it out for yourself!
What is connect to gas wall?
Connect to gas wall refers to the process of connecting a gas supply system to a gas utility infrastructure, typically involving the installation of gas meters and necessary piping.
Who is required to file connect to gas wall?
Those who are initiating a new gas connection or modifying an existing gas service line are typically required to file a connect to gas wall.
How to fill out connect to gas wall?
To fill out a connect to gas wall, one needs to provide details such as the location, type of service, and any required specifications regarding the installation.
What is the purpose of connect to gas wall?
The purpose of connect to gas wall is to ensure proper and safe connections between a customer's gas system and the gas utility provider, facilitating gas delivery for residential or commercial needs.
What information must be reported on connect to gas wall?
The information that must be reported includes the property address, owner's details, proposed gas load, and any existing gas line specifications.
Fill out your connect to gas wall online with pdfFiller!
pdfFiller is an end-to-end solution for managing, creating, and editing documents and forms in the cloud. Save time and hassle by preparing your tax forms online.
Connect To Gas Wall is not the form you're looking for?Search for another form here.
Relevant keywords
Related Forms
If you believe that this page should be taken down, please follow our DMCA take down process
here
.
This form may include fields for payment information. Data entered in these fields is not covered by PCI DSS compliance.