Get the free Including suburb or 10 Loretta Close, Lara
Show details
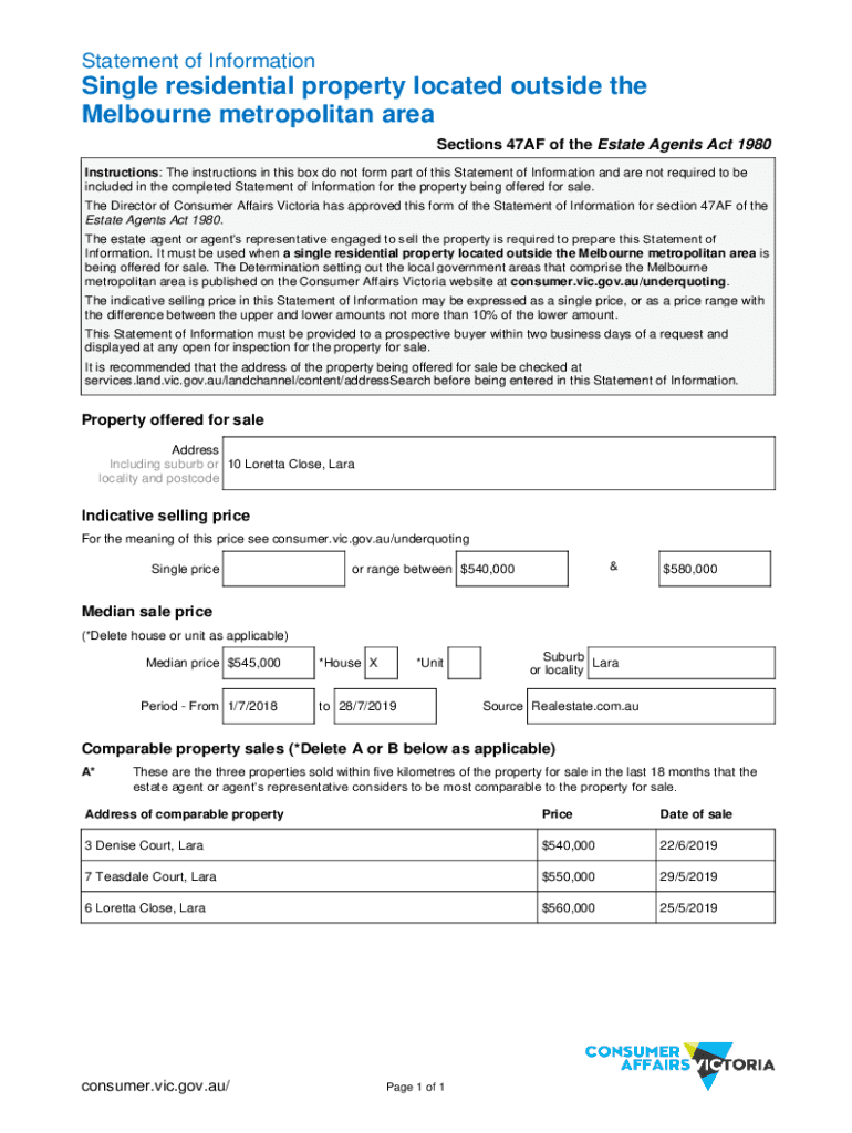
Statement of InformationSingle residential property located outside the
Melbourne metropolitan area
Sections 47AF of the Estate Agents Act 1980
Instructions: The instructions in this box do not form
We are not affiliated with any brand or entity on this form
Get, Create, Make and Sign including suburb or 10
Edit your including suburb or 10 form online
Type text, complete fillable fields, insert images, highlight or blackout data for discretion, add comments, and more.
Add your legally-binding signature
Draw or type your signature, upload a signature image, or capture it with your digital camera.
Share your form instantly
Email, fax, or share your including suburb or 10 form via URL. You can also download, print, or export forms to your preferred cloud storage service.
Editing including suburb or 10 online
To use the services of a skilled PDF editor, follow these steps below:
1
Register the account. Begin by clicking Start Free Trial and create a profile if you are a new user.
2
Prepare a file. Use the Add New button. Then upload your file to the system from your device, importing it from internal mail, the cloud, or by adding its URL.
3
Edit including suburb or 10. Add and change text, add new objects, move pages, add watermarks and page numbers, and more. Then click Done when you're done editing and go to the Documents tab to merge or split the file. If you want to lock or unlock the file, click the lock or unlock button.
4
Get your file. Select your file from the documents list and pick your export method. You may save it as a PDF, email it, or upload it to the cloud.
It's easier to work with documents with pdfFiller than you can have ever thought. Sign up for a free account to view.
Uncompromising security for your PDF editing and eSignature needs
Your private information is safe with pdfFiller. We employ end-to-end encryption, secure cloud storage, and advanced access control to protect your documents and maintain regulatory compliance.
How to fill out including suburb or 10
How to fill out including suburb or 10
01
To fill out including suburb or 10, follow these steps:
02
Start by identifying the form or document that requires the inclusion of suburb or 10. Verify if there is a specific section or field designated for it.
03
Double-check the format or requirements for entering the suburb or 10. It may involve using numeric digits, alphabets, or a combination.
04
Begin by locating the appropriate space provided for entering the suburb or 10. It could be a blank box, a drop-down menu, or a separate line.
05
Enter the suburb or 10 accurately and legibly. Ensure there are no spelling errors or mistakes in your input.
06
Review your entry to confirm its correctness. Make any necessary corrections before finalizing the submission.
07
Once you have filled out including suburb or 10, proceed with the rest of the form or document accordingly.
08
Finally, submit the completed form or document as required. Keep a copy for your reference if necessary.
Who needs including suburb or 10?
01
Including suburb or 10 is necessary for:
02
- Individuals residing in a designated suburb or zone marked as 10.
03
- Applicants applying for specific services or benefits that require information about the suburb or 10.
04
- Organizations or authorities collecting demographic data or statistics that include the suburb or 10 parameter.
Fill
form
: Try Risk Free
For pdfFiller’s FAQs
Below is a list of the most common customer questions. If you can’t find an answer to your question, please don’t hesitate to reach out to us.
How do I make changes in including suburb or 10?
The editing procedure is simple with pdfFiller. Open your including suburb or 10 in the editor. You may also add photos, draw arrows and lines, insert sticky notes and text boxes, and more.
How do I fill out the including suburb or 10 form on my smartphone?
You can easily create and fill out legal forms with the help of the pdfFiller mobile app. Complete and sign including suburb or 10 and other documents on your mobile device using the application. Visit pdfFiller’s webpage to learn more about the functionalities of the PDF editor.
How do I fill out including suburb or 10 on an Android device?
On an Android device, use the pdfFiller mobile app to finish your including suburb or 10. The program allows you to execute all necessary document management operations, such as adding, editing, and removing text, signing, annotating, and more. You only need a smartphone and an internet connection.
What is including suburb or 10?
Including suburb or 10 is a form or report that must be completed to provide specific information on residents and properties within a particular suburb or area.
Who is required to file including suburb or 10?
Individuals or entities that manage properties, local businesses, or provide services within the suburb are required to file including suburb or 10.
How to fill out including suburb or 10?
To fill out including suburb or 10, gather the necessary information about residents and properties, complete each section accurately, and ensure all required signatures are included before submission.
What is the purpose of including suburb or 10?
The purpose of including suburb or 10 is to collect data for urban planning, local governance, and resource allocation in the suburb.
What information must be reported on including suburb or 10?
Information that must be reported includes property addresses, resident details, zoning classifications, and services provided within the suburb.
Fill out your including suburb or 10 online with pdfFiller!
pdfFiller is an end-to-end solution for managing, creating, and editing documents and forms in the cloud. Save time and hassle by preparing your tax forms online.
Including Suburb Or 10 is not the form you're looking for?Search for another form here.
Relevant keywords
Related Forms
If you believe that this page should be taken down, please follow our DMCA take down process
here
.
This form may include fields for payment information. Data entered in these fields is not covered by PCI DSS compliance.