
Get the free Applications & Forms - Community Development Department ...
Show details
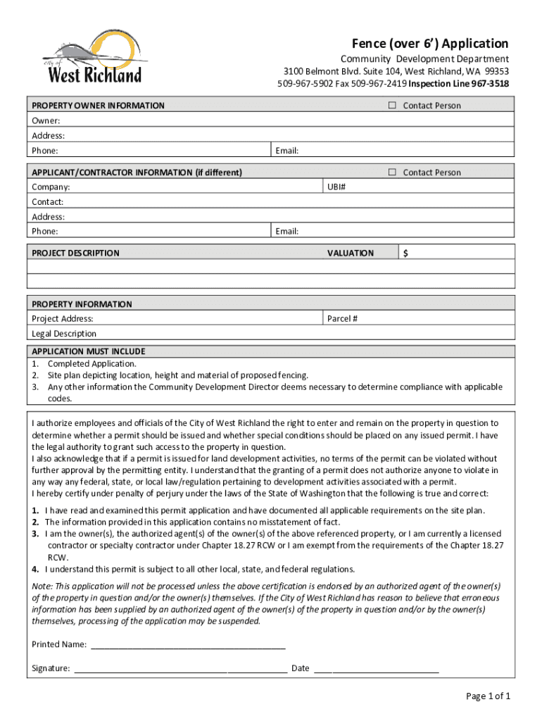
Fence (over 6) Application Community Development Department 3100 Belmont Blvd. Suite 104, West Richland, WA 99353 5099675902 Fax 5099672419 Inspection Line 9673518 Contact PersonPROPERTY OWNER INFORMATION
We are not affiliated with any brand or entity on this form
Get, Create, Make and Sign applications amp forms

Edit your applications amp forms form online
Type text, complete fillable fields, insert images, highlight or blackout data for discretion, add comments, and more.

Add your legally-binding signature
Draw or type your signature, upload a signature image, or capture it with your digital camera.

Share your form instantly
Email, fax, or share your applications amp forms form via URL. You can also download, print, or export forms to your preferred cloud storage service.
How to edit applications amp forms online
To use our professional PDF editor, follow these steps:
1
Set up an account. If you are a new user, click Start Free Trial and establish a profile.
2
Prepare a file. Use the Add New button. Then upload your file to the system from your device, importing it from internal mail, the cloud, or by adding its URL.
3
Edit applications amp forms. Rearrange and rotate pages, add and edit text, and use additional tools. To save changes and return to your Dashboard, click Done. The Documents tab allows you to merge, divide, lock, or unlock files.
4
Save your file. Choose it from the list of records. Then, shift the pointer to the right toolbar and select one of the several exporting methods: save it in multiple formats, download it as a PDF, email it, or save it to the cloud.
Uncompromising security for your PDF editing and eSignature needs
Your private information is safe with pdfFiller. We employ end-to-end encryption, secure cloud storage, and advanced access control to protect your documents and maintain regulatory compliance.
How to fill out applications amp forms

How to fill out applications amp forms
01
To fill out applications and forms, follow these steps:
02
- Read the instructions carefully before starting.
03
- Gather all the required information and documents.
04
- Start filling out the form section by section.
05
- Answer all the questions accurately and truthfully.
06
- Double-check your entries for any errors or typos.
07
- Review the completed form to ensure nothing is missing.
08
- Sign and date the form where necessary.
09
- Make copies of the filled-out form for your records.
10
- Submit the form according to the provided instructions, either online or by mail.
11
- Keep a copy of the submitted form for future reference.
Who needs applications amp forms?
01
Applications and forms are needed by individuals and organizations in various situations:
02
- Job seekers need to fill out job applications.
03
- Students fill out college applications and financial aid forms.
04
- Individuals applying for visas or passports need to complete specific forms.
05
- Government agencies require applications for benefits or permits.
06
- Businesses use various forms for licensing, tax filing, and legal purposes.
07
- Legal processes, such as court filings, require specific forms.
08
- Insurance companies ask for applications when applying for coverage.
09
- Nonprofit organizations use forms for fundraising and volunteer applications.
10
- Healthcare providers require patients to complete medical forms.
11
- Any situation that requires collecting information or initiating a formal process may involve applications and forms.
Fill
form
: Try Risk Free
For pdfFiller’s FAQs
Below is a list of the most common customer questions. If you can’t find an answer to your question, please don’t hesitate to reach out to us.
How can I manage my applications amp forms directly from Gmail?
In your inbox, you may use pdfFiller's add-on for Gmail to generate, modify, fill out, and eSign your applications amp forms and any other papers you receive, all without leaving the program. Install pdfFiller for Gmail from the Google Workspace Marketplace by visiting this link. Take away the need for time-consuming procedures and handle your papers and eSignatures with ease.
Where do I find applications amp forms?
The pdfFiller premium subscription gives you access to a large library of fillable forms (over 25 million fillable templates) that you can download, fill out, print, and sign. In the library, you'll have no problem discovering state-specific applications amp forms and other forms. Find the template you want and tweak it with powerful editing tools.
How can I edit applications amp forms on a smartphone?
The easiest way to edit documents on a mobile device is using pdfFiller’s mobile-native apps for iOS and Android. You can download those from the Apple Store and Google Play, respectively. You can learn more about the apps here. Install and log in to the application to start editing applications amp forms.
What is applications amp forms?
Applications amp forms are documents used to collect specific information from individuals or entities for various purposes.
Who is required to file applications amp forms?
Depending on the requirements set forth by the specific entity or organization, individuals or entities may be required to file applications amp forms.
How to fill out applications amp forms?
Applications amp forms can typically be filled out either physically by hand or electronically online, following the instructions provided on the form.
What is the purpose of applications amp forms?
The purpose of applications amp forms is to gather necessary information from individuals or entities in order to fulfill a specific requirement or process.
What information must be reported on applications amp forms?
The information required to be reported on applications amp forms can vary depending on the specific form and its purpose, but typically includes personal or business details.
Fill out your applications amp forms online with pdfFiller!
pdfFiller is an end-to-end solution for managing, creating, and editing documents and forms in the cloud. Save time and hassle by preparing your tax forms online.

Applications Amp Forms is not the form you're looking for?Search for another form here.
Relevant keywords
Related Forms
If you believe that this page should be taken down, please follow our DMCA take down process
here
.
This form may include fields for payment information. Data entered in these fields is not covered by PCI DSS compliance.