Get the free lendingxpress.swbc.com Secure fileViewerFEMA FORM 086-0-32, (06/16)
Show details
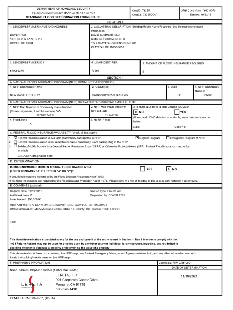
DEPARTMENT OF HOMELAND SECURITY FEDERAL EMERGENCY MANAGEMENT AGENCY OMB Control No. 16600040 Expires: 10/31/18CustID: 73255 Costco: 73255DOVSTANDARD FLOOD DETERMINATION FORM (SF HDF)SECTION I 1. LENDER/SERVICE
We are not affiliated with any brand or entity on this form
Get, Create, Make and Sign lendingxpressswbccom secure fileviewerfema form
Edit your lendingxpressswbccom secure fileviewerfema form form online
Type text, complete fillable fields, insert images, highlight or blackout data for discretion, add comments, and more.
Add your legally-binding signature
Draw or type your signature, upload a signature image, or capture it with your digital camera.
Share your form instantly
Email, fax, or share your lendingxpressswbccom secure fileviewerfema form form via URL. You can also download, print, or export forms to your preferred cloud storage service.
Editing lendingxpressswbccom secure fileviewerfema form online
Follow the steps down below to benefit from a competent PDF editor:
1
Log into your account. If you don't have a profile yet, click Start Free Trial and sign up for one.
2
Upload a file. Select Add New on your Dashboard and upload a file from your device or import it from the cloud, online, or internal mail. Then click Edit.
3
Edit lendingxpressswbccom secure fileviewerfema form. Text may be added and replaced, new objects can be included, pages can be rearranged, watermarks and page numbers can be added, and so on. When you're done editing, click Done and then go to the Documents tab to combine, divide, lock, or unlock the file.
4
Get your file. Select your file from the documents list and pick your export method. You may save it as a PDF, email it, or upload it to the cloud.
pdfFiller makes dealing with documents a breeze. Create an account to find out!
Uncompromising security for your PDF editing and eSignature needs
Your private information is safe with pdfFiller. We employ end-to-end encryption, secure cloud storage, and advanced access control to protect your documents and maintain regulatory compliance.
How to fill out lendingxpressswbccom secure fileviewerfema form
How to fill out lendingxpressswbccom secure fileviewerfema form
01
To fill out the lendingxpressswbccom secure fileviewerfema form, follow these steps:
02
Access the lendingxpressswbccom secure fileviewerfema website.
03
Register or log in to your account.
04
Once logged in, locate the form on the website.
05
Read the instructions provided on the form carefully.
06
Fill in the required personal information, such as your name, address, and contact details.
07
Provide any additional details or documents as requested.
08
Double-check the form to ensure all information is accurate and complete.
09
Submit the form electronically or follow the specified submission method.
10
Wait for confirmation or any further instructions.
11
Keep a copy of the submitted form for your records.
Who needs lendingxpressswbccom secure fileviewerfema form?
01
People who require lendingxpressswbccom secure fileviewerfema form include individuals or organizations who need to securely view and access specific files or documents related to lending or financial matters.
02
This form may be necessary for borrowers, lenders, financial institutions, or any party involved in the lending process who needs to share or access confidential information or documents securely.
Fill
form
: Try Risk Free
For pdfFiller’s FAQs
Below is a list of the most common customer questions. If you can’t find an answer to your question, please don’t hesitate to reach out to us.
How do I execute lendingxpressswbccom secure fileviewerfema form online?
pdfFiller has made it easy to fill out and sign lendingxpressswbccom secure fileviewerfema form. You can use the solution to change and move PDF content, add fields that can be filled in, and sign the document electronically. Start a free trial of pdfFiller, the best tool for editing and filling in documents.
Can I create an electronic signature for signing my lendingxpressswbccom secure fileviewerfema form in Gmail?
You can easily create your eSignature with pdfFiller and then eSign your lendingxpressswbccom secure fileviewerfema form directly from your inbox with the help of pdfFiller’s add-on for Gmail. Please note that you must register for an account in order to save your signatures and signed documents.
How do I edit lendingxpressswbccom secure fileviewerfema form on an iOS device?
No, you can't. With the pdfFiller app for iOS, you can edit, share, and sign lendingxpressswbccom secure fileviewerfema form right away. At the Apple Store, you can buy and install it in a matter of seconds. The app is free, but you will need to set up an account if you want to buy a subscription or start a free trial.
What is lendingxpressswbccom secure fileviewerfema form?
The lendingxpressswbccom secure fileviewerfema form is a document used for reporting financial information to FEMA.
Who is required to file lendingxpressswbccom secure fileviewerfema form?
Entities and individuals who have received funds or assistance from FEMA may be required to file the lendingxpressswbccom secure fileviewerfema form.
How to fill out lendingxpressswbccom secure fileviewerfema form?
The lendingxpressswbccom secure fileviewerfema form can be filled out online on the lendingxpressswbccom website or submitted via mail with the required information.
What is the purpose of lendingxpressswbccom secure fileviewerfema form?
The purpose of the lendingxpressswbccom secure fileviewerfema form is to provide FEMA and other agencies with accurate financial information for record-keeping and accountability purposes.
What information must be reported on lendingxpressswbccom secure fileviewerfema form?
The lendingxpressswbccom secure fileviewerfema form typically requires reporting of funds received, expenses incurred, and other financial details related to FEMA assistance.
Fill out your lendingxpressswbccom secure fileviewerfema form online with pdfFiller!
pdfFiller is an end-to-end solution for managing, creating, and editing documents and forms in the cloud. Save time and hassle by preparing your tax forms online.
Lendingxpressswbccom Secure Fileviewerfema Form is not the form you're looking for?Search for another form here.
Relevant keywords
Related Forms
If you believe that this page should be taken down, please follow our DMCA take down process
here
.
This form may include fields for payment information. Data entered in these fields is not covered by PCI DSS compliance.