
Get the free Online Inland wetlands permit application - Town ...
Show details
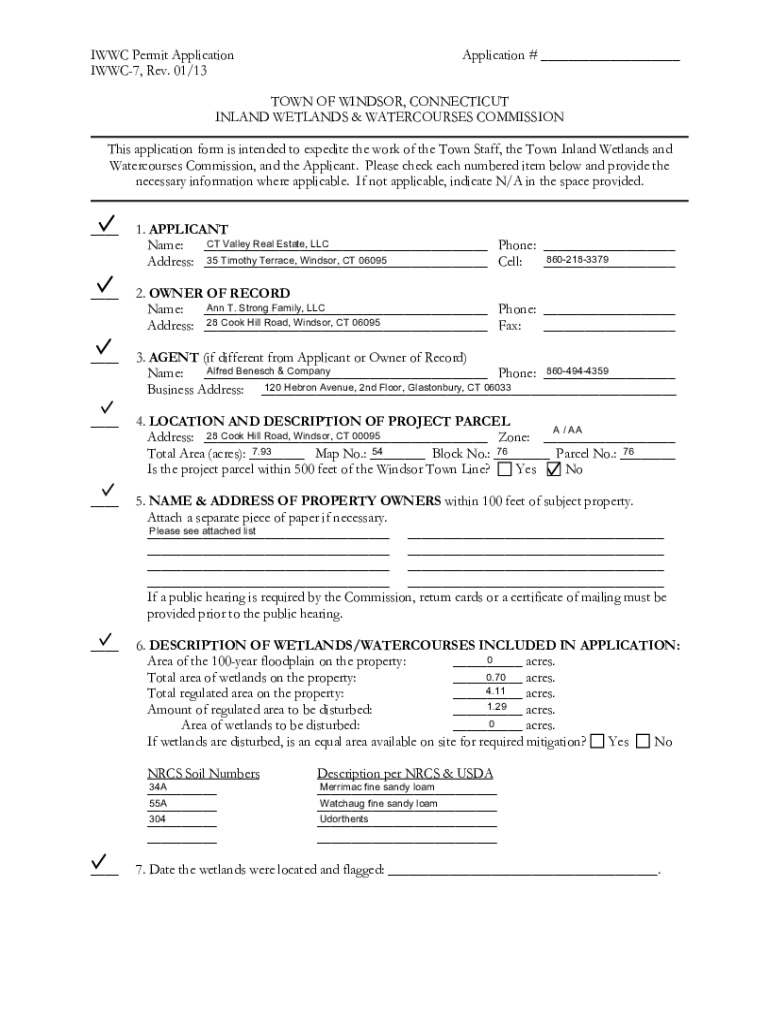
IWC Permit Application IWWC7, Rev. 01/13Application # ___TOWN OF WINDSOR, CONNECTICUT INLAND WETLANDS & WATERCOURSES COMMISSION This application form is intended to expedite the work of the Town Staff,
We are not affiliated with any brand or entity on this form
Get, Create, Make and Sign online inland wetlands permit

Edit your online inland wetlands permit form online
Type text, complete fillable fields, insert images, highlight or blackout data for discretion, add comments, and more.

Add your legally-binding signature
Draw or type your signature, upload a signature image, or capture it with your digital camera.

Share your form instantly
Email, fax, or share your online inland wetlands permit form via URL. You can also download, print, or export forms to your preferred cloud storage service.
Editing online inland wetlands permit online
In order to make advantage of the professional PDF editor, follow these steps below:
1
Register the account. Begin by clicking Start Free Trial and create a profile if you are a new user.
2
Prepare a file. Use the Add New button. Then upload your file to the system from your device, importing it from internal mail, the cloud, or by adding its URL.
3
Edit online inland wetlands permit. Rearrange and rotate pages, insert new and alter existing texts, add new objects, and take advantage of other helpful tools. Click Done to apply changes and return to your Dashboard. Go to the Documents tab to access merging, splitting, locking, or unlocking functions.
4
Save your file. Select it from your list of records. Then, move your cursor to the right toolbar and choose one of the exporting options. You can save it in multiple formats, download it as a PDF, send it by email, or store it in the cloud, among other things.
pdfFiller makes working with documents easier than you could ever imagine. Try it for yourself by creating an account!
Uncompromising security for your PDF editing and eSignature needs
Your private information is safe with pdfFiller. We employ end-to-end encryption, secure cloud storage, and advanced access control to protect your documents and maintain regulatory compliance.
How to fill out online inland wetlands permit

How to fill out online inland wetlands permit
01
To fill out an online inland wetlands permit, you will need to follow these steps:
02
Access the online platform for obtaining inland wetlands permits.
03
Create an account or login if you already have one.
04
Select the option to apply for an inland wetlands permit.
05
Provide information about the specific location and project details.
06
Upload any relevant documents or plans that are required.
07
Pay the applicable fees.
08
Review the information provided and submit the application.
09
Wait for the permit application to be reviewed and approved.
10
Once approved, you will receive the permit via email or through the online platform.
Who needs online inland wetlands permit?
01
Anyone who plans to undertake activities that may impact inland wetlands and their associated resources needs to obtain an online inland wetlands permit. This includes individuals, organizations, and businesses who want to perform activities such as construction, excavation, filling, drainage, or any other alteration that may affect the wetlands. It is important to check with the local regulatory authority to determine if a permit is required for the specific project.
Fill
form
: Try Risk Free
For pdfFiller’s FAQs
Below is a list of the most common customer questions. If you can’t find an answer to your question, please don’t hesitate to reach out to us.
How do I execute online inland wetlands permit online?
Easy online online inland wetlands permit completion using pdfFiller. Also, it allows you to legally eSign your form and change original PDF material. Create a free account and manage documents online.
How do I edit online inland wetlands permit online?
The editing procedure is simple with pdfFiller. Open your online inland wetlands permit in the editor, which is quite user-friendly. You may use it to blackout, redact, write, and erase text, add photos, draw arrows and lines, set sticky notes and text boxes, and much more.
How do I edit online inland wetlands permit straight from my smartphone?
Using pdfFiller's mobile-native applications for iOS and Android is the simplest method to edit documents on a mobile device. You may get them from the Apple App Store and Google Play, respectively. More information on the apps may be found here. Install the program and log in to begin editing online inland wetlands permit.
What is online inland wetlands permit?
An online inland wetlands permit is a digital form used for obtaining permission to conduct activities that may impact wetlands in a specific area.
Who is required to file online inland wetlands permit?
Anyone planning to carry out activities that may impact wetlands is required to file an online inland wetlands permit.
How to fill out online inland wetlands permit?
To fill out an online inland wetlands permit, applicants need to provide details about the proposed activities, location, and potential impacts on wetlands.
What is the purpose of online inland wetlands permit?
The purpose of an online inland wetlands permit is to ensure that activities in or near wetlands are conducted in a way that minimizes negative impacts on the environment.
What information must be reported on online inland wetlands permit?
Information such as project details, wetland boundaries, mitigation measures, and potential impacts on wetlands must be reported on an online inland wetlands permit.
Fill out your online inland wetlands permit online with pdfFiller!
pdfFiller is an end-to-end solution for managing, creating, and editing documents and forms in the cloud. Save time and hassle by preparing your tax forms online.

Online Inland Wetlands Permit is not the form you're looking for?Search for another form here.
Relevant keywords
Related Forms
If you believe that this page should be taken down, please follow our DMCA take down process
here
.
This form may include fields for payment information. Data entered in these fields is not covered by PCI DSS compliance.