
Get the free toledo.oh.govgovernmentcity-councilCity of ToledoCity Council
Show details
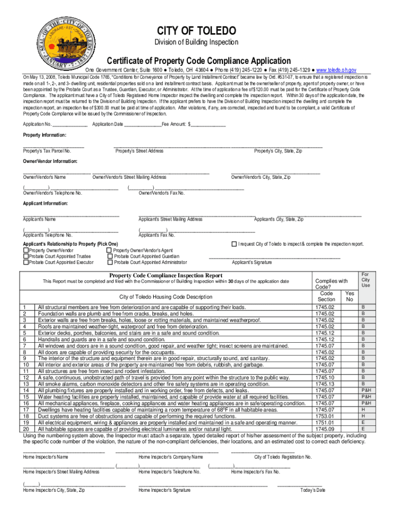
CITY OF TOLEDODivision of Building InspectionCertificate of Property Code Compliance Application One Government Center, Suite 1600 Toledo, OH 43604 Phone (419× 2451220 Fax (419× 2451329 www.toledo.oh.gov
We are not affiliated with any brand or entity on this form
Get, Create, Make and Sign toledoohgovgovernmentcity-councilcity of toledocity council

Edit your toledoohgovgovernmentcity-councilcity of toledocity council form online
Type text, complete fillable fields, insert images, highlight or blackout data for discretion, add comments, and more.

Add your legally-binding signature
Draw or type your signature, upload a signature image, or capture it with your digital camera.

Share your form instantly
Email, fax, or share your toledoohgovgovernmentcity-councilcity of toledocity council form via URL. You can also download, print, or export forms to your preferred cloud storage service.
Editing toledoohgovgovernmentcity-councilcity of toledocity council online
In order to make advantage of the professional PDF editor, follow these steps:
1
Log in. Click Start Free Trial and create a profile if necessary.
2
Prepare a file. Use the Add New button. Then upload your file to the system from your device, importing it from internal mail, the cloud, or by adding its URL.
3
Edit toledoohgovgovernmentcity-councilcity of toledocity council. Replace text, adding objects, rearranging pages, and more. Then select the Documents tab to combine, divide, lock or unlock the file.
4
Save your file. Select it from your list of records. Then, move your cursor to the right toolbar and choose one of the exporting options. You can save it in multiple formats, download it as a PDF, send it by email, or store it in the cloud, among other things.
With pdfFiller, it's always easy to work with documents. Try it!
Uncompromising security for your PDF editing and eSignature needs
Your private information is safe with pdfFiller. We employ end-to-end encryption, secure cloud storage, and advanced access control to protect your documents and maintain regulatory compliance.
How to fill out toledoohgovgovernmentcity-councilcity of toledocity council

How to fill out toledoohgovgovernmentcity-councilcity of toledocity council
01
Gather all necessary information such as your personal details, contact information, and any relevant documents or forms required by the Toledo City Council.
02
Visit the official website of the Toledo City Council or their designated online portal for filling out the application.
03
Follow the instructions provided on the website or portal to access the appropriate forms or sections for filling out your information.
04
Fill in the requested information accurately and completely, ensuring that all required fields are filled in.
05
Double-check your entries for any errors or missing information before submitting the application.
06
If applicable, attach any supporting documents as requested or specified by the Toledo City Council.
07
Review the completed application to ensure its accuracy and completeness once again.
08
Submit the application either online through the portal or by following the specified submission instructions on the website.
09
Keep a copy of the submitted application for your records.
10
Wait for a response from the Toledo City Council regarding the status or next steps of your application.
Who needs toledoohgovgovernmentcity-councilcity of toledocity council?
01
Anyone who resides in or has a vested interest in the City of Toledo and wants to have a say in local governance and decision-making processes.
02
People who want to engage with community leaders, participate in public meetings, and have their voices heard on matters affecting the city.
03
Individuals or organizations who are seeking support or assistance from the Toledo City Council for various initiatives, projects, or concerns.
04
Residents who wish to address specific issues or concerns with their local council representatives and seek resolutions or actions.
05
Business owners or stakeholders who want to influence policies, regulations, or development plans that can impact the city and its economy.
Fill
form
: Try Risk Free
For pdfFiller’s FAQs
Below is a list of the most common customer questions. If you can’t find an answer to your question, please don’t hesitate to reach out to us.
How do I modify my toledoohgovgovernmentcity-councilcity of toledocity council in Gmail?
toledoohgovgovernmentcity-councilcity of toledocity council and other documents can be changed, filled out, and signed right in your Gmail inbox. You can use pdfFiller's add-on to do this, as well as other things. When you go to Google Workspace, you can find pdfFiller for Gmail. You should use the time you spend dealing with your documents and eSignatures for more important things, like going to the gym or going to the dentist.
How can I edit toledoohgovgovernmentcity-councilcity of toledocity council from Google Drive?
It is possible to significantly enhance your document management and form preparation by combining pdfFiller with Google Docs. This will allow you to generate papers, amend them, and sign them straight from your Google Drive. Use the add-on to convert your toledoohgovgovernmentcity-councilcity of toledocity council into a dynamic fillable form that can be managed and signed using any internet-connected device.
How can I send toledoohgovgovernmentcity-councilcity of toledocity council for eSignature?
When your toledoohgovgovernmentcity-councilcity of toledocity council is finished, send it to recipients securely and gather eSignatures with pdfFiller. You may email, text, fax, mail, or notarize a PDF straight from your account. Create an account today to test it.
What is toledoohgovgovernmentcity-councilcity of toledocity council?
The Toledo City Council is the legislative branch of the city government in Toledo, Ohio.
Who is required to file toledoohgovgovernmentcity-councilcity of toledocity council?
Members of the Toledo City Council are required to file financial disclosure forms.
How to fill out toledoohgovgovernmentcity-councilcity of toledocity council?
To fill out the Toledo City Council financial disclosure forms, individuals must provide detailed information about their financial interests and transactions.
What is the purpose of toledoohgovgovernmentcity-councilcity of toledocity council?
The purpose of the Toledo City Council financial disclosure forms is to promote transparency and accountability in government.
What information must be reported on toledoohgovgovernmentcity-councilcity of toledocity council?
Individuals must report their sources of income, investments, gifts, and other financial interests.
Fill out your toledoohgovgovernmentcity-councilcity of toledocity council online with pdfFiller!
pdfFiller is an end-to-end solution for managing, creating, and editing documents and forms in the cloud. Save time and hassle by preparing your tax forms online.

Toledoohgovgovernmentcity-Councilcity Of Toledocity Council is not the form you're looking for?Search for another form here.
Relevant keywords
Related Forms
If you believe that this page should be taken down, please follow our DMCA take down process
here
.
This form may include fields for payment information. Data entered in these fields is not covered by PCI DSS compliance.