
Get the free publicnotices.finance-commerce.comsearchdetailBusiness, Inspections, Housing &am...
Show details
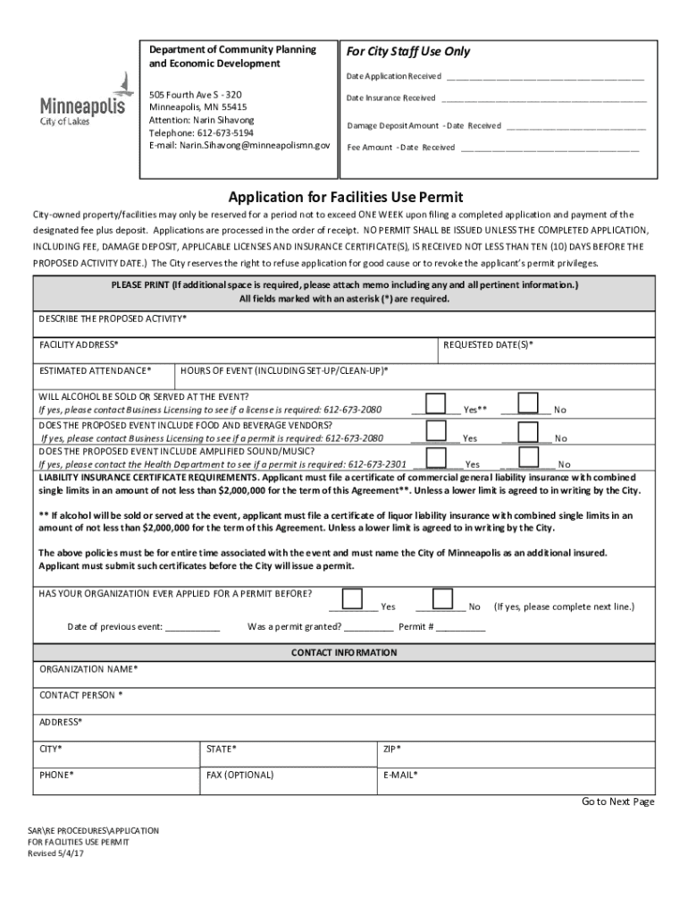
Department of Community Planning and Economic Development City Staff Use Only505 Fourth Ave S 320 Minneapolis, MN 55415 Attention: Marin Shaving Telephone: 6126735194 Email: Narin.Sihavong@minneapolismn.govDate
We are not affiliated with any brand or entity on this form
Get, Create, Make and Sign publicnoticesfinance-commercecomsearchdetailbusiness inspections housing ampam

Edit your publicnoticesfinance-commercecomsearchdetailbusiness inspections housing ampam form online
Type text, complete fillable fields, insert images, highlight or blackout data for discretion, add comments, and more.

Add your legally-binding signature
Draw or type your signature, upload a signature image, or capture it with your digital camera.

Share your form instantly
Email, fax, or share your publicnoticesfinance-commercecomsearchdetailbusiness inspections housing ampam form via URL. You can also download, print, or export forms to your preferred cloud storage service.
Editing publicnoticesfinance-commercecomsearchdetailbusiness inspections housing ampam online
Follow the guidelines below to take advantage of the professional PDF editor:
1
Log in to account. Start Free Trial and register a profile if you don't have one yet.
2
Simply add a document. Select Add New from your Dashboard and import a file into the system by uploading it from your device or importing it via the cloud, online, or internal mail. Then click Begin editing.
3
Edit publicnoticesfinance-commercecomsearchdetailbusiness inspections housing ampam. Rearrange and rotate pages, add new and changed texts, add new objects, and use other useful tools. When you're done, click Done. You can use the Documents tab to merge, split, lock, or unlock your files.
4
Get your file. Select the name of your file in the docs list and choose your preferred exporting method. You can download it as a PDF, save it in another format, send it by email, or transfer it to the cloud.
pdfFiller makes working with documents easier than you could ever imagine. Register for an account and see for yourself!
Uncompromising security for your PDF editing and eSignature needs
Your private information is safe with pdfFiller. We employ end-to-end encryption, secure cloud storage, and advanced access control to protect your documents and maintain regulatory compliance.
How to fill out publicnoticesfinance-commercecomsearchdetailbusiness inspections housing ampam

How to fill out publicnoticesfinance-commercecomsearchdetailbusiness inspections housing ampamp
01
To fill out publicnoticesfinance-commercecomsearchdetailbusiness inspections housing ampamp, follow these steps:
02
Open the website publicnoticesfinance-commercecomsearchdetailbusiness inspections housing ampamp.
03
Locate the search form or search bar on the website.
04
Fill out the required information such as the name or address of the business or property you want to inspect.
05
Double-check the information you provided for accuracy.
06
Click on the submit or search button to initiate the search.
07
Wait for the search results to load.
08
Review the search results and find the relevant business inspection or housing information.
09
If needed, click on the specific result to access detailed information.
10
Take note of any important details or contact information for further action or reference.
11
Repeat the process if you need to search for additional business inspections or housing information.
Who needs publicnoticesfinance-commercecomsearchdetailbusiness inspections housing ampamp?
01
Publicnoticesfinance-commercecomsearchdetailbusiness inspections housing ampamp can be useful for various individuals or entities, including:
02
- Potential homebuyers or renters who want to research the inspection history or code compliance of a property.
03
- Real estate agents or brokers who need to gather relevant information about a property for their clients.
04
- Local government officials or agencies responsible for enforcing housing or business inspection regulations.
05
- Business owners or managers who want to ensure compliance with inspection requirements.
06
- Researchers or journalists investigating housing or business inspection practices.
Fill
form
: Try Risk Free
For pdfFiller’s FAQs
Below is a list of the most common customer questions. If you can’t find an answer to your question, please don’t hesitate to reach out to us.
How can I edit publicnoticesfinance-commercecomsearchdetailbusiness inspections housing ampam from Google Drive?
You can quickly improve your document management and form preparation by integrating pdfFiller with Google Docs so that you can create, edit and sign documents directly from your Google Drive. The add-on enables you to transform your publicnoticesfinance-commercecomsearchdetailbusiness inspections housing ampam into a dynamic fillable form that you can manage and eSign from any internet-connected device.
Can I create an eSignature for the publicnoticesfinance-commercecomsearchdetailbusiness inspections housing ampam in Gmail?
When you use pdfFiller's add-on for Gmail, you can add or type a signature. You can also draw a signature. pdfFiller lets you eSign your publicnoticesfinance-commercecomsearchdetailbusiness inspections housing ampam and other documents right from your email. In order to keep signed documents and your own signatures, you need to sign up for an account.
How do I fill out publicnoticesfinance-commercecomsearchdetailbusiness inspections housing ampam on an Android device?
Use the pdfFiller app for Android to finish your publicnoticesfinance-commercecomsearchdetailbusiness inspections housing ampam. The application lets you do all the things you need to do with documents, like add, edit, and remove text, sign, annotate, and more. There is nothing else you need except your smartphone and an internet connection to do this.
What is publicnoticesfinance-commercecomsearchdetailbusiness inspections housing ampamp?
Publicnoticesfinance-commercecomsearchdetailbusiness inspections housing ampamp is a platform for accessing information related to business inspections and housing.
Who is required to file publicnoticesfinance-commercecomsearchdetailbusiness inspections housing ampamp?
Business owners and landlords are required to file publicnoticesfinance-commercecomsearchdetailbusiness inspections housing ampamp.
How to fill out publicnoticesfinance-commercecomsearchdetailbusiness inspections housing ampamp?
To fill out publicnoticesfinance-commercecomsearchdetailbusiness inspections housing ampamp, one must provide detailed information about the business or property being inspected.
What is the purpose of publicnoticesfinance-commercecomsearchdetailbusiness inspections housing ampamp?
The purpose of publicnoticesfinance-commercecomsearchdetailbusiness inspections housing ampamp is to ensure transparency and compliance with regulations regarding business and housing inspections.
What information must be reported on publicnoticesfinance-commercecomsearchdetailbusiness inspections housing ampamp?
Information such as the date of inspection, findings, corrections made, and compliance status must be reported on publicnoticesfinance-commercecomsearchdetailbusiness inspections housing ampamp.
Fill out your publicnoticesfinance-commercecomsearchdetailbusiness inspections housing ampam online with pdfFiller!
pdfFiller is an end-to-end solution for managing, creating, and editing documents and forms in the cloud. Save time and hassle by preparing your tax forms online.

Publicnoticesfinance-Commercecomsearchdetailbusiness Inspections Housing Ampam is not the form you're looking for?Search for another form here.
Relevant keywords
Related Forms
If you believe that this page should be taken down, please follow our DMCA take down process
here
.
This form may include fields for payment information. Data entered in these fields is not covered by PCI DSS compliance.