Get the free Street address: Postal code: Historic Name: - Philadelphia
Show details
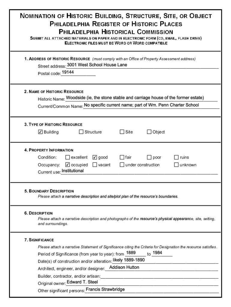
1. ADDRESS OF HISTORIC RESOURCE (must comply with an Office of Property Assessment address) Street address:___ Postal code:___2. NAME OF HISTORIC RESOURCE Historic Name:___ Current/Common Name:___3.
We are not affiliated with any brand or entity on this form
Get, Create, Make and Sign street address postal code
Edit your street address postal code form online
Type text, complete fillable fields, insert images, highlight or blackout data for discretion, add comments, and more.
Add your legally-binding signature
Draw or type your signature, upload a signature image, or capture it with your digital camera.
Share your form instantly
Email, fax, or share your street address postal code form via URL. You can also download, print, or export forms to your preferred cloud storage service.
Editing street address postal code online
To use the professional PDF editor, follow these steps below:
1
Log in to your account. Start Free Trial and register a profile if you don't have one yet.
2
Prepare a file. Use the Add New button to start a new project. Then, using your device, upload your file to the system by importing it from internal mail, the cloud, or adding its URL.
3
Edit street address postal code. Add and change text, add new objects, move pages, add watermarks and page numbers, and more. Then click Done when you're done editing and go to the Documents tab to merge or split the file. If you want to lock or unlock the file, click the lock or unlock button.
4
Save your file. Select it from your list of records. Then, move your cursor to the right toolbar and choose one of the exporting options. You can save it in multiple formats, download it as a PDF, send it by email, or store it in the cloud, among other things.
It's easier to work with documents with pdfFiller than you could have ever thought. You may try it out for yourself by signing up for an account.
Uncompromising security for your PDF editing and eSignature needs
Your private information is safe with pdfFiller. We employ end-to-end encryption, secure cloud storage, and advanced access control to protect your documents and maintain regulatory compliance.
How to fill out street address postal code
How to fill out street address postal code
01
Start by writing your house number or building number followed by the street name.
02
Include any additional information like apartment number or floor level if applicable.
03
Write the city or town name followed by the state or province name.
04
Include the postal code at the end of the address.
Who needs street address postal code?
01
Individuals and businesses who are sending mail or packages through postal services.
Fill
form
: Try Risk Free
For pdfFiller’s FAQs
Below is a list of the most common customer questions. If you can’t find an answer to your question, please don’t hesitate to reach out to us.
How do I execute street address postal code online?
pdfFiller makes it easy to finish and sign street address postal code online. It lets you make changes to original PDF content, highlight, black out, erase, and write text anywhere on a page, legally eSign your form, and more, all from one place. Create a free account and use the web to keep track of professional documents.
Can I create an eSignature for the street address postal code in Gmail?
With pdfFiller's add-on, you may upload, type, or draw a signature in Gmail. You can eSign your street address postal code and other papers directly in your mailbox with pdfFiller. To preserve signed papers and your personal signatures, create an account.
How can I edit street address postal code on a smartphone?
You can easily do so with pdfFiller's apps for iOS and Android devices, which can be found at the Apple Store and the Google Play Store, respectively. You can use them to fill out PDFs. We have a website where you can get the app, but you can also get it there. When you install the app, log in, and start editing street address postal code, you can start right away.
What is street address postal code?
The street address postal code is a combination of letters and/or numbers included in a mailing address to facilitate the sorting and delivering of mail.
Who is required to file street address postal code?
Anyone sending mail or packages through the postal system is required to include a street address postal code on the mailing address.
How to fill out street address postal code?
To fill out a street address postal code, simply include the correct combination of letters and/or numbers that corresponds to the specific area or location.
What is the purpose of street address postal code?
The purpose of a street address postal code is to ensure accurate and efficient delivery of mail and packages by helping to identify the specific geographic area associated with an address.
What information must be reported on street address postal code?
The street address postal code typically includes a series of characters that are assigned to a specific location or area for the purpose of sorting and delivering mail.
Fill out your street address postal code online with pdfFiller!
pdfFiller is an end-to-end solution for managing, creating, and editing documents and forms in the cloud. Save time and hassle by preparing your tax forms online.
Street Address Postal Code is not the form you're looking for?Search for another form here.
Relevant keywords
Related Forms
If you believe that this page should be taken down, please follow our DMCA take down process
here
.
This form may include fields for payment information. Data entered in these fields is not covered by PCI DSS compliance.