Get the free Corporation Licenses - DRE - California Department of Real Estate
Show details
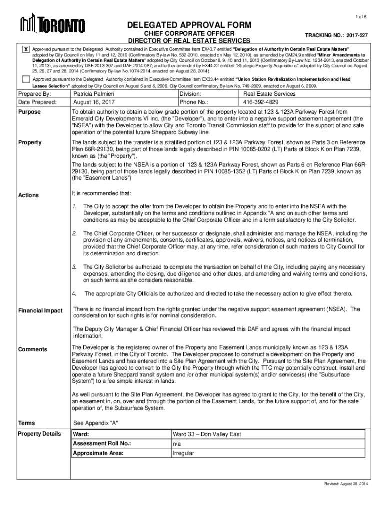
1 of 6DELEGATED APPROVAL FORM CHIEF CORPORATE OFFICER DIRECTOR OF REAL ESTATE SERVICESTRACKING NO.: 2017227X Approved pursuant to the Delegated Authority contained in Executive Committee Item EX43.7
We are not affiliated with any brand or entity on this form
Get, Create, Make and Sign corporation licenses - dre
Edit your corporation licenses - dre form online
Type text, complete fillable fields, insert images, highlight or blackout data for discretion, add comments, and more.
Add your legally-binding signature
Draw or type your signature, upload a signature image, or capture it with your digital camera.
Share your form instantly
Email, fax, or share your corporation licenses - dre form via URL. You can also download, print, or export forms to your preferred cloud storage service.
How to edit corporation licenses - dre online
To use the services of a skilled PDF editor, follow these steps:
1
Register the account. Begin by clicking Start Free Trial and create a profile if you are a new user.
2
Simply add a document. Select Add New from your Dashboard and import a file into the system by uploading it from your device or importing it via the cloud, online, or internal mail. Then click Begin editing.
3
Edit corporation licenses - dre. Add and replace text, insert new objects, rearrange pages, add watermarks and page numbers, and more. Click Done when you are finished editing and go to the Documents tab to merge, split, lock or unlock the file.
4
Save your file. Select it from your list of records. Then, move your cursor to the right toolbar and choose one of the exporting options. You can save it in multiple formats, download it as a PDF, send it by email, or store it in the cloud, among other things.
With pdfFiller, it's always easy to work with documents. Try it out!
Uncompromising security for your PDF editing and eSignature needs
Your private information is safe with pdfFiller. We employ end-to-end encryption, secure cloud storage, and advanced access control to protect your documents and maintain regulatory compliance.
How to fill out corporation licenses - dre
How to fill out corporation licenses - dre
01
Obtain the appropriate forms from the Department of Real Estate (DRE) website.
02
Fill out the forms with accurate and up-to-date information about the corporation, its owners, and its officers.
03
Pay the required filing fee to the DRE.
04
Submit the completed forms and fee to the DRE either online or by mail.
05
Wait for confirmation from the DRE that the corporation license has been approved.
Who needs corporation licenses - dre?
01
Real estate brokers and salespersons who operate their business as a corporation need to obtain corporation licenses from the DRE.
Fill
form
: Try Risk Free
For pdfFiller’s FAQs
Below is a list of the most common customer questions. If you can’t find an answer to your question, please don’t hesitate to reach out to us.
How can I edit corporation licenses - dre from Google Drive?
It is possible to significantly enhance your document management and form preparation by combining pdfFiller with Google Docs. This will allow you to generate papers, amend them, and sign them straight from your Google Drive. Use the add-on to convert your corporation licenses - dre into a dynamic fillable form that can be managed and signed using any internet-connected device.
How do I complete corporation licenses - dre on an iOS device?
Install the pdfFiller app on your iOS device to fill out papers. Create an account or log in if you already have one. After registering, upload your corporation licenses - dre. You may now use pdfFiller's advanced features like adding fillable fields and eSigning documents from any device, anywhere.
Can I edit corporation licenses - dre on an Android device?
You can make any changes to PDF files, such as corporation licenses - dre, with the help of the pdfFiller mobile app for Android. Edit, sign, and send documents right from your mobile device. Install the app and streamline your document management wherever you are.
What is corporation licenses - dre?
Corporation licenses - dre refer to the licenses required for corporations in the Department of Real Estate.
Who is required to file corporation licenses - dre?
All corporations operating in the real estate industry are required to file corporation licenses with the Department of Real Estate.
How to fill out corporation licenses - dre?
To fill out corporation licenses - dre, corporations need to provide information such as company name, address, officers, and license numbers.
What is the purpose of corporation licenses - dre?
The purpose of corporation licenses - dre is to ensure that corporations operating in the real estate industry are properly registered and compliant with regulations.
What information must be reported on corporation licenses - dre?
On corporation licenses - dre, corporations must report information about their company structure, ownership, and licensed activities.
Fill out your corporation licenses - dre online with pdfFiller!
pdfFiller is an end-to-end solution for managing, creating, and editing documents and forms in the cloud. Save time and hassle by preparing your tax forms online.
Corporation Licenses - Dre is not the form you're looking for?Search for another form here.
Relevant keywords
Related Forms
If you believe that this page should be taken down, please follow our DMCA take down process
here
.
This form may include fields for payment information. Data entered in these fields is not covered by PCI DSS compliance.