Get the free Uniform Mitigation Verification Inspection Form...
Show details
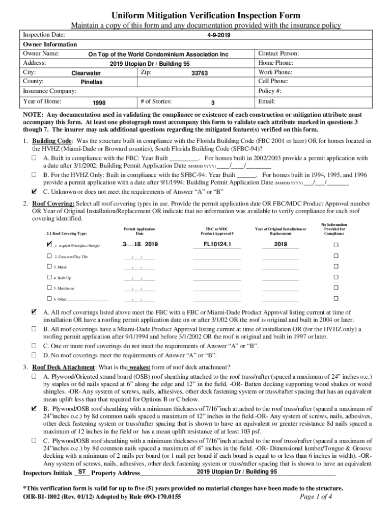
Uniform Mitigation Verification Inspection Form Maintain a copy of this form and any documentation provided with the insurance policy Inspection Date:492019Owner Information Owner Name: On Top of
We are not affiliated with any brand or entity on this form
Get, Create, Make and Sign uniform mitigation verification inspection
Edit your uniform mitigation verification inspection form online
Type text, complete fillable fields, insert images, highlight or blackout data for discretion, add comments, and more.
Add your legally-binding signature
Draw or type your signature, upload a signature image, or capture it with your digital camera.
Share your form instantly
Email, fax, or share your uniform mitigation verification inspection form via URL. You can also download, print, or export forms to your preferred cloud storage service.
How to edit uniform mitigation verification inspection online
Here are the steps you need to follow to get started with our professional PDF editor:
1
Sign into your account. If you don't have a profile yet, click Start Free Trial and sign up for one.
2
Prepare a file. Use the Add New button to start a new project. Then, using your device, upload your file to the system by importing it from internal mail, the cloud, or adding its URL.
3
Edit uniform mitigation verification inspection. Rearrange and rotate pages, insert new and alter existing texts, add new objects, and take advantage of other helpful tools. Click Done to apply changes and return to your Dashboard. Go to the Documents tab to access merging, splitting, locking, or unlocking functions.
4
Get your file. When you find your file in the docs list, click on its name and choose how you want to save it. To get the PDF, you can save it, send an email with it, or move it to the cloud.
With pdfFiller, dealing with documents is always straightforward. Try it now!
Uncompromising security for your PDF editing and eSignature needs
Your private information is safe with pdfFiller. We employ end-to-end encryption, secure cloud storage, and advanced access control to protect your documents and maintain regulatory compliance.
How to fill out uniform mitigation verification inspection
How to fill out uniform mitigation verification inspection
01
Begin by completing the general information section of the form, including the address of the property being inspected.
02
Provide information about the building type, roof coverings, and roof deck attachment.
03
Answer questions regarding roof geometry, secondary water barrier, and opening protection.
04
Fill out the form with details about the roof-to-wall connections, wind resistive features, and any additional comments.
05
Once all sections are completed, sign and date the form to certify the accuracy of the information provided.
Who needs uniform mitigation verification inspection?
01
Homeowners in regions prone to natural disasters such as hurricanes, tornadoes, or high winds are often required to undergo uniform mitigation verification inspections.
02
Insurance companies may also request these inspections to determine the level of risk associated with providing coverage for a property.
Fill
form
: Try Risk Free
For pdfFiller’s FAQs
Below is a list of the most common customer questions. If you can’t find an answer to your question, please don’t hesitate to reach out to us.
Where do I find uniform mitigation verification inspection?
It’s easy with pdfFiller, a comprehensive online solution for professional document management. Access our extensive library of online forms (over 25M fillable forms are available) and locate the uniform mitigation verification inspection in a matter of seconds. Open it right away and start customizing it using advanced editing features.
Can I edit uniform mitigation verification inspection on an Android device?
With the pdfFiller Android app, you can edit, sign, and share uniform mitigation verification inspection on your mobile device from any place. All you need is an internet connection to do this. Keep your documents in order from anywhere with the help of the app!
How do I fill out uniform mitigation verification inspection on an Android device?
Use the pdfFiller app for Android to finish your uniform mitigation verification inspection. The application lets you do all the things you need to do with documents, like add, edit, and remove text, sign, annotate, and more. There is nothing else you need except your smartphone and an internet connection to do this.
What is uniform mitigation verification inspection?
Uniform Mitigation Verification Inspection is a form used to verify the storm-resistant features of a property.
Who is required to file uniform mitigation verification inspection?
Property owners who have made improvements to their property to make it more storm-resistant are required to file a Uniform Mitigation Verification Inspection.
How to fill out uniform mitigation verification inspection?
The form can be filled out by a qualified inspector who will inspect the storm-resistant features of the property and report their findings.
What is the purpose of uniform mitigation verification inspection?
The purpose of the inspection is to verify that the property has the necessary storm-resistant features to potentially lower insurance premiums.
What information must be reported on uniform mitigation verification inspection?
The inspection must report on the types of storm-resistant features present on the property, such as roof straps or hurricane shutters.
Fill out your uniform mitigation verification inspection online with pdfFiller!
pdfFiller is an end-to-end solution for managing, creating, and editing documents and forms in the cloud. Save time and hassle by preparing your tax forms online.
Uniform Mitigation Verification Inspection is not the form you're looking for?Search for another form here.
Relevant keywords
Related Forms
If you believe that this page should be taken down, please follow our DMCA take down process
here
.
This form may include fields for payment information. Data entered in these fields is not covered by PCI DSS compliance.