Form preview

Get the free HCC Surety Online - Surety Bond Claims

Get Form
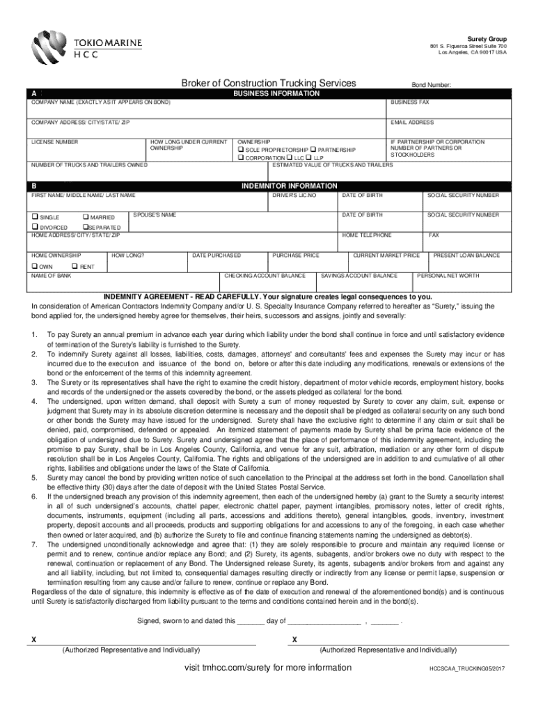
Surety Group801 S. Figueroa Street Suite 700 Los Angeles, CA 90017 Broker of Construction Trucking Services Bond Number:BUSINESS INFORMATIONCOMPANY NAME (EXACTLY AS IT APPEARS ON BOND)BUSINESS ACCOMPANY
We are not affiliated with any brand or entity on this form

Get, Create, Make and Sign hcc surety online

Edit
Edit your hcc surety online form online
Type text, complete fillable fields, insert images, highlight or blackout data for discretion, add comments, and more.
Add
Add your legally-binding signature
Draw or type your signature, upload a signature image, or capture it with your digital camera.
Share
Share your form instantly
Email, fax, or share your hcc surety online form via URL. You can also download, print, or export forms to your preferred cloud storage service.

Editing hcc surety online online

9.5
Ease of Setup
pdfFiller User Ratings on G2
9.0
Ease of Use
pdfFiller User Ratings on G2
Use the instructions below to start using our professional PDF editor:
1
Register the account. Begin by clicking Start Free Trial and create a profile if you are a new user.
2
Simply add a document. Select Add New from your Dashboard and import a file into the system by uploading it from your device or importing it via the cloud, online, or internal mail. Then click Begin editing.
3
Edit hcc surety online. Rearrange and rotate pages, add and edit text, and use additional tools. To save changes and return to your Dashboard, click Done. The Documents tab allows you to merge, divide, lock, or unlock files.
4
Save your file. Select it from your records list. Then, click the right toolbar and select one of the various exporting options: save in numerous formats, download as PDF, email, or cloud.
pdfFiller makes working with documents easier than you could ever imagine. Register for an account and see for yourself!

Uncompromising security for your PDF editing and eSignature needs

Your private information is safe with pdfFiller. We employ end-to-end encryption, secure cloud storage, and advanced access control to protect your documents and maintain regulatory compliance.
GDPR
AICPA SOC 2
PCI
HIPAA
CCPA
FDA

How to fill out hcc surety online

Illustration

How to fill out hcc surety online

01
Visit the HCC Surety website
02
Click on the 'Get a Quote' or 'Apply Now' button
03
Fill out the online application form with accurate information about your business and bonding needs
04
Submit any required documents or financial information as requested
05
Review the information provided and make any necessary revisions
06
Confirm and submit your application

Who needs hcc surety online?

01
Contractors and construction companies
02
Businesses requiring bonds for licensing or permits
03
Individuals needing court or fidelity bonds
Fill form : Try Risk Free
Users Most Likely To Recommend - Summer 2025
Grid Leader in Small-Business - Summer 2025
High Performer - Summer 2025
Regional Leader - Summer 2025
Easiest To Do Business With - Summer 2025
Best Meets Requirements- Summer 2025
Rate the form
4.7
Satisfied
38 Votes

For pdfFiller’s FAQs

Below is a list of the most common customer questions. If you can’t find an answer to your question, please don’t hesitate to reach out to us.

Create, edit, and share hcc surety online from your iOS smartphone with the pdfFiller mobile app. Installing it from the Apple Store takes only a few seconds. You may take advantage of a free trial and select a subscription that meets your needs.
Get and install the pdfFiller application for iOS. Next, open the app and log in or create an account to get access to all of the solution’s editing features. To open your hcc surety online, upload it from your device or cloud storage, or enter the document URL. After you complete all of the required fields within the document and eSign it (if that is needed), you can save it or share it with others.
You can make any changes to PDF files, like hcc surety online, with the help of the pdfFiller Android app. Edit, sign, and send documents right from your phone or tablet. You can use the app to make document management easier wherever you are.
HCC Surety Online is an online platform used for filing surety bonds.
Individuals or businesses who need to obtain or renew a surety bond are required to file HCC Surety Online.
To fill out HCC Surety Online, users need to create an account, select the type of surety bond needed, provide the required information, and submit the application.
The purpose of HCC Surety Online is to streamline the process of obtaining and managing surety bonds.
Users must report personal or business information, the type of surety bond needed, and any additional details required for the specific bond.
Fill out your hcc surety online online with pdfFiller!

pdfFiller is an end-to-end solution for managing, creating, and editing documents and forms in the cloud. Save time and hassle by preparing your tax forms online.

Get started now
Form preview
If you believe that this page should be taken down, please follow our DMCA take down process here .
This form may include fields for payment information. Data entered in these fields is not covered by PCI DSS compliance.