
Get the free Julie Abbott-Kenan returns to legislature after arrest: 'I haven't ...
Show details
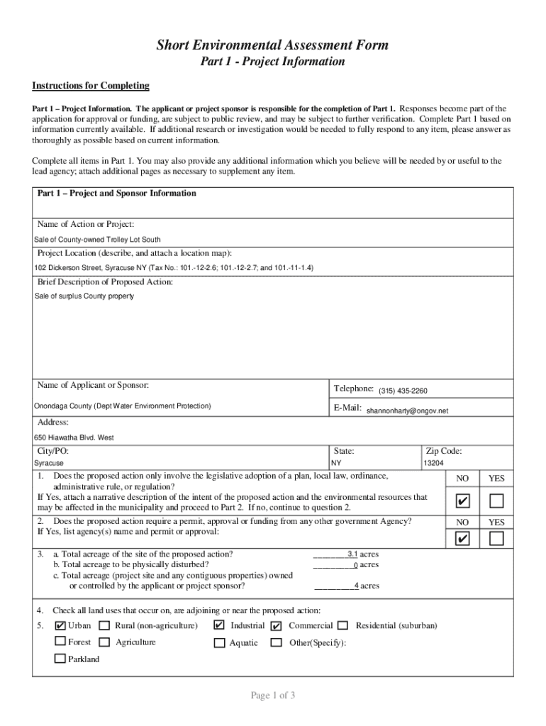
Onondaga County Legislature JULIE ABBOTT County Legislator 6th District 111 East Lake Street, Skaneateles, New York 13152 Leg (315) 4352070 julieabbott@ongov.netENVIRONMENTAL PROTECTION COMMITTEE
We are not affiliated with any brand or entity on this form
Get, Create, Make and Sign julie abbott-kenan returns to

Edit your julie abbott-kenan returns to form online
Type text, complete fillable fields, insert images, highlight or blackout data for discretion, add comments, and more.

Add your legally-binding signature
Draw or type your signature, upload a signature image, or capture it with your digital camera.

Share your form instantly
Email, fax, or share your julie abbott-kenan returns to form via URL. You can also download, print, or export forms to your preferred cloud storage service.
Editing julie abbott-kenan returns to online
Follow the steps down below to benefit from the PDF editor's expertise:
1
Register the account. Begin by clicking Start Free Trial and create a profile if you are a new user.
2
Prepare a file. Use the Add New button. Then upload your file to the system from your device, importing it from internal mail, the cloud, or by adding its URL.
3
Edit julie abbott-kenan returns to. Rearrange and rotate pages, add and edit text, and use additional tools. To save changes and return to your Dashboard, click Done. The Documents tab allows you to merge, divide, lock, or unlock files.
4
Save your file. Select it from your records list. Then, click the right toolbar and select one of the various exporting options: save in numerous formats, download as PDF, email, or cloud.
pdfFiller makes working with documents easier than you could ever imagine. Try it for yourself by creating an account!
Uncompromising security for your PDF editing and eSignature needs
Your private information is safe with pdfFiller. We employ end-to-end encryption, secure cloud storage, and advanced access control to protect your documents and maintain regulatory compliance.
How to fill out julie abbott-kenan returns to

How to fill out julie abbott-kenan returns to
01
Begin by gathering all necessary documents such as W-2 forms, 1099 forms, and any other relevant financial information.
02
Fill out the personal information section with Julie Abbott-Kenan's name, address, social security number, and any other required details.
03
Enter the income information in the appropriate sections, including wages, interest, dividends, and any other sources of income.
04
Deduct eligible expenses such as education expenses, business expenses, or any other deductible items.
05
Review the completed return for accuracy and make any necessary corrections before submitting.
Who needs julie abbott-kenan returns to?
01
Julie Abbott-Kenan needs to fill out her tax returns in order to comply with tax laws and regulations.
02
Employers may also need Julie Abbott-Kenan's tax returns for payroll and reporting purposes.
Fill
form
: Try Risk Free
For pdfFiller’s FAQs
Below is a list of the most common customer questions. If you can’t find an answer to your question, please don’t hesitate to reach out to us.
How do I modify my julie abbott-kenan returns to in Gmail?
Using pdfFiller's Gmail add-on, you can edit, fill out, and sign your julie abbott-kenan returns to and other papers directly in your email. You may get it through Google Workspace Marketplace. Make better use of your time by handling your papers and eSignatures.
Can I create an eSignature for the julie abbott-kenan returns to in Gmail?
Upload, type, or draw a signature in Gmail with the help of pdfFiller’s add-on. pdfFiller enables you to eSign your julie abbott-kenan returns to and other documents right in your inbox. Register your account in order to save signed documents and your personal signatures.
How can I edit julie abbott-kenan returns to on a smartphone?
You can easily do so with pdfFiller's apps for iOS and Android devices, which can be found at the Apple Store and the Google Play Store, respectively. You can use them to fill out PDFs. We have a website where you can get the app, but you can also get it there. When you install the app, log in, and start editing julie abbott-kenan returns to, you can start right away.
What is julie abbott-kenan returns to?
Julie Abbott-Kenan returns to her hometown.
Who is required to file julie abbott-kenan returns to?
Julie Abbott-Kenan is required to file her returns to the tax authorities.
How to fill out julie abbott-kenan returns to?
Julie Abbott-Kenan can fill out her returns by providing all the necessary information and submitting it online or by mail.
What is the purpose of julie abbott-kenan returns to?
The purpose of Julie Abbott-Kenan returns is to report her income, deductions, and credits for tax purposes.
What information must be reported on julie abbott-kenan returns to?
Julie Abbott-Kenan must report her total income, deductions, tax credits, and any other relevant financial information.
Fill out your julie abbott-kenan returns to online with pdfFiller!
pdfFiller is an end-to-end solution for managing, creating, and editing documents and forms in the cloud. Save time and hassle by preparing your tax forms online.

Julie Abbott-Kenan Returns To is not the form you're looking for?Search for another form here.
Relevant keywords
Related Forms
If you believe that this page should be taken down, please follow our DMCA take down process
here
.
This form may include fields for payment information. Data entered in these fields is not covered by PCI DSS compliance.