Get the free Comprehensive Planning Department FAQ - Clark County, NV
Show details
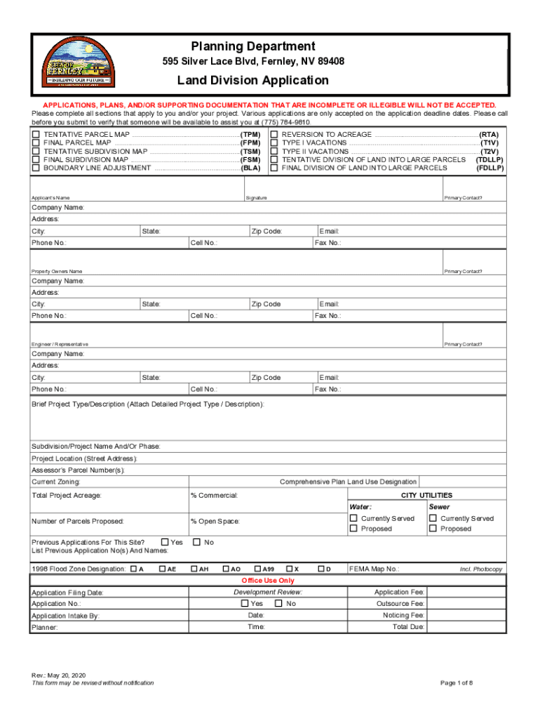
Planning Department 595 Silver Lace Blvd, Farley, NV 89408Land Division Application APPLICATIONS, PLANS, AND/OR SUPPORTING DOCUMENTATION THAT ARE INCOMPLETE OR ILLEGIBLE WILL NOT BE ACCEPTED. Please
We are not affiliated with any brand or entity on this form
Get, Create, Make and Sign comprehensive planning department faq
Edit your comprehensive planning department faq form online
Type text, complete fillable fields, insert images, highlight or blackout data for discretion, add comments, and more.
Add your legally-binding signature
Draw or type your signature, upload a signature image, or capture it with your digital camera.
Share your form instantly
Email, fax, or share your comprehensive planning department faq form via URL. You can also download, print, or export forms to your preferred cloud storage service.
How to edit comprehensive planning department faq online
To use our professional PDF editor, follow these steps:
1
Log in to account. Click on Start Free Trial and sign up a profile if you don't have one yet.
2
Simply add a document. Select Add New from your Dashboard and import a file into the system by uploading it from your device or importing it via the cloud, online, or internal mail. Then click Begin editing.
3
Edit comprehensive planning department faq. Add and replace text, insert new objects, rearrange pages, add watermarks and page numbers, and more. Click Done when you are finished editing and go to the Documents tab to merge, split, lock or unlock the file.
4
Get your file. Select your file from the documents list and pick your export method. You may save it as a PDF, email it, or upload it to the cloud.
pdfFiller makes dealing with documents a breeze. Create an account to find out!
Uncompromising security for your PDF editing and eSignature needs
Your private information is safe with pdfFiller. We employ end-to-end encryption, secure cloud storage, and advanced access control to protect your documents and maintain regulatory compliance.
How to fill out comprehensive planning department faq
How to fill out comprehensive planning department faq
01
Gather all necessary information and resources.
02
Review the section headings and questions within the FAQ.
03
Write clear and concise answers to each question.
04
Organize the information in a logical and easy-to-follow format.
05
Proofread and make any necessary edits before publishing the FAQ.
Who needs comprehensive planning department faq?
01
City planners and developers looking for information on zoning regulations and land use policies.
02
Residents seeking guidance on the permit application process and building codes.
03
Business owners interested in understanding the requirements for commercial development projects.
Fill
form
: Try Risk Free
For pdfFiller’s FAQs
Below is a list of the most common customer questions. If you can’t find an answer to your question, please don’t hesitate to reach out to us.
How do I complete comprehensive planning department faq online?
With pdfFiller, you may easily complete and sign comprehensive planning department faq online. It lets you modify original PDF material, highlight, blackout, erase, and write text anywhere on a page, legally eSign your document, and do a lot more. Create a free account to handle professional papers online.
Can I sign the comprehensive planning department faq electronically in Chrome?
Yes, you can. With pdfFiller, you not only get a feature-rich PDF editor and fillable form builder but a powerful e-signature solution that you can add directly to your Chrome browser. Using our extension, you can create your legally-binding eSignature by typing, drawing, or capturing a photo of your signature using your webcam. Choose whichever method you prefer and eSign your comprehensive planning department faq in minutes.
Can I create an eSignature for the comprehensive planning department faq in Gmail?
Use pdfFiller's Gmail add-on to upload, type, or draw a signature. Your comprehensive planning department faq and other papers may be signed using pdfFiller. Register for a free account to preserve signed papers and signatures.
What is comprehensive planning department faq?
Comprehensive planning department faq is a set of frequently asked questions related to the comprehensive planning department's guidelines and regulations.
Who is required to file comprehensive planning department faq?
All individuals or entities involved in the planning and development process are required to file comprehensive planning department faq.
How to fill out comprehensive planning department faq?
To fill out comprehensive planning department faq, individuals or entities must provide detailed information as per the guidelines provided by the department.
What is the purpose of comprehensive planning department faq?
The purpose of comprehensive planning department faq is to ensure compliance with regulations and guidelines set forth by the department.
What information must be reported on comprehensive planning department faq?
Information such as project details, environmental impact assessments, and proposed development plans must be reported on comprehensive planning department faq.
Fill out your comprehensive planning department faq online with pdfFiller!
pdfFiller is an end-to-end solution for managing, creating, and editing documents and forms in the cloud. Save time and hassle by preparing your tax forms online.
Comprehensive Planning Department Faq is not the form you're looking for?Search for another form here.
Relevant keywords
Related Forms
If you believe that this page should be taken down, please follow our DMCA take down process
here
.
This form may include fields for payment information. Data entered in these fields is not covered by PCI DSS compliance.