Get the free NPS Form 10-900 (Oct - Missouri State Parks
Show details
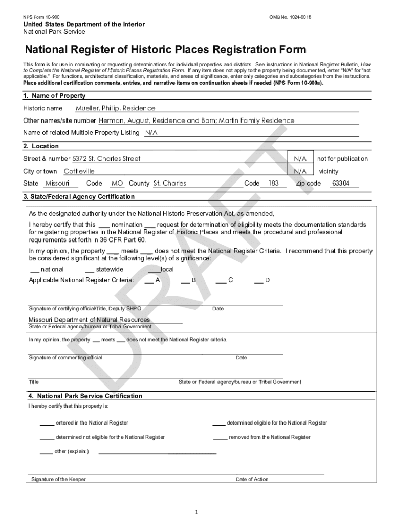
NPS Form 10900OMB No. 10240018United States Department of the Interior National Park ServiceNational Register of Historic Places Registration Form This form is for use in nominating or requesting
We are not affiliated with any brand or entity on this form
Get, Create, Make and Sign nps form 10-900 oct
Edit your nps form 10-900 oct form online
Type text, complete fillable fields, insert images, highlight or blackout data for discretion, add comments, and more.
Add your legally-binding signature
Draw or type your signature, upload a signature image, or capture it with your digital camera.
Share your form instantly
Email, fax, or share your nps form 10-900 oct form via URL. You can also download, print, or export forms to your preferred cloud storage service.
Editing nps form 10-900 oct online
Follow the guidelines below to benefit from the PDF editor's expertise:
1
Log in. Click Start Free Trial and create a profile if necessary.
2
Simply add a document. Select Add New from your Dashboard and import a file into the system by uploading it from your device or importing it via the cloud, online, or internal mail. Then click Begin editing.
3
Edit nps form 10-900 oct. Replace text, adding objects, rearranging pages, and more. Then select the Documents tab to combine, divide, lock or unlock the file.
4
Get your file. Select your file from the documents list and pick your export method. You may save it as a PDF, email it, or upload it to the cloud.
With pdfFiller, dealing with documents is always straightforward. Now is the time to try it!
Uncompromising security for your PDF editing and eSignature needs
Your private information is safe with pdfFiller. We employ end-to-end encryption, secure cloud storage, and advanced access control to protect your documents and maintain regulatory compliance.
How to fill out nps form 10-900 oct
How to fill out nps form 10-900 oct
01
Obtain a copy of NPS form 10-900 oct
02
Fill in your personal information in the designated sections
03
Answer the required questions regarding the specific matter for which the form is being filled out
04
Review the completed form for accuracy and completeness
05
Submit the form as instructed by the relevant authority
Who needs nps form 10-900 oct?
01
Individuals or entities who are required to provide specific information or data related to a particular matter may need to fill out NPS form 10-900 oct.
Fill
form
: Try Risk Free
For pdfFiller’s FAQs
Below is a list of the most common customer questions. If you can’t find an answer to your question, please don’t hesitate to reach out to us.
How do I make edits in nps form 10-900 oct without leaving Chrome?
Adding the pdfFiller Google Chrome Extension to your web browser will allow you to start editing nps form 10-900 oct and other documents right away when you search for them on a Google page. People who use Chrome can use the service to make changes to their files while they are on the Chrome browser. pdfFiller lets you make fillable documents and make changes to existing PDFs from any internet-connected device.
How do I edit nps form 10-900 oct on an iOS device?
You can. Using the pdfFiller iOS app, you can edit, distribute, and sign nps form 10-900 oct. Install it in seconds at the Apple Store. The app is free, but you must register to buy a subscription or start a free trial.
How do I fill out nps form 10-900 oct on an Android device?
Use the pdfFiller mobile app and complete your nps form 10-900 oct and other documents on your Android device. The app provides you with all essential document management features, such as editing content, eSigning, annotating, sharing files, etc. You will have access to your documents at any time, as long as there is an internet connection.
What is nps form 10-900 oct?
NPS Form 10-900 OCT is a form used for reporting the progress of a project to the National Park Service.
Who is required to file nps form 10-900 oct?
Individuals or organizations who have received funding from the National Park Service for a project are required to file the NPS Form 10-900 OCT.
How to fill out nps form 10-900 oct?
NPS Form 10-900 OCT can be filled out by providing detailed information about the progress of the project, including financial details, completion status, and other relevant information.
What is the purpose of nps form 10-900 oct?
The purpose of NPS Form 10-900 OCT is to track the progress of projects funded by the National Park Service and ensure that they are meeting their goals and objectives.
What information must be reported on nps form 10-900 oct?
Information such as project milestones, expenses, completion status, and any issues or challenges faced during the project must be reported on NPS Form 10-900 OCT.
Fill out your nps form 10-900 oct online with pdfFiller!
pdfFiller is an end-to-end solution for managing, creating, and editing documents and forms in the cloud. Save time and hassle by preparing your tax forms online.
Nps Form 10-900 Oct is not the form you're looking for?Search for another form here.
Relevant keywords
Related Forms
If you believe that this page should be taken down, please follow our DMCA take down process
here
.
This form may include fields for payment information. Data entered in these fields is not covered by PCI DSS compliance.