
Get the free Disconnect gutters to reduce chances of basement flooding
Show details
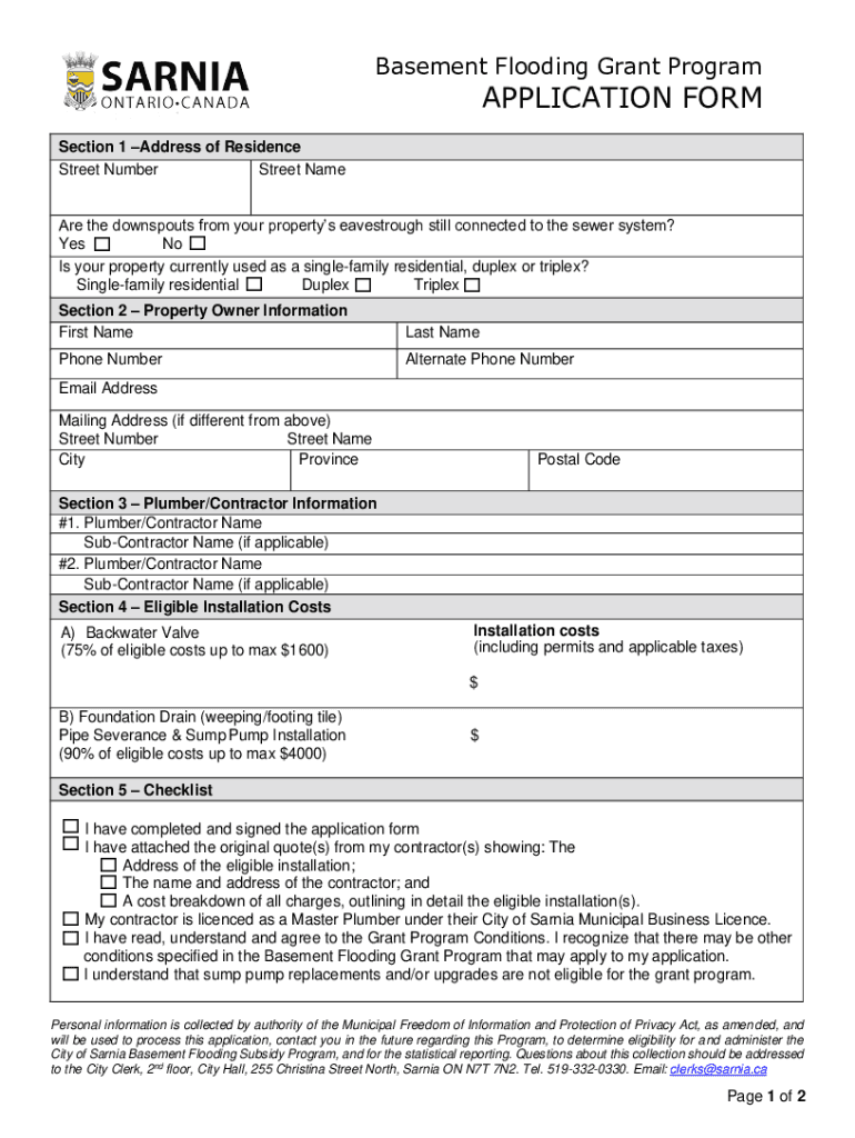
Basement Flooding Grant ProgramAPPLICATION Formation 1 Address of Residence
Street Number
Street Name
Are the downspouts from your properties eaves trough still connected to the sewer system?
Yes
No
Is
We are not affiliated with any brand or entity on this form
Get, Create, Make and Sign disconnect gutters to reduce

Edit your disconnect gutters to reduce form online
Type text, complete fillable fields, insert images, highlight or blackout data for discretion, add comments, and more.

Add your legally-binding signature
Draw or type your signature, upload a signature image, or capture it with your digital camera.

Share your form instantly
Email, fax, or share your disconnect gutters to reduce form via URL. You can also download, print, or export forms to your preferred cloud storage service.
How to edit disconnect gutters to reduce online
In order to make advantage of the professional PDF editor, follow these steps:
1
Log in. Click Start Free Trial and create a profile if necessary.
2
Upload a file. Select Add New on your Dashboard and upload a file from your device or import it from the cloud, online, or internal mail. Then click Edit.
3
Edit disconnect gutters to reduce. Rearrange and rotate pages, add new and changed texts, add new objects, and use other useful tools. When you're done, click Done. You can use the Documents tab to merge, split, lock, or unlock your files.
4
Get your file. Select your file from the documents list and pick your export method. You may save it as a PDF, email it, or upload it to the cloud.
pdfFiller makes dealing with documents a breeze. Create an account to find out!
Uncompromising security for your PDF editing and eSignature needs
Your private information is safe with pdfFiller. We employ end-to-end encryption, secure cloud storage, and advanced access control to protect your documents and maintain regulatory compliance.
How to fill out disconnect gutters to reduce

How to fill out disconnect gutters to reduce
01
Measure the distance between the gutters to determine the length of disconnect needed.
02
Purchase the appropriate size disconnect piece from a hardware store.
03
Connect one end of the disconnect piece to the downspout coming from the gutter.
04
Connect the other end of the disconnect piece to a section of pipe that extends away from the house.
05
Make sure the disconnect piece is securely attached and sealed to prevent leaks.
Who needs disconnect gutters to reduce?
01
Homeowners looking to prevent foundation damage caused by water runoff from gutters.
02
People living in areas prone to heavy rainfall and flooding.
03
Anyone who wants to reduce the amount of water pooling around their home.
Fill
form
: Try Risk Free
For pdfFiller’s FAQs
Below is a list of the most common customer questions. If you can’t find an answer to your question, please don’t hesitate to reach out to us.
How can I edit disconnect gutters to reduce from Google Drive?
pdfFiller and Google Docs can be used together to make your documents easier to work with and to make fillable forms right in your Google Drive. The integration will let you make, change, and sign documents, like disconnect gutters to reduce, without leaving Google Drive. Add pdfFiller's features to Google Drive, and you'll be able to do more with your paperwork on any internet-connected device.
How do I edit disconnect gutters to reduce online?
With pdfFiller, the editing process is straightforward. Open your disconnect gutters to reduce in the editor, which is highly intuitive and easy to use. There, you’ll be able to blackout, redact, type, and erase text, add images, draw arrows and lines, place sticky notes and text boxes, and much more.
How do I fill out disconnect gutters to reduce using my mobile device?
Use the pdfFiller mobile app to fill out and sign disconnect gutters to reduce on your phone or tablet. Visit our website to learn more about our mobile apps, how they work, and how to get started.
What is disconnect gutters to reduce?
Disconnect gutters to reduce is a process of separating gutters from the main drainage system to prevent overflow and reduce water damage.
Who is required to file disconnect gutters to reduce?
Property owners or tenants responsible for maintaining the gutters are required to file disconnect gutters to reduce.
How to fill out disconnect gutters to reduce?
Disconnect gutters to reduce can be filled out by providing necessary information about the property and indicating the steps taken to separate the gutters.
What is the purpose of disconnect gutters to reduce?
The purpose of disconnect gutters to reduce is to prevent water damage, reduce overflow, and maintain the integrity of the drainage system.
What information must be reported on disconnect gutters to reduce?
The information that must be reported on disconnect gutters to reduce includes the property address, type of gutters, method of disconnection, and any additional precautions taken.
Fill out your disconnect gutters to reduce online with pdfFiller!
pdfFiller is an end-to-end solution for managing, creating, and editing documents and forms in the cloud. Save time and hassle by preparing your tax forms online.

Disconnect Gutters To Reduce is not the form you're looking for?Search for another form here.
Relevant keywords
Related Forms
If you believe that this page should be taken down, please follow our DMCA take down process
here
.
This form may include fields for payment information. Data entered in these fields is not covered by PCI DSS compliance.